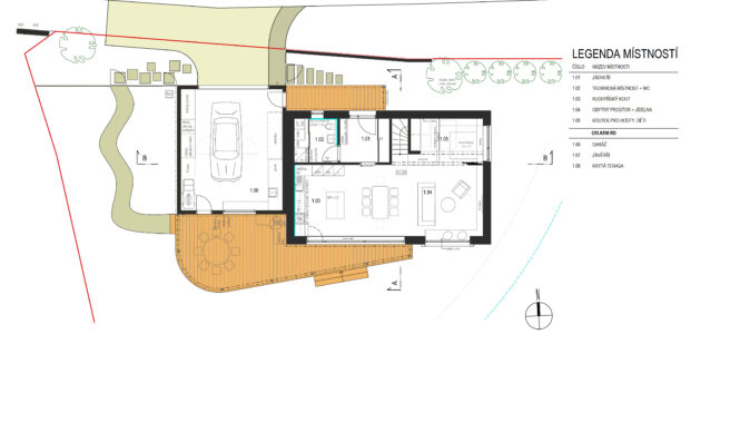
Dřevostavba rodinného domu podle návrhu studia ARCHCON atelier má dvě podlaží, přízemí s hlavní obytnou místností a technickým zázemím a druhé patro s pokoji. K domu přiléhá garáž a krytá terasa navazující na zahradu s jezírkem.

Vzhledem k návrhu domu v pasivním standardu byl zvolen kompaktní tvar kvádru 11,5 m × 7,5 m, vysoký 6,5 m. Garáž k němu přiléhající je také jednoduchý kvádr o rozměrech 6,2 m × 7,2 m a vysoký 3 m. Obě hmoty mají plochou střechu a jsou z jedné strany propojeny organickou terasou směrem do zahrady a z druhé strany u vstupu krytým přístřeškem pro přechod suchou nohou z domu do garáže. Hlavní hmotu domu navrhujeme ve světlém krémovém odstínu omítky a kontrastně k tomu garáž v tmavém dřevěném obkladu. Na jižní straně domu bude na okně se sedacím parapetem šambrána ve stejném dřevě jako fasáda garáže. Terasa je ze sibiřského modřínu zastřešená dřevěnou konstrukcí ze smrku a zaklopené biodeskou se šedou foliovou střechou, která se opakuje nad vstupem do domu a garáže ze severní strany. Zastřešení terasy nesou dřevěné sloupy ve tvaru kmenů stromů. Ze severní strany je zastřešení vstupu a střecha garáže provázána lemem v rámci oplechování v antracitové barvě.

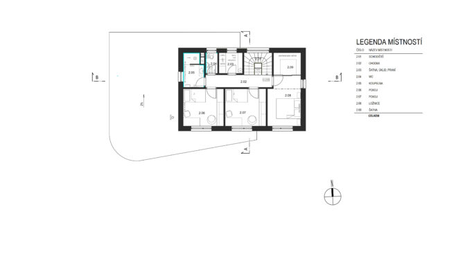
Objekt je založen na železobetonové desce se základovým prahem. Nosné prvky stěn jsou z masivních dřevěných panelů. Konstrukce je řešena jako difúzně otevřená s minerální izolací a omítkou a garáž s dřevěným obkladem. Dělící příčky jsou sádrokartonové. Strop je trámový z KVH hranolů a lamelových průvlaků. V podlaze je elektrická topná rohož a nad ní polyuretanový stěrka, která tvoří podlahovou krytinu v celém domě. V obytném prostoru je konstrukce pohledová, naopak v místě vstupu, technické místnosti a koutku pro hosty za schodištěm zakryta SDK podhledem. Konstrukci střechy domu tvoří dřevěné nosníky zateplené foukanou celulózou. Ve všech místnostech 2 NP je pod stropní konstrukcí zavěšen sádrokartonový podhled. Střešní konstrukci garáže i zastřešení terasy a vstupu tvoří KVH trámy. Propojení mezi jednotlivými podlažími je zajištěno smíšenočarým schodištěm se středovou vřetenovou stěnou z masivního dřevěného panelu.

Vstupujeme po zpevněné ploše kolem garáže přes kryté závětří do zádveří. V tom se nachází šatní prostor za posuvnou stěnou, věšák s obouváním, vstup do technické místnosti s WC a přípravou pro sprchu a také přímý vstup do obytného prostoru. Ten zahrnuje v centrální části jídelní stůl. Dále pak kuchyňskou linku tvaru L a ostrůvek s pracovní plochou a úložným prostorem. Jídelní stůl z druhé strany navazuje na otevřenou obytnou část. V té je umístěna sedací souprava a dále sedací parapet. Z druhé strany se nachází schodiště se zakomponovaným akváriem. K tomu doléhá posuvná stěna, za níž je prostor pro hraní dětí a výsuvná spací nika pod schodištěm pro přespání hostů. Po schodišti vstupujeme do druhého podlaží, kde je z chodby vstup do dvou dětských pokojů, ložnice s vlastní šatnou, koupelna, WC a místnost pro úklid a praní. K domu přiléhá garáž pro jedno auto a motorku, s pracovním stolem s umyvadlem, úložným prostorem pro nářadí, věci na potápění a další potřebné a také místem pro uložení čtyř kol. Přístupná je ze severu vjezdem, ze závětří a také z jižní terasy. Ta spojuje garáž se samotným domem. Z jídelny a kuchyně vstupujeme přes terasu do zahrady.
Autorská zpráva
Místo stavby: Středočeský kraj
Autoři: ARCHCON atelier
Dokončení: 2017
Feng-shui: Tereza Svobodová
Foto: Martin Zeman








































Do 4/1 jsou Mockerovy domy přístupné v rámci akce Vánoční putování Pražským hradem https://www.hrad.cz/cs/kultura-na-hrade/program/vanocni-putovani-prazskym-hradem-1-13462
Hodně mě překvapilo, že je v areálu Pražského hrad tahle zanedbaný dvorek. Na leteckých snímcích to vypadá líp, jako že…
Díky za odkaz, opravdu zajímavý projekt! Rekonstrukce za plného provozu je vždycky náročná, a je skvělé vidět, jak se to…
Ano, továrna v Pardubicích je velmi zajímavá. Kromě jiného rekonstrukce probíhala za plného provozu. Přikládám odkaz na celou stavbu, je…
V rámci Prahy jde o jednu z nejhlučnějších lokalit, které lze v centru najít. ideální pro drahé kanceláře a bydlení.…