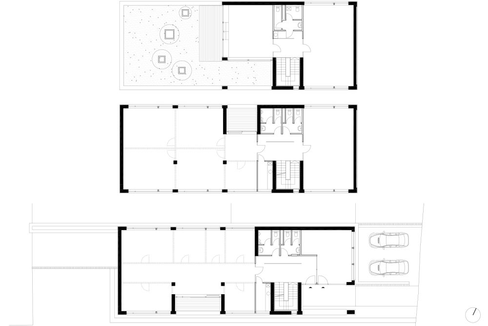
Návrh administratívnej budovy na mierne svahovitom pozemku v
Bratislave je odpoveďou na pragmatické zadanie – návrh domu, ktorého využitie
má byť do maximálnej miery univerzálne, jeho užívatelia totiž nie sú vopred
známi.
Racionálny modul je opakovaný len s malými obmenami na štyroch podlažiach,
ktorého jedno pole je pevne zadefinované – hygienickým blokom a priestorom
schodiska. Ostatné priestory sú vďaka premyslenému členeniu okenných plôch voľne
meniteľné. Strohú štruktúru oživujú nepravidelne umiestnené loggie, dodávajúc
tak utilitárnej administratíve vnútorné zelené plochy a nepravidelným fasádam
poetiku.
Autorská zpráva
Foto: Tomáš Manina

















Architektura musí souviset s místem, nikoli místo s architekturou. Proto jakékoli stavby umožňující realizaci na různých místech nejsou ARCHITEKTUROU.
Z mého pohledu je fajn vidět, jak se i u tak „běžné“ věci, jako jsou překlady, řeší systémovost a přesnost!
Praktické řešení, hlavně z pohledu rychlosti výstavby a přesnosti👍 U těchto systémových prvků dává smysl, že zjednodušují realizaci a pomáhají…
Zajímavý posun ve stavebnictví, je vidět, že se dnes klade velký důraz hlavně na rychlost výstavby a přesnost provedení. Systémové…
Jako problém vidím hlavně "lavičky" v prostoru sdíleném s cyklisty. Neměly by mít třeba tyče s praporky, jako dětské nákupní…