Rekonstrukce byla koncipovaná tak, aby původní části zůstaly viditelné a otisk Dušana Jurkoviče co nejvíce zachován. Jurkovičovo dílo jsme však interpretovali v duchu 21. století. V návrhu interiéru coworku jsme vnímali kontext památky a nové stavby. Snažili jsme se prostor doplňovat a navazovat na něj jak stylem, tak geometrií nových prvků. Zároveň jsme chtěli, aby bylo jasně rozpoznatelné, které části jsou nové a které původní.
Do prostor kotlové a turbínové haly byla umístěna nová pětiposchoďová stavba. S respektem k historii autoři využili i další průmyslové prvky – interiéru dominují betonové násypníky, původní jeřáb tvoří atypicky otevřený strop sdílené kanceláře. Architektonický vstup v podobě novotvaru je dílem ateliéru DF Creative Group, na obnově pláště budovy se podílela firma PAMARCH, jež se specializuje na ochranu a rekonstrukci památek.
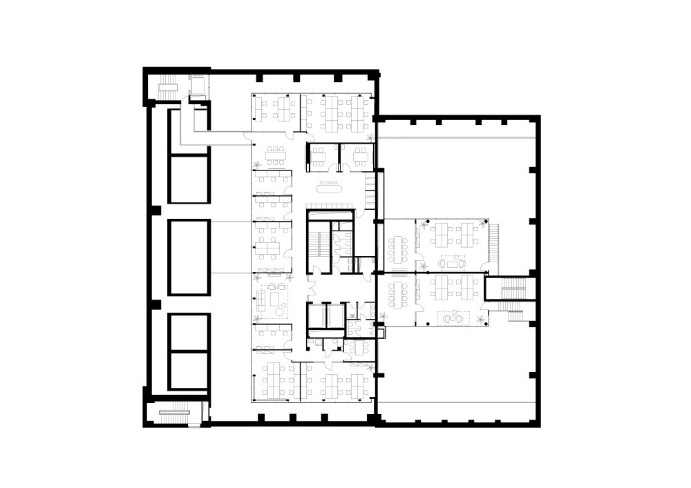
Celkem se v prostorách teplárny nachází 3900 m² pracovních ploch s kapacitou přibližně 450 míst. Pestrá různorodost splňuje požadavky široké skladby uživatelů. Na každém z podlaží se nachází typologie fix desk, hot desk, samostatné kanceláře, phone booth, workshop room nebo zasedací místnosti s kapacitou od čtyř do 18 lidí. Klienti také mohou v průběhu dne využít některé z komunitních lounge, reprezentační zónu setkávání a networkingu.
Komunitním centrem coworku je vstupní zóna ve druhém patře, která kombinuje halu s kavárnou a pracovními místy. Dílo Dušana Jurkoviče jsme zpřítomnili aplikací grafických prvků. Autorské motivy jsou inspirované rukopisem architekta a jeho evolucí v čase. Původní dekorativní ornamenty jsme rozložili na prvočinitele v podobě světelných prvků na zdech či gravírovaných skříněk.
Lidového tesaře nahradila CNC fréza, masivní dřevo dřevovláknité desky. Řemeslná kvalita a současné materiály ve své surové podstatě tvoří spojující motiv jednotlivých podlaží. Ocelové konstrukce jsme zjemnili perforací, takže vznikl historický kontrast s odkazem sahajícím až do raného období Jurkovičovy tvorby. Přeměna industriální památky na komfortní pracoviště byla podmíněna vhodnými materiály. Barevná paleta vychází z odstínů terakoty, charakteristické pro plášť budovy, doplňují je tlumené hluboké tóny modré, zelené či uhlově černé. Stropy zůstaly otevřené, podlahy ve společných zónách akcentují dřevo nebo velkoformátovou keramickou dlažbu.
Velkorysost prostoru podtrhují betonové násypníky, které sloužily ke skladování tuhých paliv. Do jejich nitra jsme umístili některé ze zasedacích místností. Uživatelsky nejoblíbenější se zatím jeví dvojice zasedaček v pátém patře, kde jsme využili polohy a v částech podlahy zaexperimentovali s jejím prosklením. Výsledkem je ikonický prostor, který chce vidět každý. A to i ti, kteří mají strach z výšek.
V zasedacích místnostech a kancelářích jsme kladli důraz na akustiku, kterou zajišťují nejen koberce, ale také obklady stěn. Rádi používáme recyklované a přírodní materiály: obklady tentokrát pocházejí z recyklovaných PET lahví. Butikovou náladu interiéru umocňuje střešní terasa s přilehlým barem.
Členitost budovy jsme využili ve prospěch klientů, na více místech vznikly pohodlné zóny. Součástí prostoru je také DOT. Espresso bar & Contemporary Art Gallery, eventový prostor a restaurace ze sítě gastroskupiny Medusa. Ikona Bratislavy tak znovu ožívá, stává se kulturním epicentrem a cenným kontrastem k moderní architektuře okolních budov.
Autorská zpráva
Foto: BoysPlayNice
Klient: Penta Real Estate
Autoři: Ján Antal, Martin Stára, Barbora S. Babocká; spoluautor architektonického řešení konverze budovy DF Creative Group – Martin Paško
Projekt: Jakub Budaj, Silvia Snopková
Dodavatel stavby: ENG2 Project Management
Obnova pláště budovy: PAMARCH
Užitná plocha: 3900 m²

















































Nevíte někdo, jestli stále platí (hygienická?) norma, podle které má mít každý pracovník v kanceláři 2 m2 volného podlahového prostoru?