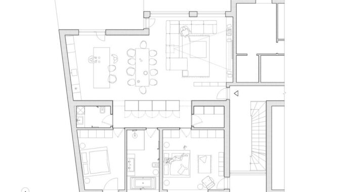
Byt v Hodoníně vznikl spojením dvou menších bytů ještě před
začátkem stavby bytového domu, měli jsme proto možnost už v návrhu dispozici
upravit tak, aby splňovala požadavky mladé, rozrůstající se rodiny. Půdorys
jsme otevřeli, definovali jsme prostor obytné kuchyně, která plynule přechází
do obývacího pokoje. Od traktu ložnic je oddělená vloženou stěnou s ořechovou
dýhou, která v sobě ukrývá úložné a servisní prostory (WC + šatník). V celém
bytě je kromě ložnic dlažba z travertinu, formátovaná přesně podle rozměrů
místností. Travertin jsme použili také v hlavní koupelně, kde tvoří i
obklad stěn. Barevnost interiéru byla postavená na poctivé materialitě
základních prvků: bílá barva, ořechová dýha a travertin.
Autorská zpráva
Foto: Nora a Jakub Čaprnka
Autoři: Filip Marčák, Andrej Olah, Peter Olah
Plocha: 127 m2























Architektura musí souviset s místem, nikoli místo s architekturou. Proto jakékoli stavby umožňující realizaci na různých místech nejsou ARCHITEKTUROU.
Z mého pohledu je fajn vidět, jak se i u tak „běžné“ věci, jako jsou překlady, řeší systémovost a přesnost!
Praktické řešení, hlavně z pohledu rychlosti výstavby a přesnosti👍 U těchto systémových prvků dává smysl, že zjednodušují realizaci a pomáhají…
Zajímavý posun ve stavebnictví, je vidět, že se dnes klade velký důraz hlavně na rychlost výstavby a přesnost provedení. Systémové…
Jako problém vidím hlavně "lavičky" v prostoru sdíleném s cyklisty. Neměly by mít třeba tyče s praporky, jako dětské nákupní…