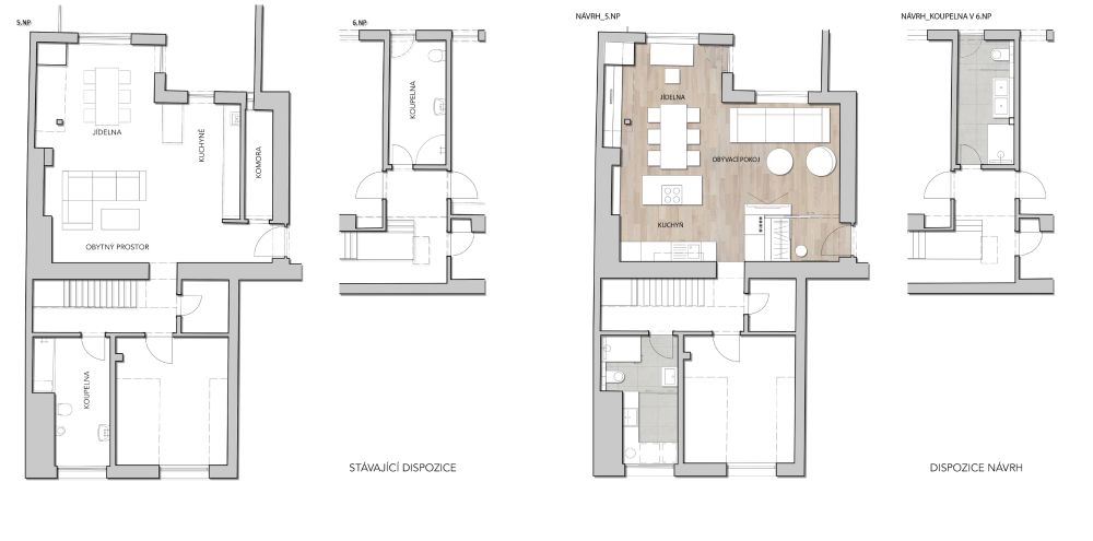
Rekonstrukce
části bytu pro rodinu s malými dětmi. Návrh zahrnoval dispoziční změny a návrh
interiéru hlavní obytné místnosti s jídelnou, kuchyní a dvou koupelen.
Autorská
zpráva
Foto: Josef Neumann
Autorský
tým: Ing. arch. Barbora Mluvková, Ing. arch. Šimon Vojtík, Ing. arch. Vendula
Kadlecová, Ing. arch. Lucie Opluštilová
Dodavatelé:
truhlářské práce – Truhlářství štipl, dlažba – Archtiles, textilie – Styltex, svítidla,
dekorace, nábytek – Stockist





















Takže ploty z tújí vyšly z módy a místo nich přichází bambus?
Povedený projekt 👍 Takových realizací by mohlo vznikat víc.
Kaskády Hranice jsou skvělým příkladem toho, že i bytová výstavba může mít kvalitní architekturu, promyšlený urbanismus a příjemný prostor pro…
Architektura musí souviset s místem, nikoli místo s architekturou. Proto jakékoli stavby umožňující realizaci na různých místech nejsou ARCHITEKTUROU.
Z mého pohledu je fajn vidět, jak se i u tak „běžné“ věci, jako jsou překlady, řeší systémovost a přesnost!