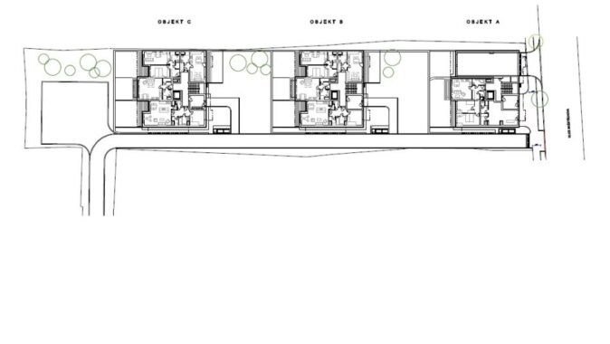
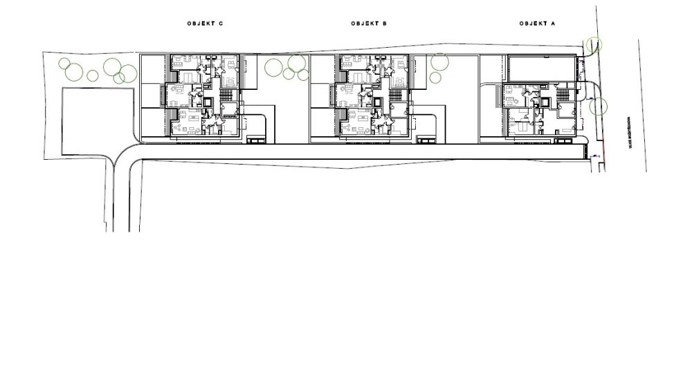
Tři bytové domy jsou umístěny v zahradním prostředí, naproti
nim se nachází královopolský park Kadetka, podle kterého byl pojmenován i tento
projekt. K zadní části domů přiléhá kulturní centrum Semilasso. Občanská
vybavenost, která obklopuje celý areál, je výhodou bydlení v této lokalitě
stejně jako krátká vzdálenost do centra města.
Domy jsou neagresivní bílé kubusy, pod nimi jsou garáže s 68 parkovacími místy.
Každý byt tak má k dispozici vlastní stání, balkon nebo terasu. Objekty nabízí
veškeré varianty rozměrů bytů, od 1+kk až po 5+1 s terasou, které se nacházejí
na střechách. Přízemní byty mají vlastní soukromé zahrádky. Komplex obklopují
veřejné zahrady, které jsou bezpečné a uzpůsobené pro pohyb dětí. Komunikace,
která prochází veřejnou zahradou, slouží pouze pro stěhování a není průjezdná.
Bytový komplex je uzavřený v zahradě, ale zároveň využívá všech předností,
které v současné době brněnská čtvrť Královo pole obyvatelům poskytuje.
Autorská zpráva
Foto: Ing. arch. Bořivoj Čapák
Místo: Božetěchova, Brno – Královo Pole
Investor: DOMOPLAN – Bytový dům Kadetka s.r.o.
Autoři: Atelier RAW s.r.o. – doc. Ing. arch. Tomáš Rusín, doc. Ing. arch. Ivan
Wahla, spolupráce Ing. arch. Petr Mutina – Promed s.r.o.
Hlavní dodavatel stavby: Pozemní stavby Jihlava, spol. s r.o.
Počet bytů: 49
Zastavěná plocha: nadzemní část – 903,6 m2, podzemní část -2514,0 m2
Obestavěný prostor: 25 090,0 m3
Na stránkách investora najdete vide rozhovor s architektem Tomášem Rusínem o projektu – ZDE.
























Kaskády Hranice jsou skvělým příkladem toho, že i bytová výstavba může mít kvalitní architekturu, promyšlený urbanismus a příjemný prostor pro…
Architektura musí souviset s místem, nikoli místo s architekturou. Proto jakékoli stavby umožňující realizaci na různých místech nejsou ARCHITEKTUROU.
Z mého pohledu je fajn vidět, jak se i u tak „běžné“ věci, jako jsou překlady, řeší systémovost a přesnost!
Praktické řešení, hlavně z pohledu rychlosti výstavby a přesnosti👍 U těchto systémových prvků dává smysl, že zjednodušují realizaci a pomáhají…
Zajímavý posun ve stavebnictví, je vidět, že se dnes klade velký důraz hlavně na rychlost výstavby a přesnost provedení. Systémové…