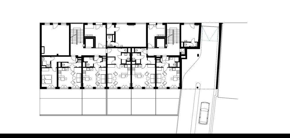
Bytový dům je první etapou zástavby proluky. Na uliční část bude navazovat nižší část dvorní, doplněna bude i další uliční část. Dům má sedm nadzemních podlaží a dvě komunikační jádra se schodištěm a výtahem. V každém z pater jsou čtyři byty různých velikostí. Každý z nich má směrem na jižní stranu do vnitrobloku balkon. Ložnice větších bytů s úzkým průběžným balkonem jsou orientovány na sever. V přízemí jsou k dispozici tři pronajímatelné jednotky s možností využití pro služby nebo ateliéry. Každý byt má v podzemním podlaží stání. Vjezd do garáží tvoří rampa z ulice. Součástí domu je i ozeleněný vnitřní dvůr, který je k dispozici jeho obyvatelům. Přístupný je ze vstupních hal prvního nadzemního podlaží.
Uliční fasáda je opatřena pravidelným rastrem francouzských oken, střídajících se s vertikálním zasklením schodišť. Po délce fasády jsou v patrech průběžné úzké balkony. Fasáda je obložena červenými cihelnými pásky, ukončenými bílými špaletami kolem oken. Sedmé patro je ustoupené. Směrem do vnitrobloku je jednoduchá fasáda s balkony opatřená bílou omítkou. Vstupní haly jsou obloženy keramickým obkladem navozující optický klam.
Po dostavbě druhé etapy vznikne komplex s širokou nabídkou bytů v klidném prostředí, přinášející do ulice novou kvalitu bydlení a života.
Autorská zpráva
Foto: Bořivoj Čapák
Investor: Realdata spol.sr.o. a Mig.
Autoři: Tomáš Rusín, Ivan Wahla, Lukáš Vágner; spolupráce Promed Brno s.r.o.
Stavební firma: Komfort a.s.





























Mě zase zaujal ten |ozeleněný vnitřní dvůr|, který se z velké části sestává z parkovacích stání…kdy už se konečně začne dávat přednost lidem před auty, páni architekti?
Tedy promiňte, ale kuchyni s gaučem, který nemá ani rozměry postele, říkáte byt? A kde je nějaká skříň?