Pozemek na konci slepé ulice v chatové oblasti je úzký a
stoupá prudce vzhůru po jižním úbočí říční terasy. Nad zářezem pro parkování
jsou posazena dvě obytná podlaží. Jejich objemy se nikde nedotýkají terénu a
půdorysně svírají úhel 90°. Nad částí prvního podlaží s ložnicemi tak vzniká
plocha pro střešní terasu u hlavního obytného prostoru ve druhém podlaží.
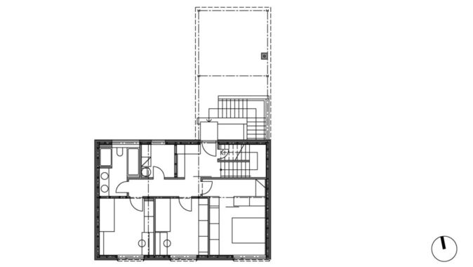
Z parkingu pod domem vede ke vstupu do bytu venkovní schodiště. Pokračující
vnitřní schodiště ústí uprostřed obytného prostoru s kuchyní a jídelnou na
jedné straně a sezením na druhé. Opěrné stěny zářezu pro parking, schodiště a
sklad jsou z monolitického železobetonu.
Na stěnách a ocelových sloupech spočívá klasická dřevostavba obytných pater,
příčnou tuhost druhého patra zajišťují čtyři ocelové rámy. Boční fasády směrem
k sousedům jsou opláštěné nehořlavými deskami CETRIS, zbývající plochy kryjí
modřínové lamely. Prosklení je důsledně stíněno venkovními žaluziemi.
Autorská zpráva
Foto: Ondřej Polák
Místo: Řevnice
Plocha pozemku: 1030 m2
Zastavěná plocha: 125 m2
Užitná plocha: 134 m2
Obestavěný prostor: 1011 m3




























Jako problém vidím hlavně "lavičky" v prostoru sdíleném s cyklisty. Neměly by mít třeba tyče s praporky, jako dětské nákupní…
Zdravím, děkuji za informaci o výstavbě v areálu i zmínku o vile, žel chybí aspoň informace, zda vila stojí a…
Článek působí docela věcně a snaží se jít víc po principu než jen po marketingu, což je za mě plus…
Chybí schody z levého břehu na most, takže s Chuchle přijedeme na Lihovar , musíme přejít Strakonickou a pak teprve…
Dobrý den,žádám o informace o novinkách. J.J.Kubát