Studio je součástí rozhlasového komplexu v Římské ulici na pražských Vinohradech, který byl postaven v letech 1998–2000 podle návrhu architektonického studia A.D.N.S. Od té doby neprošel žádnou zásadní stavební úpravou.
Cílem interiérové proměny bylo vytvořit adekvátní pozadí pro rozhlasové rozhovory či přenášené koncerty při dobré akustice prostoru. Výchozí myšlenka neutrálního a spíše intimního prostředí byla záhy rozšířena o ideu snadné proměny atmosféry studia tak, aby odpovídala náladám jednotlivých pořadů. V době postupující digitalizace tak vznikla myšlenka světelné stěny z LED pásků, pro kterou lze naprogramovat mnoho světelných motivů – statických i dynamických, jedno či vícebarevných, s nápisy i jinou libovolnou grafikou. Řešení, které umožňuje budoucí rozvoj dle aktuálních potřeb studia.
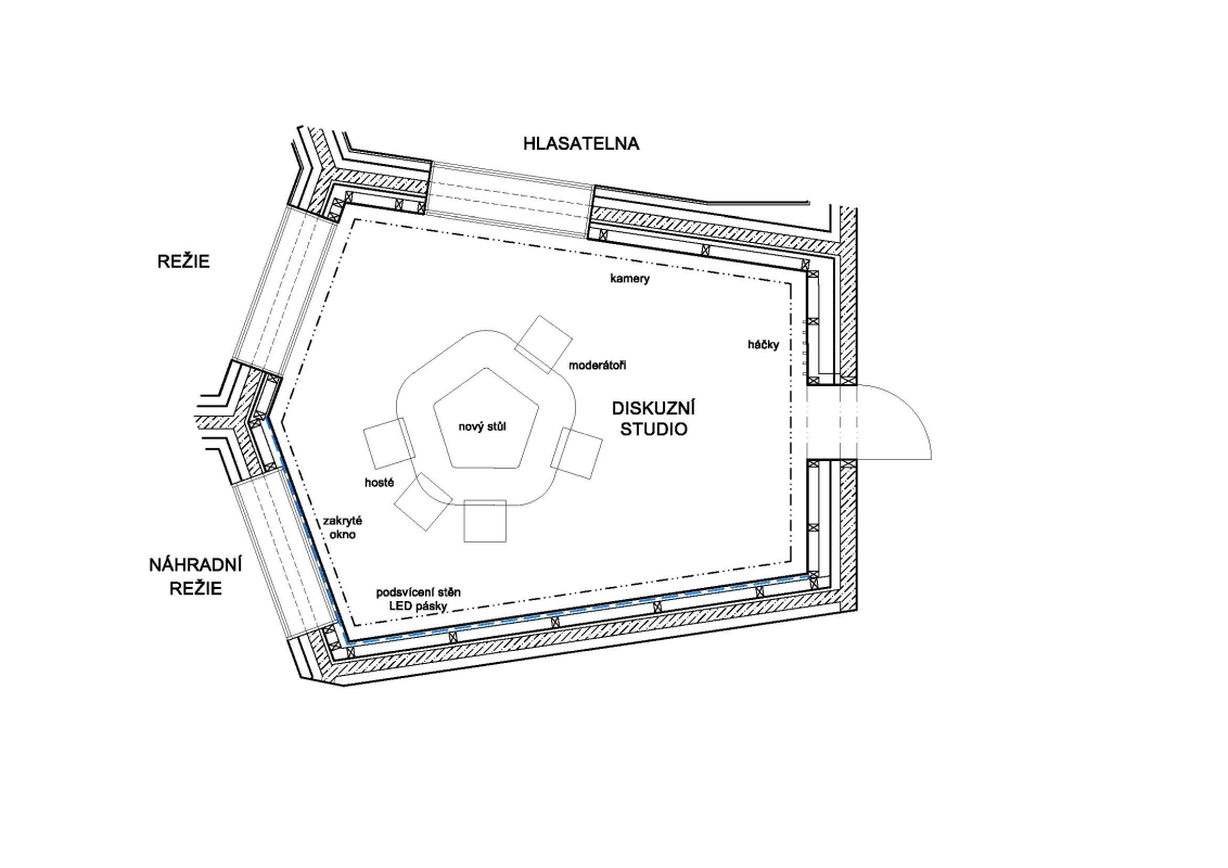
Bez rozsvícení světelné stěny je interiér laděný do neutrální tmavě šedé barevnosti. Studio je obloženo dřevěnými perforovanými panely z překližky mořenými do světlešedé. Vyřezávaný jednoduchý opakující se geometrický motiv umožňuje napojení panelů téměř bez viditelné spáry. Pod dřevěnými panely je podložena černá síťovina, která překrývá různorodé akustické stěnové panely, nezbytné pro správné fungování nahrávacího studia. Obložení končí u podlahy i stropu detailem negativní spáry. Na podlaze je položen nový černý koberec. Součástí návrhu byl také nový vysílací diskusní stůl. Dvouúrovňová deska ve tvaru pravidelného pětiúhelníku je vyrobena z černě mořené překližky se zafrézovaným měkkým pásem černého přírodního linolea pro tlumení úderů. Atypicky tvarovaná podnož je schránkou pro napojení a rozvedení kabelů všech potřebných zařízení. Studio bylo po celém obvodu doplněno o konzoli pod stropem sloužící pro rozmístění reflektorů, reproduktorů a kamer.
Autorská zpráva
Fotografie: Andrea Lhotáková
Autor: Marcela Steinbachová, architektonický ateliér SKUPINA
Spolupráce: Veronika Tichá
Projekt a realizace světelné stěny: WD Lux s. r. o.
Investor: Český rozhlas Vltava
Projekt: 2020–2021
Realizace: 2021


























Jako problém vidím hlavně "lavičky" v prostoru sdíleném s cyklisty. Neměly by mít třeba tyče s praporky, jako dětské nákupní…
Zdravím, děkuji za informaci o výstavbě v areálu i zmínku o vile, žel chybí aspoň informace, zda vila stojí a…
Článek působí docela věcně a snaží se jít víc po principu než jen po marketingu, což je za mě plus…
Chybí schody z levého břehu na most, takže s Chuchle přijedeme na Lihovar , musíme přejít Strakonickou a pak teprve…
Dobrý den,žádám o informace o novinkách. J.J.Kubát