Pozemek jako „na konci světa“, vymezený cestou, sousedním domem a roklí, každého osloví na první pohled. Mladí manželé si hned dovedli představit, že na tomto kouzelném místě lemovaném starými stromy a keři budou vyrůstat jejich dvě malé děti. Z časových a finančních důvodů (a také na základě svého vztahu k životnímu prostředí) se rozhodli pro dřevostavbu.
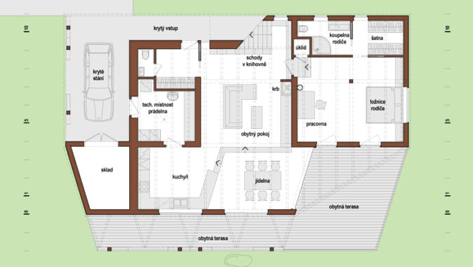
Obdélníková dispozice začíná na západní straně garáží u příjezdové cesty, pokračuje vstupní partií s hlavním vchodem do domu z boku a přechází ve společnou obytnou část, na niž navazuje oddělená klidová zóna s ložnicí rodičů a šatnou. Společný obytný prostor tvarovaný do L na západní straně přechází ven do zahrady velkou, zčásti krytou terasou, na níž se dá přímo vyjít také z ložnice. Z obývacího pokoje vede otevřené schodiště do haly v patře, která slouží jako herna pro děti. Kromě koupelny se v patře nacházejí další tři pokoje a půdní prostor. Hmota prvního patra spočívá nad přízemím jako kapitánský můstek na parníku, terasa je navržena jako lodní paluba. Část podkroví a šikmé schodišťové rameno jsou vykonzolovány z fasády a přirozeně zastřešují vstup do domu.
Interiér vznikl v návaznosti na celek, je založen na výhledu do zahrady. Dřevěné konstrukce tu byly ponechány přiznané a slouží jako estetický prvek, převažují tu přírodní materiály. Jádrem obývacího pokoje se stal krb a schodišťové těleso spojené s knihovnou. Na míru koncipované zařízení (kuchyňská linka, dveře a další vestavěné prvky) autor projektu doplnil nábytkovými kusy a doplňky vyrobenými v Indonésii, které rovněž sám navrhl a osobně z Indonésie přivezl. Dodávají obytnému prostoru nezaměnitelný a osvěžující výraz s osobitou duchovní dimenzí.
Konstrukční systém domu sestává z přízemního zděného jádra (garáž, zázemí,
společná obytná část) a dřevěné části (schodiště, ložnice, terasa, patro), obě
konstrukční soustavy zvenku odlišuje obklad z ručně vyráběné kamenné mozaiky a
dřevěný plášť z palubek. Zděná část přejímá funkci ztužení objektu, akustické
izolace a akumulace tepla, dřevěná část tvoří nadstavbu a jakýsi obal, který je
sochařsky tvarován.
Autorská zpráva
Foto: Vavřinec Menšl, Jana Labuťová, Jiří Vaněk, archiv autora
Architekt, TDI a organizace stavby: Tomáš Klanc, Klanc architekti; spolupráce na PD Kryštof Spilka
Místo: Vrátkov, okres Český Brod
Zastavěná plocha: 180 m2
Užitná plocha: 220 m2 obytný prostor; 50 m2 krytá terasa
Autorská zpráva
Foto: Vavřinec Menšl, Jana Labuťová, Jiří Vaněk, archiv autora
Architekt, TDI a organizace stavby: Tomáš Klanc, Klanc architekti; spolupráce na PD Kryštof Spilka
Místo: Vrátkov, okres Český Brod
Zastavěná plocha: 180 m2
Užitná plocha: 220 m2 obytný prostor; 50 m2 krytá terasa






























Musím konstatovat, že po dlouhé době jeden opravdu lidsky přívětivý dům. Líbí se mi i prezentace, konečně ukazující nesterilní prostředí 🙂
Líbí se mi. Jak perfektním provozním uspořádáním, tak použitými materiály a barvami. A také že mají knihovnu a klavír. Zajímavé je i to, že na rozdíl od většiny typových projektů rodiče zůstávají v přízemí a hosty pouštějí do patra. Nebo nápadité rozevření kuchyňské linky pro propojení s odpočinkovou částí místnosti. Přeji příjemné bydlení.
Krásné, funkční, příjemné pro oči i bydlení.
Pouze údržba vnějšího obložení bude poněkud náročná, pokud se autorům nepodařilo obstarat super kvalitní nátěrovou hmotu.