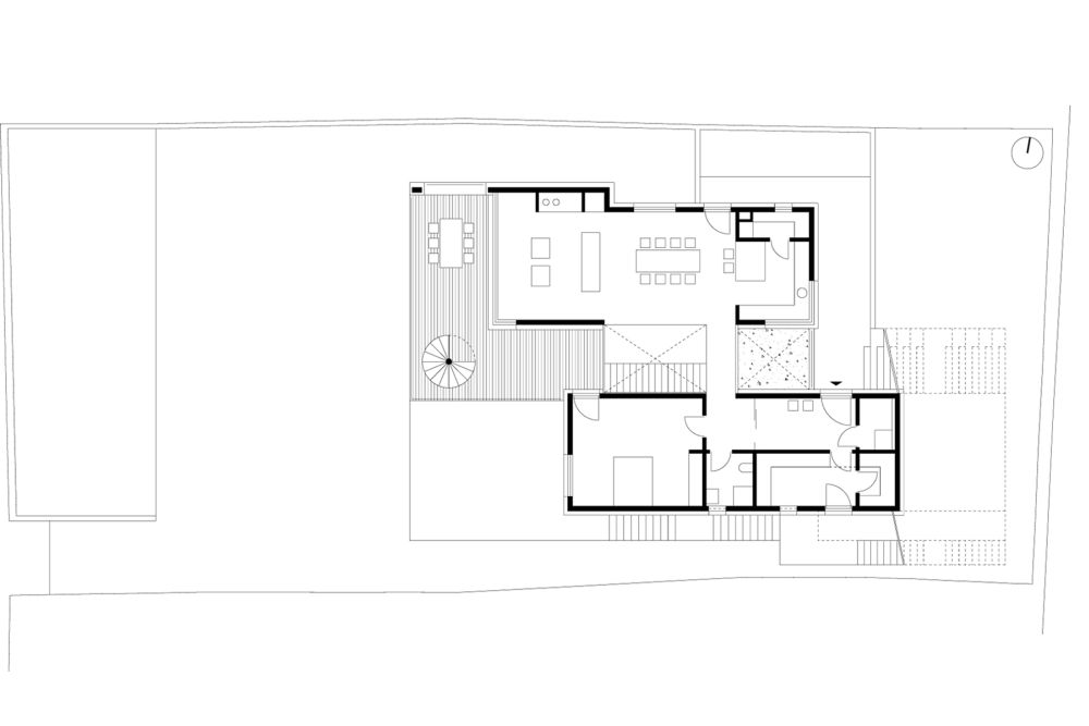
Rodinný dom v strmom svahu s krásnym výhľadom do údolia a
výbornou juhoápadnou orientáciou.
Prevýšenie svahu je až 12 metrov, pričom pozemok aj dom je prístupný z oboch
protiľahlých strán – prístupových ciest. Funkcie sa odohrávajú na štyroch
výškových úrovniach.
Koncepčne tvoria dom akoby dva domy, ktoré sú spojené
ústredným priestorom – galériou, schodiskom, átriom, loggiou. Všetky spomenuté
funkcie v sebe na troch výškových úrovniach a jednej osi spája ústredný
spojovací prvok. Svojou hmotou nie je veľký, ponúka však nečakané priehľady z
mnohých uhlov. Minimálne atrium vytvára v kontexte domu maximálny efekt – okrem
presvetlenia miestností vrezaných do svahu je oživujúcim zeleným prvkom
viditeľným z mnohých priestorov domu.
Autorská zpráva
Foto: Tomáš Manina
Místo: Bratislava






















Z mého pohledu je fajn vidět, jak se i u tak „běžné“ věci, jako jsou překlady, řeší systémovost a přesnost!
Praktické řešení, hlavně z pohledu rychlosti výstavby a přesnosti👍 U těchto systémových prvků dává smysl, že zjednodušují realizaci a pomáhají…
Zajímavý posun ve stavebnictví, je vidět, že se dnes klade velký důraz hlavně na rychlost výstavby a přesnost provedení. Systémové…
Jako problém vidím hlavně "lavičky" v prostoru sdíleném s cyklisty. Neměly by mít třeba tyče s praporky, jako dětské nákupní…
Zdravím, děkuji za informaci o výstavbě v areálu i zmínku o vile, žel chybí aspoň informace, zda vila stojí a…