Parcela poměrně úzkého trojúhelníkového půdorysu se nachází
na konci klidné příměstské čtvrti. Za ní, směrem severovýchodním, následuje už
jen prudký svah a krásný výhled do údolní nivy Vltavy. Dům jsme navrhli vůči
přístupu na pozemek do protilehlé, rozšiřující se části, ne však na její
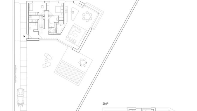
samotný okraj. Takovým umístěním jsme rozdělili zahradu na dvě, atmosférou se
lišící, partie. Přední z nich se stává dějištěm odpoledních aktivit u bazénu,
společenským prostorem potkávání příchozích a přítomných. Zejména při západu slunce
nad siluetou zámku získává jedinečnou atmosféru. Zadní je intimním místem vnímání
všudypřítomných barev, zvuků a vůní přírody. Tomu napomáhá zejména absence
plotu – optické bariéry, která by krásy okolí oddělila.
Hmotové a dispoziční řešení objektu předurčila krom
neobvyklého tvaru pozemku a orientace vůči světovým stranám zejména snaha o propojení
interiéru s exteriérem a to včetně začlenění zmíněných panoramatických prvků
coby významných interiérových spolupůsobitelů. Krom hlavního obytného prostoru
a místností podružných funkcí se v přízemí nachází i ložnice a koupelna rodičů.
Dětské pokoje, druhou koupelnu a terasu jsme umístili o patro výš. Dispoziční
návrh představuje kompaktní dům pro čtyřčlennou rodinu, pouhým přepažením v
chodbě za schody však můžeme docílit toho, že se z druhého podlaží stane
samostatná bytová jednotka.
Autorská zpráva
Místo: Hluboká nad Vltavou – Zámostí





























Architektura musí souviset s místem, nikoli místo s architekturou. Proto jakékoli stavby umožňující realizaci na různých místech nejsou ARCHITEKTUROU.
Z mého pohledu je fajn vidět, jak se i u tak „běžné“ věci, jako jsou překlady, řeší systémovost a přesnost!
Praktické řešení, hlavně z pohledu rychlosti výstavby a přesnosti👍 U těchto systémových prvků dává smysl, že zjednodušují realizaci a pomáhají…
Zajímavý posun ve stavebnictví, je vidět, že se dnes klade velký důraz hlavně na rychlost výstavby a přesnost provedení. Systémové…
Jako problém vidím hlavně "lavičky" v prostoru sdíleném s cyklisty. Neměly by mít třeba tyče s praporky, jako dětské nákupní…