Autorská zpráva
Zadání: 15 bytových jednotek, 5 samostatných rodinných domů. Respektování ochranného pásma zástavby, max. 1 NP, 1 PP a obytné podkroví, sedlová/valbová/polovalbová střecha, sklon střechy 30-45°. Max. podíl zpevněných ploch 35 %, celkem 15 parkovacích stání.
Pozemek
Největší devizou pozemku je jeho výhled na Lipenskou přehradu. Od komunikace a kempu na jihu ho oddělují stromy, jeho okolí zatím nabízí soukromí a klid. Má výhodnou orientaci ke světovým stranám a výrazný terénní spád, se kterým má smysl pracovat. Je nutné počítat s plánovanou okolní výstavbou a zajistit obyvatelům míru soukromí. Na pozemku se nachází pramen pitné vody, který je záhodno využít.
Koncept
Tvary budov jsou navrženy kompaktně a budovy tak tvoří jakousi hradbu od komunikace, která prosklenými částmi vytváří průhledy ve směru výhledu. Je tedy možné příčně vidět skrz celou budovu. Na směr výhledu také navazují odskočené části 1. NP, které tak vytváří na severní straně zádveří u vstupů a na jižní straně kryté terasy u obývacího pokoje.
Struktury domů hradbovou zástavbou tak vytváří soukromí pro budoucí obyvatele. Půdorysy objektů jsou obdobné s drobnými odchylkami, ale jsou často poskládány zrcadlově, takže domy nepůsobí jednotvárně, ale vnáší obyvatelům spolu s různou barvou materiálu míru originality
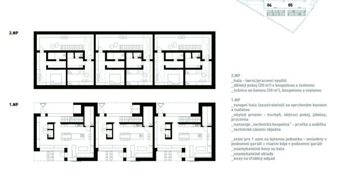
Stavební program: Jednopodlažní objekt s obytným podkrovím, podsklepený (3 domy) / nepodsklepený (2 domy)
1. NP: vstupní hala (uzavíratelná) se sprchovým koutem a toaletou; obytný prostor – kuchyň, obývací pokoj, jídelna, pracovna. Navazuje „technická koupelna“ – pračka a sušička, technická místnost u podsklepených objektů v 1. PP, u nepodsklepených objektů součástí technické koupelny.
Podkroví: hala – herní/pracovní využití, dětský pokoj (20 m2) s koupelnou a toaletou, ložnice se šatnou (30 m2) s koupelnou a toaletou
1. PP: technické zázemí objektu, open space – využití na nájemnících (sklad/prodejna/výrobna/ateliér/garsonka/sauna/herna atd.)
Stání pro jedno auto na bytovou jednotku, uzamykatelné boxy na kola a sklady, boxy na tříděný odpad
Mokřad s možností koupání, užitková zahrada, okrasná zahrada, ohniště, kompost







































Z mého pohledu je fajn vidět, jak se i u tak „běžné“ věci, jako jsou překlady, řeší systémovost a přesnost!
Praktické řešení, hlavně z pohledu rychlosti výstavby a přesnosti👍 U těchto systémových prvků dává smysl, že zjednodušují realizaci a pomáhají…
Zajímavý posun ve stavebnictví, je vidět, že se dnes klade velký důraz hlavně na rychlost výstavby a přesnost provedení. Systémové…
Jako problém vidím hlavně "lavičky" v prostoru sdíleném s cyklisty. Neměly by mít třeba tyče s praporky, jako dětské nákupní…
Zdravím, děkuji za informaci o výstavbě v areálu i zmínku o vile, žel chybí aspoň informace, zda vila stojí a…