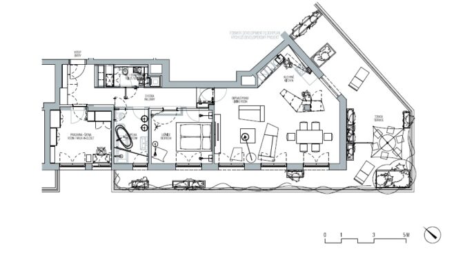
Výchozí developerská dispozice byla charakteristická častým
neduhem současných staveb – neuvěřitelně dlouhou chodbou, nejednoznačně
směřující k hlavní obytné místnosti. Tmavou chodbu jsme jemnými
modelacemi proměnili v přednost bytu. Kombinací povrchů, pastelových
odstínů a tvarováním stěn došlo k rozvolnění a prosvětlení tohoto prostoru. Portál
v konci chodby akcentuje vstup do obývacího pokoje.
V interiéru se prolíná otisk osobnosti majitele s minimalistickým přístupem k
designu. Vestavěný nábytek je autorský. Dominantním rysem skříní je
nenápadnost. Mají podobu užitkových zdí, za nimiž se ukrývá úložný prostor. Tomu
jsou uzpůsobeny detaily: světlá barevnost, bezúchytkové otvírání, redukce
členění, úzké spáry a eliminace klasických nábytkových detailů jako jsou
odskočené sokly, nebo lemování. Byt je zařízen pouze nezbytným množstvím
solitérního nábytku, bez interiérových dekorací.
Každý prostorový prvek byl komponován dle pravidel rozmístění výstavních
exponátů. Kuchyně je součástí obývacího pokoje, avšak oproti tzv. kuchyňským
koutům je v místností jasně prostorově vymezená a funkčně uspořádaná. Kuchyňský
nábytek jsme rozdělili do dvou protilehlých dílů, variabilní hloubka pracovní
plochy i nepravoúhlé členění úložných prostor odpovídají ergonomii vaření.
Individualizace prostoru je obohacena grafickým pojednáním stěn, tvořícím
stylizovanou mapu světa s vyznačením destinací, ke kterým má majitel bytu
osobní vztah.
Rostliny na terase jsou uspořádané do kompozice z pravoúhlých ostrovů a
myšlenkově navazují na charakter dělení teras mezi byty. Poetika terasy
kontrastuje s minimalismem v interiéru, vegetace graduje hlavní výsadbovou
plochou se stromem v nároží.
Autorská zpráva
Autor: skutek architecture – Ondřej Dvořák, Jiří Matys;
spolupráce Miroslav Juren
Grafika: Ondřej Dvořák,
Petr Štěpán (Studio Najbrt)
Terasa: Ondřej Dvořák, Ondřej Semotán,
Klára Dědová
Hlavní dodavatelé: PHA a.s., KMB nábytek





























Architektura musí souviset s místem, nikoli místo s architekturou. Proto jakékoli stavby umožňující realizaci na různých místech nejsou ARCHITEKTUROU.
Z mého pohledu je fajn vidět, jak se i u tak „běžné“ věci, jako jsou překlady, řeší systémovost a přesnost!
Praktické řešení, hlavně z pohledu rychlosti výstavby a přesnosti👍 U těchto systémových prvků dává smysl, že zjednodušují realizaci a pomáhají…
Zajímavý posun ve stavebnictví, je vidět, že se dnes klade velký důraz hlavně na rychlost výstavby a přesnost provedení. Systémové…
Jako problém vidím hlavně "lavičky" v prostoru sdíleném s cyklisty. Neměly by mít třeba tyče s praporky, jako dětské nákupní…