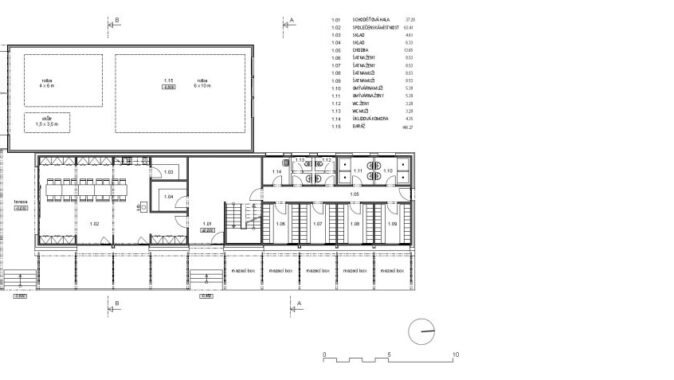
Východní fasáda ustupuje za krytou venkovní plochu, která částečně slouží jako mazací boxy a částečně jako divácká terasa. V přízemí objektu jsou šatny, umývárny a společenská místnost. Ve druhém podlaží jsou dvě klubovny. Součástí objektu je i garáž pro dvě rolby a skútr krytá hlavní hmotou.
Použít
pro stavbu umístěnou uprostřed lesů na vrcholu Chmelnice dřevěnou konstrukci
bylo naprosto přirozené. Navíc vlastnosti dřevěné stavby jsou v souladu s se
způsobem užívání objektu. Protože jsme chtěli, aby konstrukční dřevo bylo
přiznané, padla volba na CLT panely, které mají při malé tloušťce velmi dobrou
únosnost a lze je použít jak na stěnové i stropní konstrukce. 120 mm silné CLT
panely jsou v interiéru opatřeny pouze olejovým nátěrem a definují tak
charakter jednotlivých místností. Na vnější straně jsou panely zatepleny 150 mm
minerální izolace a obloženy modřínovým dřevem. Protože objekt bude využíván
celoročně, je vybaven tepelným čerpadlem a krbovými kamny.
Autorská zpráva
Foto: petrkostal.cz
Autor: ROSA – ARCHITEKT s.r.o. – Ing. arch. Michal Rosa; spolupráce Ing. Petr Košťál, Ing. Hynek Stiehl, Ing. Vít Zinga, Marie Dvořáková, Andrea Junková, Ing. Jan Pěnčík, Ing. Pavel Rus
Zastavěná plocha 382 m2; včetně terasy 499 m2, užitná plocha 420 m2
Autorská zpráva
Foto: petrkostal.cz
Autor: ROSA – ARCHITEKT s.r.o. – Ing. arch. Michal Rosa; spolupráce Ing. Petr Košťál, Ing. Hynek Stiehl, Ing. Vít Zinga, Marie Dvořáková, Andrea Junková, Ing. Jan Pěnčík, Ing. Pavel Rus
Zastavěná plocha 382 m2; včetně terasy 499 m2, užitná plocha 420 m2































Architektura musí souviset s místem, nikoli místo s architekturou. Proto jakékoli stavby umožňující realizaci na různých místech nejsou ARCHITEKTUROU.
Z mého pohledu je fajn vidět, jak se i u tak „běžné“ věci, jako jsou překlady, řeší systémovost a přesnost!
Praktické řešení, hlavně z pohledu rychlosti výstavby a přesnosti👍 U těchto systémových prvků dává smysl, že zjednodušují realizaci a pomáhají…
Zajímavý posun ve stavebnictví, je vidět, že se dnes klade velký důraz hlavně na rychlost výstavby a přesnost provedení. Systémové…
Jako problém vidím hlavně "lavičky" v prostoru sdíleném s cyklisty. Neměly by mít třeba tyče s praporky, jako dětské nákupní…