Byt se nachází ve starším Brněnském domě nedaleko pivovaru.
Původně nabízel malé byty pravděpodobně právě pro zaměstnance pivovaru. Některý
z předchozích majitelů propojil dva byty nad sebou do jednoho většího mezonetového.
A v takovém stavu ho koupila i naše klientka. Předchozí stavební zásahy
vyžadovaly propojení obou pater vnitřním schodištěm. To však bylo orientováno
trochu nešťastně s výstupem směrem k oknům. Původní dispozice bytu tedy
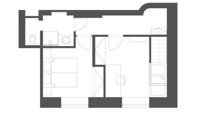
nabízela obývací pokoj s kuchyní a toaletu v prvním patře a dvě průchozí
ložnice a koupelnu v patře druhém.
Nejdůležitějším bodem rekonstrukce byla tedy změna orientace
stávajícího schodiště. Výstup v druhém patře tak umožnil vytvořit chodbu a z ní
přístupné dvě ložnice a koupelnu. Prostor nad schody byl využit jako vyvýšená postel,
vyrobená truhlářem. Poslední dispoziční úpravou bylo vytvoření předsíně v
prvním patře, kde luxferová stěna odděluje věšáky na kabáty od kuchyně. Dále
přišla na řadu výměna podlahové krytiny v celém bytě a nové obklady na toaletě
a v nové koupelně.
Schodiště zde hraje hlavní roli, proto mu byla věnována
pozornost i při vlastním interiérovém vybavení. Místem bylo nutno šetřit, kde
to šlo, a proto je v prvním patře prostor pod schody využit vestavěnou pohovkou
s úložným boxem, která vyplnila i půlkruhovou niku. Na atypickou pohovku
navazuje zábradlí se stylizovanou mříží, jejíž struktura odkazuje na vědeckou
profesi paní majitelky. V prvním patře se prostor nad schody využívá již
zmíněnou postelí. Nad hlavou je pak pamatováno i na pár poliček. Kuchyňská
linka, kterou v bytě zanechali původní majitelé, prozatím slouží svému účelu a
v budoucnu bude pravděpodobně nahrazena linkou novou. Koupelna v druhém patře
je obložena mozaikou s kruhovým dekorem, kde se střídají bílé a tmavě modré
plochy. Do bílé plochy je zakomponován drobný dekor z modrých koleček, která na
svá místa dle našeho návrhu umístili šikovní řemeslníci.
Celkové řešení bytu nabídlo praktičtější dispoziční využití i dostatek prostoru
pro umístění mnoha knih, květin, suvenýrů z cest i dárků od rodiny a přátel,
které majitele obklopují.
Autorská zpráva
Foto: Iveta Kopicová
Mezonetový byt v Brně
Architect: Mooza architecture – Ing. arch. Petra Bíšková, Ing. arch. Klára
Císařovská
Užitná plocha: 72 m2






















Architektura musí souviset s místem, nikoli místo s architekturou. Proto jakékoli stavby umožňující realizaci na různých místech nejsou ARCHITEKTUROU.
Z mého pohledu je fajn vidět, jak se i u tak „běžné“ věci, jako jsou překlady, řeší systémovost a přesnost!
Praktické řešení, hlavně z pohledu rychlosti výstavby a přesnosti👍 U těchto systémových prvků dává smysl, že zjednodušují realizaci a pomáhají…
Zajímavý posun ve stavebnictví, je vidět, že se dnes klade velký důraz hlavně na rychlost výstavby a přesnost provedení. Systémové…
Jako problém vidím hlavně "lavičky" v prostoru sdíleném s cyklisty. Neměly by mít třeba tyče s praporky, jako dětské nákupní…