Penthouse je rekonstrukcí apartmánu v bytovém komplexu,
který vznikl v 70. letech 20. století za účelem zatraktivnění okrajové části
města Nice spolu s marinou na pobřežní promenádě. Obsahuje téměř 1600 bytů. Náš
byt se nachází ve vyšším podlaží jedné z budov, které jsou obzvláště ceněné pro
své dálkové výhledy. Byty spojují venkovní schodiště a pavlače, z nichž se
vchází do jednotlivých apartmánů. Každý z nich má velký balkon nebo
terasu, jejich prostorový koncept byl považovaný v době návrhu komplexu za
poměrně radikální.
Již z porovnání ploch teras a vnitřních prostor samotného
apartmánu vyplývá, že maximální propojení s vnějším prostředím je alfou a
omegou řešení. Rozdíl mezi vnímáním pojmů uvnitř a vně se tak stírá – prostory
se navzájem prolínají a hranice mezi nimi je patrná pouze v případech nepřízně
počasí, kdy jsou uzavřeny části prosklených stěn. Většinu místností apartmánu
tak lze spíše vnímat jako zastřešené plochy, než jako místnosti v běžném smyslu
slova (tedy od exteriéru izolované obvodovým pláštěm).
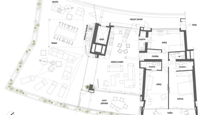
Dispoziční schéma respektuje původní koncept organického řešení stavby. Systém radiálních
nosných stěn je zachován a doplněn novými příčkami, natočenými většinou
diagonálně. Vznikly tak místnosti lichoběžníkového půdorysu (standardní ortogonální
systém příček téměř nebyl použit). Vlastní apartmán tvoří obývací pokoj s
kuchyní, chodba a tři ložnice, každá s vlastním hygienickým zázemím.
Výběr materiálů použitých v interiéru koresponduje s pojetím, které je pro
mediteránské prostředí charakteristické. Barevnost povrchů se pohybuje od bílé
přes krémovou po lomené odstíny světle šedé. Vše voleno tak, aby interiér
působil světle, čistě vzdušně. Dominantními materiály jsou pak travertin a
bělené dřevo.
Snaha o maximální provázanost s exteriérem a podpoření výhledů na hladinu moře
se projevila též použitím leštěných nerezových obkladů na podhledech u oken na
terasy (tedy nad pobřežím). Zrcadlový efekt díky tomu umožňuje vnímat obraz
moře i z míst, kde by to jinak nebylo možné – například z postelí v ložnicích
orientovaných k přístavu.
Unikátní je rovněž systém zasklení a osazení velkoformátových okenních prvků
(Reynaers) využívající posuvných stěn se skrytými rámy (až 490 cm), pro jejichž
osazení v cílovém podlaží musela být vyvinuta společně s výrobcem speciální
mechanizace. Nejen díky tomu výsledek rekonstrukce otevírá byt výhledům do
okolí a na Středozemní moře způsobem, který nebyl dosud technicky dosažitelný.
Autorská zpráva
Foto: Filip Šlapal
Autoři: Nedvěd architekti – Mgr. A. Jan Nedvěd, Ing. arch
Viktor Sunek, Ing. arch. Jakub Smolka
Užitná plocha: 159,5 m2 + 148,3 m2 terasy
























Kaskády Hranice jsou skvělým příkladem toho, že i bytová výstavba může mít kvalitní architekturu, promyšlený urbanismus a příjemný prostor pro…
Architektura musí souviset s místem, nikoli místo s architekturou. Proto jakékoli stavby umožňující realizaci na různých místech nejsou ARCHITEKTUROU.
Z mého pohledu je fajn vidět, jak se i u tak „běžné“ věci, jako jsou překlady, řeší systémovost a přesnost!
Praktické řešení, hlavně z pohledu rychlosti výstavby a přesnosti👍 U těchto systémových prvků dává smysl, že zjednodušují realizaci a pomáhají…
Zajímavý posun ve stavebnictví, je vidět, že se dnes klade velký důraz hlavně na rychlost výstavby a přesnost provedení. Systémové…