Objekt postavený podle návrhu architekta Emiliana Herbiga je národní kulturní památkou. V období kolem roku 2002 však začínalo být jasné, že přes všechny úpravy, externí pobočky a jiné výpomoci již muzeum kapacitně a provozně nevyhovuje. Bylo proto rozhodnuto o rekonstrukci stavby včetně dispozičních a technických změn. Projekt zpracoval pražský ateliér Hlaváček – architekti a jablonecký Atelier 4. Nově uspořádané muzeum získalo cenu Asociace muzeí a galerií ČR Gloria musealis, následně bylo nominováno na hlavní cenu ředitele European Museum Forum – Lisbon 2006.
Kolem roku 2014 se opět ukázalo, že prostorové kapacity muzea už nestačí, a je třeba ho rozšířit. Řešení bylo ale od počátku provázeno stresem a nejistotou. Náš tým se totiž potýkal s otázkou, jak přistavět objekt k domu, který je památkově chráněný a ucelený. Jediným vodítkem bylo doporučení ze strany muzea a NPÚ, že by přístavba mohla být na pravé straně objektu (při pohledu od Nisy), ale jen do úrovně stropu 3. NP. Tím byl vymezen její tvar, který musel respektovat stávající balkony a tzv. Pelantovo schodiště. Když jsme přijali tato omezení jako limitní s definovanými rovinami, vycházel nám tvar přístavby jako tupý, agresivní a nepříjemný hranol, trčící do parku. Od začátku bylo zřejmé, že není akceptovatelný. Nicméně právě od tohoto tvaru se rozvíjela nová koncepce. Hmotu jsme postupně zjemňovali, nejprve pomocí fasádního členění, zejména okny. To byl ale problém, dostali jsme se do rozporu se zadáním. Střední podlaží totiž mělo být bez oken kvůli svému využití pro expozici vánočních ozdob.
V první fázi projektu jsme proto
předpokládali, že okna budou pouze v multifunkčním prostoru na úrovni 3. NP. Toto
řešení však bylo stále příliš robustní, proto jsme začali do hmoty přístavby
zasahovat různými zalomeními fasády. V první fázi půdorysnými, později i v
různých částech řezu. Objekt tak začal ztrácet hranolovitou formu a získával amorfnější
tvar. Okenní části stále nabývaly na ploše, sklo nakonec pokrylo téměř celou
plochu horní fasády. Skleněná fasáda nás lákala k bohatšímu tvarovému řešení,
postupně se vynořila asociace s broušenými krystaly bižuterie. Rozpor mezi
řešením horní a spodní fasády však byl stále větší, museli jsme najít novou formu
propojení fasád. Spodní fasádu jsme vytáhli i do horní úrovně, finálním krokem
bylo vytvoření kompaktního tvaru. Požadavek na 2. NP bez oken jsme nakonec
vyřešili použitím černého neprůhledného skla a jeho částečným přetažením do 3. NP
v místech, kde bylo třeba zamaskovat konstrukce a technologie. Hrátkou jsou na
černé fasádě nepravidelné body průhledného skla, které jsou kopií nebeských
souhvězdí.
Architektonický návrh
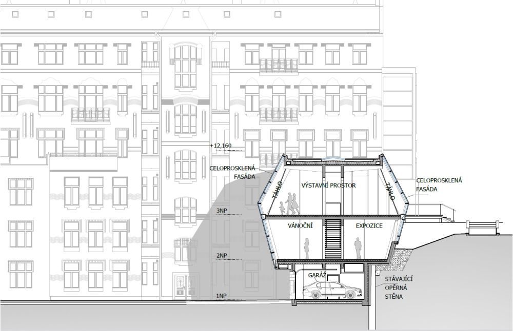
S problematikou výrazu a tvaru stavby se vyvíjel i názor na konstrukci. Ustoupili jsme od původního předpokladu jednoduché a standardní konstrukce. Vzhledem k relativně malému půdorysnému rozsahu objektu se navíc objevil problém umístění schodiště a výtahu. Poté, kdy byl vznesen požadavek na umístění malé kavárny do 2. NP, se ukázala jako výhodná centrální poloha schodiště. Vznikl tak částečně krytý prostor pro barový pult a jeho zázemí. Výtah do dvora byl později zrušen. Symetrické umístění schodišťového tělesa vyčistilo dispoziční řešení a přispělo k vytvoření jednoduchého principu základní konstrukce.
Ve chvíli, kdy se konstrukce začala blížit tvaru krystalu, bylo zřejmé, že nelze setrvat v celém rozsahu na betonových nosných konstrukcích, a že bude nutné alespoň tu část, která vytváří nosnou konstrukci obvodového pláště, vyrobit z ocele. Tato konstrukce ale vnáší do železobetonových stropních konstrukcí zatížení. Konzolovité konstrukce stropů bylo nutné posílit šikmými ocelovými táhly a ve výsledku vznikla staticko-architektonická kompozice, která propojuje technické a architektonické kvality betonu, oceli a skla. Ve všech podlažích plynule navazuje na dispoziční řešení původního objektu.
Architektonický návrh
S problematikou výrazu a tvaru stavby se vyvíjel i názor na konstrukci. Ustoupili jsme od původního předpokladu jednoduché a standardní konstrukce. Vzhledem k relativně malému půdorysnému rozsahu objektu se navíc objevil problém umístění schodiště a výtahu. Poté, kdy byl vznesen požadavek na umístění malé kavárny do 2. NP, se ukázala jako výhodná centrální poloha schodiště. Vznikl tak částečně krytý prostor pro barový pult a jeho zázemí. Výtah do dvora byl později zrušen. Symetrické umístění schodišťového tělesa vyčistilo dispoziční řešení a přispělo k vytvoření jednoduchého principu základní konstrukce.
Ve chvíli, kdy se konstrukce začala blížit tvaru krystalu, bylo zřejmé, že nelze setrvat v celém rozsahu na betonových nosných konstrukcích, a že bude nutné alespoň tu část, která vytváří nosnou konstrukci obvodového pláště, vyrobit z ocele. Tato konstrukce ale vnáší do železobetonových stropních konstrukcí zatížení. Konzolovité konstrukce stropů bylo nutné posílit šikmými ocelovými táhly a ve výsledku vznikla staticko-architektonická kompozice, která propojuje technické a architektonické kvality betonu, oceli a skla. Ve všech podlažích plynule navazuje na dispoziční řešení původního objektu.
Z urbanistického hlediska přístavba nenarušuje koncepci okolí budovy. Výškově je přizpůsobena křídlu v levé části jižní fasády. Výškově využívá dvoupodlažního rozdílu protilehlých fasád stávající budovy a nad terén z pohledu z parku vystupuje jen jedním podlažím. Spodní dvě podlaží jsou skryta za opěrnou stěnou. Ze strany dvora je 2. a 3. NP přístavby výrazně překonzolováno přes půdorys 1. NP. Východní strana 3. NP je překonzolována přes opěrnou stěnu do parku.
Z hlediska architektonického přístavba podporuje symetrii secesní budovy muzea. Požadavkem NPÚ byly co nejmenší zásahy do její jižní fasády, proto jsme zvolili nepravidelný půdorysný tvar nové části objektu. Navazuje na vstupní foyer, vyhýbá se balkonu na úrovni 4. NP a dává mu architektonicky vyniknout.
Budova muzea je
svým architektonickým výrazem natolik intenzivní, že jsme v podstatě nemohli navázat
žádnou architektonickou formou, která by v kontextu nepůsobila cize. Snad pouze
kopírováním západního křídla by bylo možné docílit splynutí nové a původní
části. Toto řešení by však bylo nepoctivé a neodpovídalo by současným výrazovým
trendům. Náš projekt jsme proto založili na přiznaném kontrastu nové a staré
části. Inspirací ke tvaru objektu byl skleněný krystal, který jsme ztvárnili fasádou,
prolamovanou pomocí nepravidelných velkých ploch. Tyto plochy jsou dále členěny
na pravidelné menší okenní díly. Fasáda je řešena jako jednoplášťová s
izolačním trojsklem. Konstrukce prosklené fasády je provedena fasádním lištovým
systémem.
Přístavba je samostatným objektem stavebně oddilatovaným od stávající budovy. Z
východní strany je stávající opěrná stěna z kamene. Ta byla po ošetření, přespárování,
konzervaci a ochraně zachována. Byly do ní vyvrtány nové otvory pro odvod
podzemní vody za opěrnou stěnou. Přístavba k ní je pouze přistavěna. Oddělení
je provedeno pomocí separačních geotextilií a mezerovitého betonu vylitého do
jednostranného bednění.
Konstrukční řešení
Konstrukčně se jedná o třípodlažní, v jádru železobetonový objekt. Jde o kombinaci stěnového systému, trámového stropu a jednoho zavěšeného stropu na ocelových táhlech. Hlavním vertikálním nosným prvkem jsou dvě monolitické stěny v podélné ose přístavby. Nad 3. NP jsou zakončeny vykonzolovaným trámovým stropem, na který je pomocí táhel na koncích trámů zavěšena stropní monolitická deska nad 2. NP. Tato deska je ještě podepřena kruhovými sloupy v osách dvou schodišťových stěn.
Konstrukční řešení
Konstrukčně se jedná o třípodlažní, v jádru železobetonový objekt. Jde o kombinaci stěnového systému, trámového stropu a jednoho zavěšeného stropu na ocelových táhlech. Hlavním vertikálním nosným prvkem jsou dvě monolitické stěny v podélné ose přístavby. Nad 3. NP jsou zakončeny vykonzolovaným trámovým stropem, na který je pomocí táhel na koncích trámů zavěšena stropní monolitická deska nad 2. NP. Tato deska je ještě podepřena kruhovými sloupy v osách dvou schodišťových stěn.
První nadzemní podlaží je stěnové, železobetonové. Obvodové stěny jsou z vnější strany obložené tepelnou izolací a kamenem. Druhé a třetí nadzemní podlaží přečnívá přes půdorys 1. NP. Výztuž je vesměs pnutá v příčném směru.
Nosnou konstrukci skleněné fasády tvoří rámy z ocelových uzavřených obdélníkových profilů. Rámy jsou lomené podle průběhu fasády v dané rovině rámu. Vznikly tak základní plochy prosklené fasády, které jsou dále členěny na obdélníky o rozměrech 2,5 x 1,5 metrů. Rámy se kotvily k čelům železobetonových vodorovných konstrukcí. Atypičnost konstrukce nespočívá jen v jejím tvaru, ale i v tom, že dodavatel nedostal projektovou dokumentaci ve standardním provedení, ale ve 3D modelu, ze kterého vyrobil 2D dokumentaci. To mělo dopad i na řešení a dodávku proskleného obvodového pláště. Při náročném svařování ocelové konstrukce v netypických úhlových pozicích se tvary pláště vždy poněkud odchýlí od projektu a dochází k tomu, že i původně shodné okenní tvary se, i když nepatrně, liší. Každá okenní tabule musela být zaměřována po ukončení montáže ocelové konstrukce zvlášť. Mělo to dopad i na úpravu způsobu fixace skel k ocelové konstrukci.
Vnitřní centrální schodiště je prosklené bez podstupnic. Na stupnicích je bezpečnostní sklo s mléčnou fólií. Jednotlivé stupně se kotvily do bočních schodišťových stěn.
Autorská zpráva
Novostavba Muzea skla a bižuterie získala titul Stavba roku 2020
Autor a projekt: Michal Hlaváček; spolupráce Zdeněk Holek, VeronikaTrachtová, Jaroslava Stojanová
Statika: Ing. Jan Margold
Dodavatel: Energie – stavební a báňská




























Myslím, že se to bude líbit. Díky zrcadlení okolí na fasádě vypadá objekt mnohem lépe, než vypadal v projektu. A taky už jsou dneska lidi na |nekrabicové| domy víc zvyklí.