Budovy škol v drobné zástavbě obcí často tvoří dominanty. Je
tomu tak i ve starých Ďáblicích, kde základní škola dominuje svojí velikostí na
nejvyšším místě návsi.
S razantním rozvojem obcí se školní zařízení zvětšují nebo se improvizuje. S
improvizací měli ďábličtí v 70. a 80. letech bohaté zkušenosti, kdy se školy
stavěly spíše na sídlištích. Až v roce 1999 se realizoval projekt rozšíření
školy se zastropeným dvorem v koncepci oddělených školních stupňů v památkové
zóně historického jádra obce. Poměrně záhy však nová kapacita opět nevyhovovala.
Na počátku roku 2014 tak ďáblická radnice se starostou panem Ing. Milošem
Růžičkou rozhodla o záměru navýšení kapacity školy o čtyři kmenové učebny. Obci
byly předloženy čtyři varianty umístění nového objemu – do krovu, dvě verze
dostavby do školní zahrady a dostavba uzavírající školní blok. Jednoznačně bylo
rozhodnuto pro dostavbu uzavírající blok, aby se zachovaly prostory půdy i zahrada.
V průběhu projektování pak bylo zadání rozšířeno o další dvě učebny společně s
rekonstrukcí původního školního prostředí. Jako architekti jsme se snažili
vytvořit školu s přátelským a vlídným prostředím, má to být kvalitní schránka
pro předávání vědění, zkušeností, místo setkávání i her.
Nová dostavba uzavírá školní blok v tradičním principu, kde
budovy oddělují soukromý prostor od veřejného. Vznikl tak rynek, do kterého
jsme umístili hlavní vstup do školy. Rynek s lavičkami a vysazenou lípou hojně
využívaný pro školní akce nahradil parkoviště. Původní plocha plácku užívaná
například pro fotbálek byla transformována a přesunuta na střechu dostavby v
podobě letní učebny. Z rynku je brankou přístupná školní zahrada, která ještě
čeká na úpravy.
Vnější uzavření bloku školy vytvořilo příležitost pro vnitřní provozní
propojení budov, výrazně zvyšující komfort užívání. Zároveň odpadla potřeba
schodiště a hygienických zázemí, které se nacházejí ve starších budovách. Nová
dostavba je tak vlastně malým objemem s jednou nosnou zdí, oddělující učebny od
chodby.
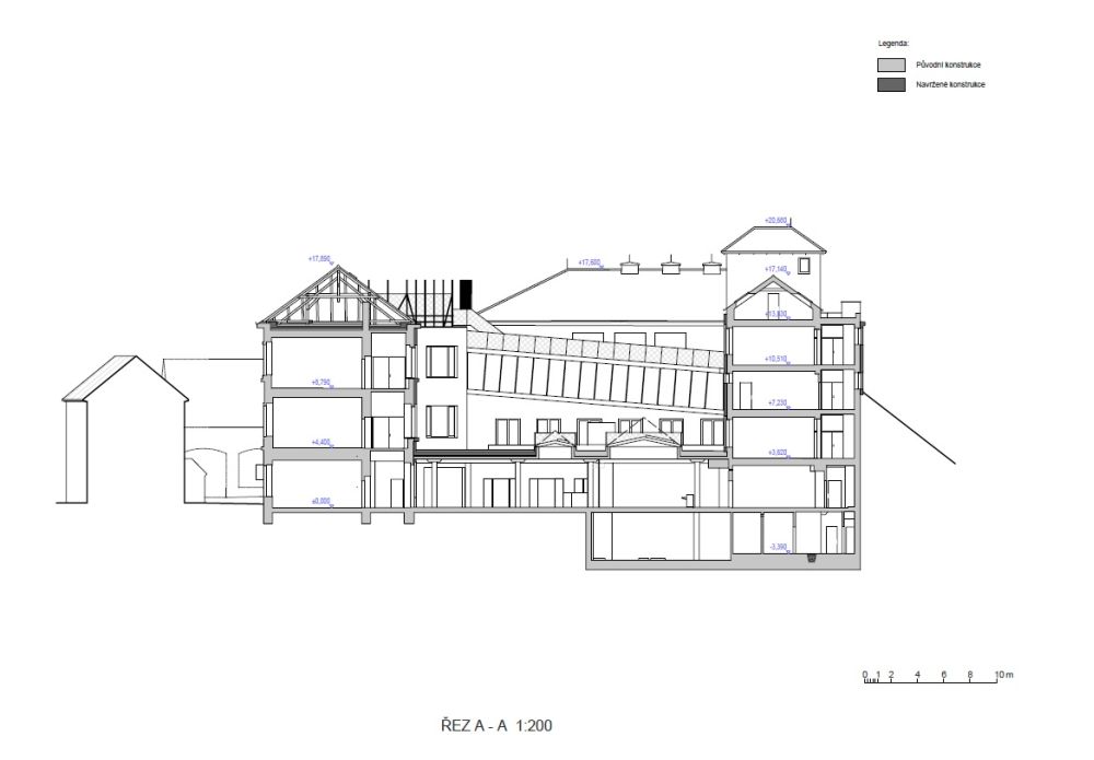
Stará škola má tři podlaží s krásnými vysokými prostory, pozdější dostavba má
čtyři podlaží s nižšími prostory při stejné výšce domu, což vyžadovalo navržení
bezbariérového propojení rampami. Aby bylo možné zokruhovat chodby i ve 3.NP, navrhli
jsme krytou lávku vedle tělocvičny. Ta zároveň vyrovnává výškové úrovně a umožňuje
přístup na střechu dostavby. Novostavba se vstupem přirozeně navázala na
výškové uspořádání staré školy.
Fasády staré školy a pozdějších dostaveb mají záměrně sjednocenou
barevnost fasád. Dostavba a rozšíření školy z roku 1999 vytvářejí drobným
architektonickým pojetím a vnitřním vybavením jeden celek, druhým celkem v
bloku budov je původní majestátní budova. Rozdíly obou částí jsou v jemnostech,
jako například detaily členění fasády, okna, dveře, jiné povrchy podlah a stěn
nebo jiná světla. Domníváme se, že tato odlišnost pomáhá lepší orientaci a
přehlednosti ve škole a zachovává důležitou identitu jednotlivých částí.
Prosvětlení, zpřehlednění a vložení nových oddychových koutů
v přistavovaných částech doplňuje velkorysost a krásu obnovených prostorů staré
budovy a spoluvytváří přátelské prostředí. Dvorana v přízemí s jídelnou a malým
atriem je centrálním prostorem. Atrium je „vzpomínkou na původní dvůr“.
Dvě jídelny nabízejí další možnosti využití jako například ranní i odpolední
družina, promítací salonek nebo klubovna. Flexibilitu ve smyslu celodenního
víceúčelového využití místností považujeme za velmi důležitou, protože je škoda
využívat prostory jídelny pouze 2,5 hodiny denně.
Důležitými prvky návrhu byly nově umístěné otvory a okna do
průhledů, umožňující vizuální propojení a nový průnik světla do temných spících
koutů. Všechny vstupy do učeben jsou prosklené z důvodů otevřenosti, průchodu
světla do chodeb a také z důvodů přehlednosti.
Na střeše nové dostavby je umístěna letní „botanická“ učebna s tabulí, dřevěným
sezením a možností zastínění, které umožní vytvořit „stan“. Vedle stanu je
kopec s kameny a bylinami.
Důležité bylo rozhodnutí používat kvalitní materiály na povrchy podlah. Ve
staré škole je lité teraco na chodbách a dubové parkety v učebnách, v nové
části jsou stěrky na chodbách a dubová prkna v učebnách. Ve dvoraně je žluté
linoleum a ve vstupu černé čistící rohože. Tyto materiály mají dlouhou
trvanlivost a budou dobře stárnout. Všechny nové zásahy jsou navržené jako
funkční prvky s civilním výrazem, aby neobtěžovaly a dobře se vstřebávaly.
Stropy a stěny dostavby jsou z monolitického betonu a následně zatepleny EPS.
Základy jsou z betonových pilotů zakončených železobetonovými pasy. Příčky z
keramických příčkovek, stěny šikmé lávky z ocelového příhradového nosníku,
stropy z ocelobetonu. Střechy jsou ploché, hydroizolace z PVC fólie. Stropy
mají SDK akustické podhledy. Okna jsou dřevohliníková s trojskly a vnějšími
hliníkovými žaluziemi, na staré škole s vnějšími textilními roletami. Dveře
jsou hliníkové černé nebo z pozinku, ve staré budově dřevěné kazetové. Součástí
velké přestavby byla modernizace plynové kotelny, která vyžadovala umístění
dočasné mobilní kotelny.
Vklíněná dostavba na rozdíl například od nového samostatného
školního pavilonu vyžadovala při samotné stavbě značné nároky na dobrou organizaci
práce s určitým omezením a protihluková opatření, protože měl být zachován
důstojný provoz školy a prázdninové dva měsíce jsou krátkou dobou pro realizaci
tohoto záměru. Školní sbor tak musel překonávat nemalé obtíže spojené s
realizací stavby a patří jim velký obdiv.
Realizace proto byla rozložena do několika fází. První obsahovala přestavbu
družiny a bytu školníka na dvě kmenové učebny a šatny na přízemí bloku
tělocvičny, druhou fází bylo zateplení budovy včetně instalace venkovního
zastínění a výměny některých poničených oken. Třetí etapou byla rekonstrukce
školy a realizace dostavby včetně propojení. V současné době se projektuje
čtvrtá fáze střešní nástavby pro učebnu fyziky a chemie s protažením výtahu a
schodiště.
Autorská zpráva
Zadavatel: MČ Praha – Ďáblice
Autor: Škardaarchitekti – Ing. arch.
Václav Škarda; spolupráce Tomáš Bílek, Miloš Hlaváček, Lukáš Houser, Bořek
Peška, Michal Zaremba




















































Otázka z titulku nebyla zodpovězena. Pod obrázky chybí popisky (kategorie, umístění). Jsou alespoň v pořadí, ve kterém jsou ceny uvedeny…
Gratulace všem oceněným i nominovaným realizacím... Je vidět, že i u zděných domů vzniká spousta kvalitních a architektonicky zajímavých staveb..
Zajímavé domy a každý z nich je něčím jiným výjimečný, gratuluji👏👍
Soutěž Dům roku 2025 opět ukázala, že kvalitní architektura vzniká v různých podobách, od citlivých rekonstrukcí po moderní novostavby. Obrovský…
Každý jeden dům si vítězství zasloužil!!!