Prostory bytu jsou jednoduše definovány průhlednými příčkami se závěsy, které umožní vnímat a užívat si celou hloubku prostoru. V případě potřeby však poskytují dostatek intimity. Nábytek definuje jen to, co je nejdůležitější a nezbytné. Naším záměrem bylo vytvořit atmosféru spíše než přísně definované prostory.
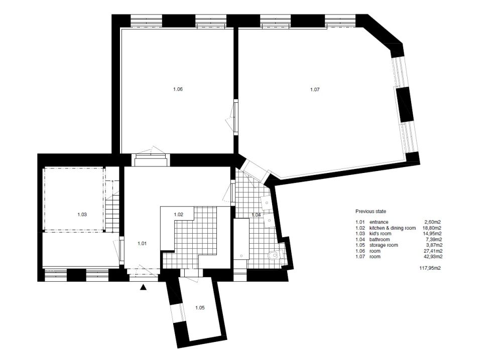
Do bytu se vstupuje ze soukromého dvora, který slouží obyvatelům domu. Uvítá vás velká jídelna s kuchyní umístěná na místě bývalé komory, která mírně zasahuje do jídelny. Vlevo můžete vstoupit do dětského pokoje starými dveřmi vloženými do průhledné přepážky. Vpravo vidíte dlouhou průhlednou příčku definující koupelnu. Pokračuje do druhého křídla bytu, kde odděluje ložnici od obývacího pokoje s klavírem, vnitřní zahradou, filmovou projekcí a troubou. Líbí se nám prostorová hloubka, kterou jsme si v bytě vytvořili. Máme rádi možnost vidět skrz více prostorových vrstev. V části bytu s obývacím pokojem se nám podařilo odhalit původní dřevěný trámový strop, přes který navíc přecházejí ocelové výztuhy.
Flexibilní a otevřený domov pro mladou rodinu v domě starém téměř 120 let.
Autorská zpráva
Foto: Matej Hakár





































V botách z venku rovnou do jídelny – to je tedy hygiena.