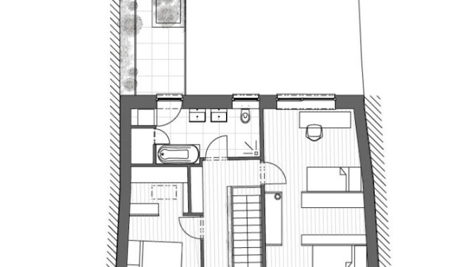
Navrhli jsme stavební úpravy a nástavbu řadového rodinného
domu. Jeho původní stav byl nevyhovující – odstranili jsme poddimenzovaný
strop, kvůli vlhkosti byly veškeré stěny podřezány, podlahy odkopány a
provedeny nově. Částečně byly posíleny i základy. Nad přízemím je nový
železobetonový strop pro celkové ztužení konstrukce vyzděné z nepálených cihel.
Patrová nástavba je kombinací cihelného zdiva po obvodu objektu a dřevěných
hrázděných stěn vyplněných dusanou hlínou uvnitř dispozice. Vše je uzavřeno
pohledovým dřevěným trámovým stropem s vegetační střechou.
Dispozice v přízemí je nyní rozdělena na dvě části, z nichž jednu využíváme
jako kancelář. V celém domě jsou hliněné omítky.
Autorská zpráva
Foto: Jaroslav Mareš
Autoři: Darja Kafková, Ondřej Kafka



























Kaskády Hranice jsou skvělým příkladem toho, že i bytová výstavba může mít kvalitní architekturu, promyšlený urbanismus a příjemný prostor pro…
Architektura musí souviset s místem, nikoli místo s architekturou. Proto jakékoli stavby umožňující realizaci na různých místech nejsou ARCHITEKTUROU.
Z mého pohledu je fajn vidět, jak se i u tak „běžné“ věci, jako jsou překlady, řeší systémovost a přesnost!
Praktické řešení, hlavně z pohledu rychlosti výstavby a přesnosti👍 U těchto systémových prvků dává smysl, že zjednodušují realizaci a pomáhají…
Zajímavý posun ve stavebnictví, je vidět, že se dnes klade velký důraz hlavně na rychlost výstavby a přesnost provedení. Systémové…