Dům má název 58 sekund – podle statistických údajů prý totiž
za tuto dobu vyroste v rakouských lesích dřevo potřebné k jeho stavbě. A
kromě toho vzniká jako další produkt kyslík, který by pro jednomu člověku
vystačil na sto let.
Základní myšlenkou návrhu bylo téma low-tech. Rozhodli jsme se vyhnout drahým a
komplikovaným řešením, naopak využít jednoduché principy fungování stavby včetně
její výroby a údržby.
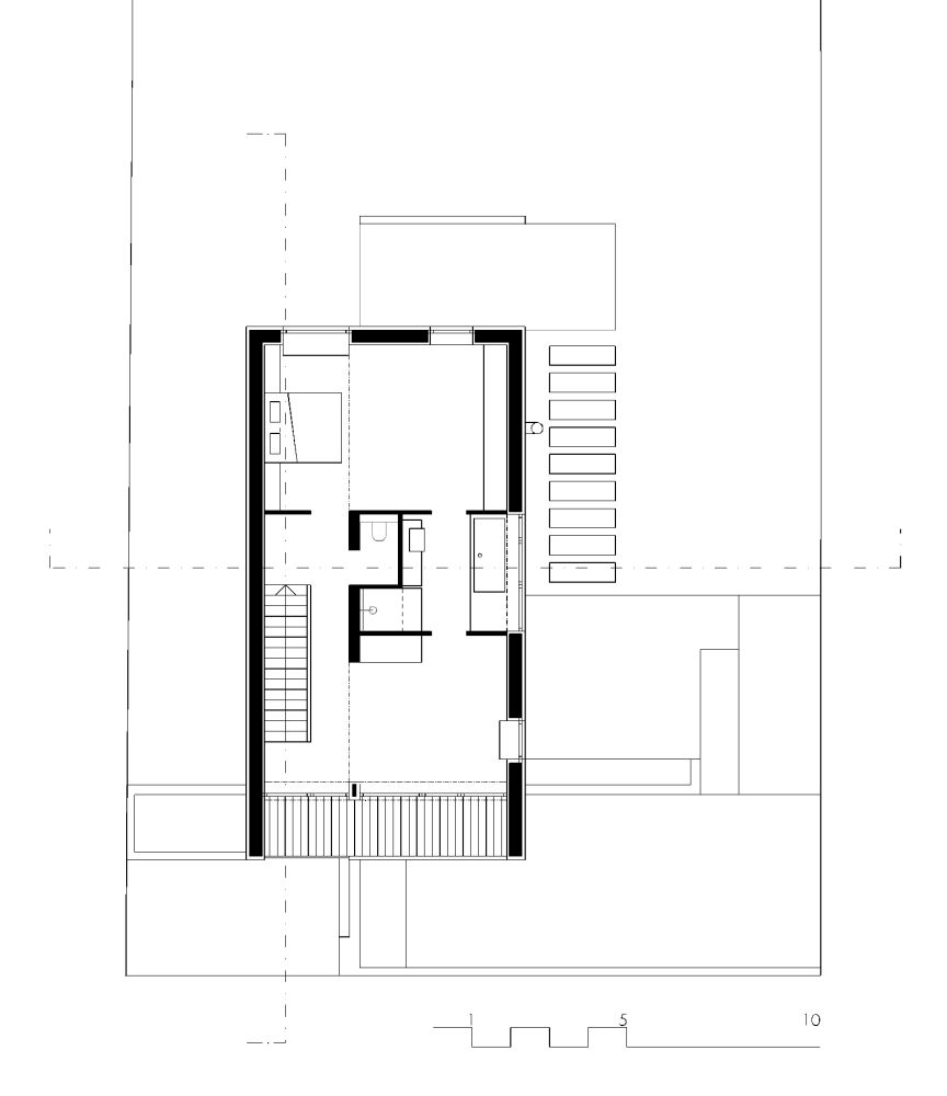
Koncept půdorysu je flexibilní, důraz jsme kladli na pohledové osy v interiérech
a výhledy ven.
Dřevostavba byla realizovaná tak, jako by přečnívala přes opěrnou
betonovou zeď, podobně jako skalní převis. Toto řešení odkazuje k majitelům
domu, kteří patří mezi elity lezecké scény v Rakousku.
Autorská správa
Foto: Bernhard Fiedler
Zdroj: admagazin.sk, Salón drevostavieb 2020




























Jako problém vidím hlavně "lavičky" v prostoru sdíleném s cyklisty. Neměly by mít třeba tyče s praporky, jako dětské nákupní…
Zdravím, děkuji za informaci o výstavbě v areálu i zmínku o vile, žel chybí aspoň informace, zda vila stojí a…
Článek působí docela věcně a snaží se jít víc po principu než jen po marketingu, což je za mě plus…
Chybí schody z levého břehu na most, takže s Chuchle přijedeme na Lihovar , musíme přejít Strakonickou a pak teprve…
Dobrý den,žádám o informace o novinkách. J.J.Kubát