Protáhlá parcela na rozhraní zahrádkářské kolonie a původní
zástavby rodinnými domy se svažuje k severozápadu a nabízí výhled na protější
zalesněný horizont a východní okraj města. Osazení domu využívá přirozený
průběh terénu a rozděluje jeho provoz do tří samostatných celků.
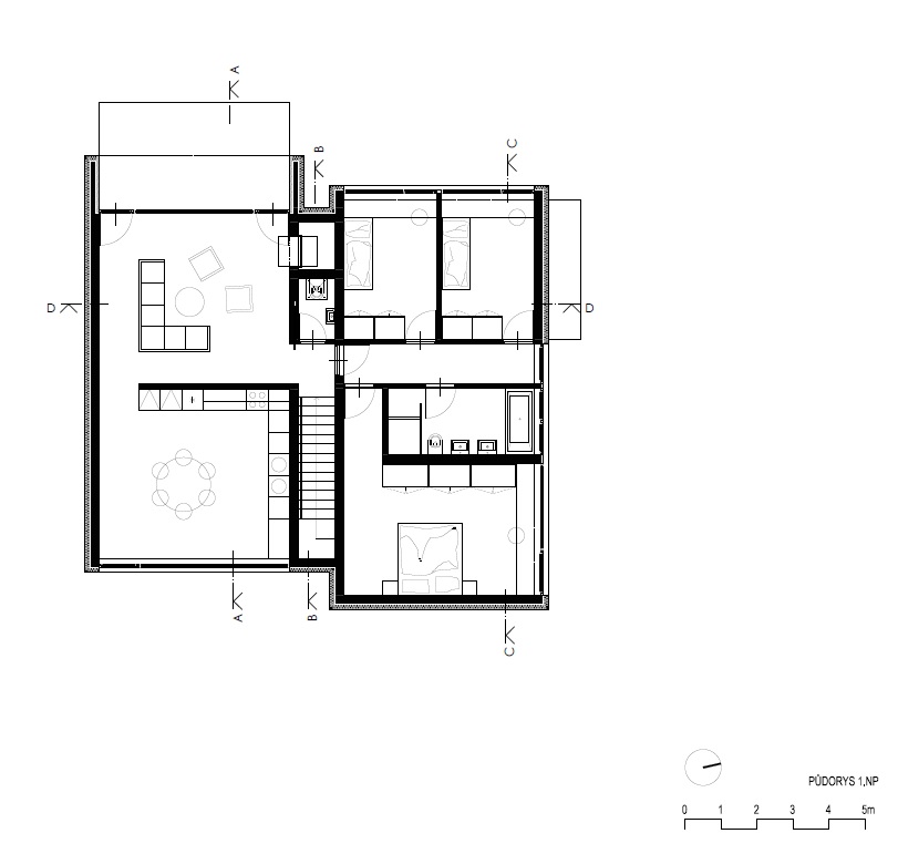
Vstupní část domu tvoří souvislá dlážděná plocha, na kterou
navazuje garáž se vstupní halou, odkud je přístupná pracovna v severozápadním
rohu objektu. Horní obytné podlaží je dostupné po schodišti zabírající úzký střední
trakt domu. Obývací pokoj bezprostředně navazuje na schodiště, otevřen je na
západ a nabízí panoramatický výhled a výstup na terasu směrem do zahrady. Podél
jižní stěny je kuchyň s jídelnou otevřená na východ. Dětské pokoje, koupelna a
ložnice rodičů jsou situovány v severním traktu, přístupné chodbou z obývacího
pokoje.
Autorská zpráva
Místo: Boněcko, Zlín
Generální projektant: chládek architekti
Autor: Pavel Chládek
Dodavatel: Sanace Zlín
Plocha pozemku: 798 m2
Zastavěná plocha: 149 m2
Užitná plocha: 167 m2
Obestavěný prostor: 710 m3
Projekt: 2009
Realizace: 2010–2011
Foto: Pagáč Photoproduction
Publikováno v časopise Stavba č. 2/2017, str. 26–27






















Architektura musí souviset s místem, nikoli místo s architekturou. Proto jakékoli stavby umožňující realizaci na různých místech nejsou ARCHITEKTUROU.
Z mého pohledu je fajn vidět, jak se i u tak „běžné“ věci, jako jsou překlady, řeší systémovost a přesnost!
Praktické řešení, hlavně z pohledu rychlosti výstavby a přesnosti👍 U těchto systémových prvků dává smysl, že zjednodušují realizaci a pomáhají…
Zajímavý posun ve stavebnictví, je vidět, že se dnes klade velký důraz hlavně na rychlost výstavby a přesnost provedení. Systémové…
Jako problém vidím hlavně "lavičky" v prostoru sdíleném s cyklisty. Neměly by mít třeba tyče s praporky, jako dětské nákupní…