Jednoduchý objem stavby vynáší dvoje čtyřnoží na ocelovém roštu do volného prostoru. Se svahem je rošt propojený v místě vstupu. Tyto tři pevné body udrží dřevostavbu o komfortní dispozici pro typickou rodinu. Na první pohled efektní řešení skrývá spoustu efektivních výhod. Dům se nachází v Jizerských horách, kde by sníh (zejména jeho tání) při zapuštění stavbydo svahu přinášel komplikace. Poměrně jednoduché zakládání a úspora hydroizolací ušetřily spoustu financí na zbytek stavby.
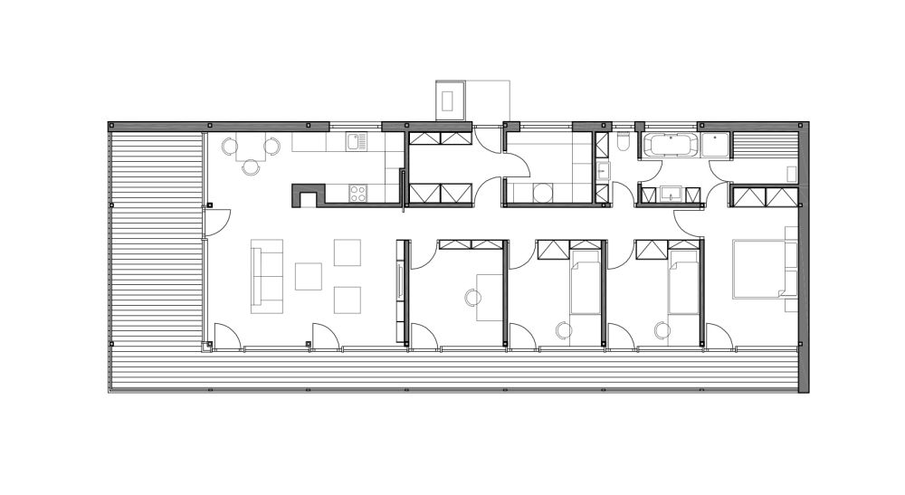
I přání jednopodlažního domu, kterého se klient při koupi pozemku vnitřně vzdal, bylo splněno. Na jedné úrovni je dispozice s obývacím pokojem, jídelnou a kuchyní, třemi ložnicemi, pracovnou, technickým zázemím, koupelnou se saunou a samostatným WC. To vše bezbariérově přístupné z cesty u domu.
Přetažení střechy chrání velké prosklené plochy v létě před přehřátím, a přitom v zimě pustí do domu spoustu slunce. Z každé ložnice je výstup na terasu s výhledem do zahrady, na město a úpatí hor. Koruny stromů a terasa dokonale nahradily přímý vstup na zahradu, která v našem případě připomíná černou sjezdovku. Chcete-li si však dům prohlédnout z těch nejatraktivnější pohledů, musíte tuto sjezdovku seběhnoutpo vlastních nohou nebo sjet na lyžích.
Autorská zpráva
Foto: FOTES
Místo: Jablonec nad Nisou – Mšeno
Architekt: Stempel & Tesar architekti – Ján Stempel, Jan Jakub Tesař / www.stempel-tesar.com
Dodavatel Stavební firma Hájek s.r.o.
Projekt a výstavba: 2011-2013
Pozemek: 818 m2
Zastavěná plocha: 178 m2
Užitná plocha: 113 m2 + 41 m2 terasa
Celkový objem: 735 m3
Foto: FOTES
Místo: Jablonec nad Nisou – Mšeno
Architekt: Stempel & Tesar architekti – Ján Stempel, Jan Jakub Tesař / www.stempel-tesar.com
Dodavatel Stavební firma Hájek s.r.o.
Projekt a výstavba: 2011-2013
Pozemek: 818 m2
Zastavěná plocha: 178 m2
Užitná plocha: 113 m2 + 41 m2 terasa
Celkový objem: 735 m3


























Zajímavé, že HELUZ pořád tlačí nejen produktové novinky, ale i sdílení zkušeností z praxe 👍 Právě tohle mi dává největší…
Akustika je často podceňovaný, ale zásadní aspekt kvality bydlení... Článek dobře ukazuje, že nejde jen o samotný materiál, ale hlavně…
Oceňuji hlavně důraz na kvalitu provedení, nestačí jen dobrý materiál, ale i správná realizace. V praxi právě detaily často rozhodují…
Skvělý článek o akustické kvalitě staveb, která je často opomíjená, ale velmi důležitá. Systémy Heluz nabízejí dobrá řešení pro zvukovou…
Zajímavé téma, díky za sdílení. Tyhle novinky z praxe mají vždycky největší přínos 👍