Svažitý terén předurčil tvar domu i dispoziční řešení
Na výsledný tvar domu měly zásadní vliv omezení daná místními podmínkami i požadavky klienta. Úkolem architektonického návrhu bylo vyřešit osazení domu na poměrně úzký pozemek, který se výrazně svažuje směrem k jihu. Přáním mladého páru rovněž bylo zachovat volnou západní část pozemku pro případnou dostavbu bazénu. Vznikl tak podlouhlý dům zasazený částečně do svahu, jehož základní kvádrovou hmotu doplňuje v příčném směru pouze výrazná terasa.
Základní hmota domu, navržená na půdorysu 6,2 x 22,2 m, má s ohledem na místní regulační plán sedlovou střechu a stojí na uliční čáře. Ze západní strany k ní přiléhá tubus schodiště, který ve své jižní části přechází do zastřešení terasy. Fasády sjednocuje bílá omítka, jejíž čisté nečleněné plochy prolamují pouze okna v jednoduché kompozici. Jediný barevný akcent tvoří šedé odstíny hliníkových okenních rámů, střešní krytiny a kovového zábradlí terasy.
Funkční interiér s dostatkem slunečního světla
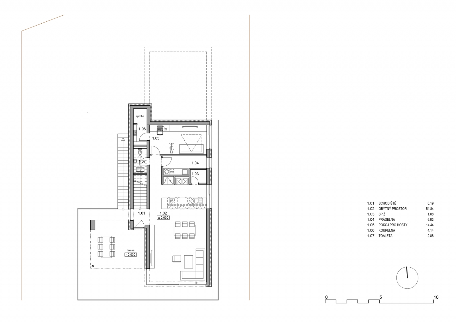
Do domu se vstupuje ze severu v nejvyšším bodě pozemku, kde se nachází i garáž s prostorem pro umístění sportovního vybavení a technická místnost. Na prostornou vstupní halu navazuje šatna. Do obytného prostoru o podlaží níže se sestupuje po přímém schodišti, které ve své dolní části nabízí průhled do zahrady.
Obývací pokoj, jídelnu a kuchyň navrhli architekti jako jeden společný obytný prostor, jednotlivé zóny jsou zde však jasně definovány. Na ostrovní kuchyňskou linku navazuje spíž. Další úložné prostory tvoří vysoké skříně a volně stojící americká lednice, obojí vestavěné do niky. Na kuchyň navazuje prádelna, v níž ústí praktický shoz na prádlo z horní koupelny. V tomto podlaží nalezneme rovněž pokoj pro hosty s koupelnou a samostatnou toaletou.
Hlavní obytný prostor se díky velkoplošnému zasklení s proskleným rohem opticky rozšiřuje o navazující terasu se zahradou. Vysoce tepelně izolovaný systém posuvných dveří se zdvihem Schüco ASS 70.HI přesvědčuje i excelentní zvukovou izolací a zajišťuje tichý a snadno ovladatelný přístup na terasu. Velké prosklené plochy s minimálním členěním poskytují obyvatelům domu relaxační výhledy do okolní krajiny a zajišťují dokonalé propojení interiéru s exteriérem.
Ložnicovou část domu umístěnou na úrovni vstupního podlaží tvoří ložnice rodičů, dětský pokoj, šatna a koupelna. Autoři při návrhu dispozice uvažovali i o možném budoucím rozdělení dětského pokoje na dva samostatné pokoje. Obytnou plochu tohoto podlaží doplňuje ještě terasa přístupná ze šatny a dětského pokoje. Současně tak tvoří zastřešení terasy osazené na terénu a navazující na obývací pokoj.
Vytápění domu zajišťuje plynový kondenzační kotel a termické panely. Optimální klima vnitřních prostor podporuje řízené větrání s rekuperací tepla.
Autoři návrhu: Ing. Arch. Martina Rosová, Ing. Arch. Michal Rosa, www.rosa-architekt.cz
Použité okenní a dveřní systémy:
Okenní systémy Schüco AWS 75.SI
Vysoce tepelně izolovaný systém posuvných dveří se zdvihem Schüco ASS 70.HI
Vstupní dveře Schüco ADS 75 HD.HI
Dodavatel okenních systémů: PFT spol. s r.o. Jičín, pobočka Vrchlabí
podle podkladů společnosti Schüco
podle podkladů společnosti Schüco
foto: Petr Košťál, www.petrkostal.cz































Kaskády Hranice jsou skvělým příkladem toho, že i bytová výstavba může mít kvalitní architekturu, promyšlený urbanismus a příjemný prostor pro…
Architektura musí souviset s místem, nikoli místo s architekturou. Proto jakékoli stavby umožňující realizaci na různých místech nejsou ARCHITEKTUROU.
Z mého pohledu je fajn vidět, jak se i u tak „běžné“ věci, jako jsou překlady, řeší systémovost a přesnost!
Praktické řešení, hlavně z pohledu rychlosti výstavby a přesnosti👍 U těchto systémových prvků dává smysl, že zjednodušují realizaci a pomáhají…
Zajímavý posun ve stavebnictví, je vidět, že se dnes klade velký důraz hlavně na rychlost výstavby a přesnost provedení. Systémové…