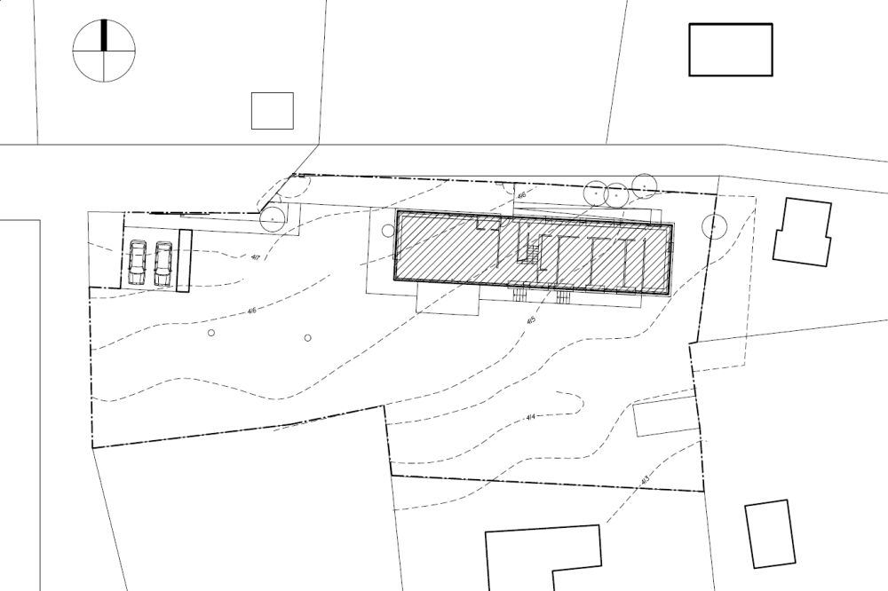
Výrazně podélný dům je osazen šikmo k vrstevnicím
jihovýchodního svahu. Dispozice je v místě schodiště rozdělena výškově o půl
patra na jednopodlažní a dvoupodlažní část, hřeben sedlové střechy je pro obě
části společný. Hlavní obytný prostor tím získal velkorysou dimenzi, obě
výškové úrovně přízemí navazují na jižní straně na přilehlý terén.
Obvodové stěny jsou ze škvárobetonových tvárnic suchého
zdění bez vnitřních omítek. Nad sníženou částí přízemí je železobetonová
stropní deska, krov společný pro obě části je ze sbíjených vazníků se šikmým
spodním lícem. Opláštění větrané fasády je ze svislých modřínových prken bez
povrchové úpravy, sokl (na výšku snížené části přízemí) je z lomového kamene v
gabionech. Střešní krytina je betonová, okna dřevěná.
Autorská zpráva
Foto: Ondřej Polák
Autor: Radovan Schaufler, Jakub Roskovec / www.schaufler-roskovec.cz
Spolupráce: Jan Ratiborský
Interiér: Sodomková Sodomka Architekti
Zastavěná plocha: 177 m2
Užitná plocha: 216 m2























Architektura musí souviset s místem, nikoli místo s architekturou. Proto jakékoli stavby umožňující realizaci na různých místech nejsou ARCHITEKTUROU.
Z mého pohledu je fajn vidět, jak se i u tak „běžné“ věci, jako jsou překlady, řeší systémovost a přesnost!
Praktické řešení, hlavně z pohledu rychlosti výstavby a přesnosti👍 U těchto systémových prvků dává smysl, že zjednodušují realizaci a pomáhají…
Zajímavý posun ve stavebnictví, je vidět, že se dnes klade velký důraz hlavně na rychlost výstavby a přesnost provedení. Systémové…
Jako problém vidím hlavně "lavičky" v prostoru sdíleném s cyklisty. Neměly by mít třeba tyče s praporky, jako dětské nákupní…