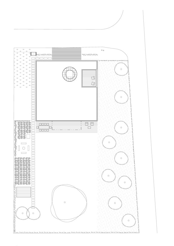
Po stranách jsou dva cihelné bloky, jeden s ložnicí otevřenou do atria se saunou, druhý s dětskými pokoji a kůlnou. Mezi nimi proplouvá denní život. Od ulice vstupním nádvořím se stromkem a krytým stáním, kolem kuchyně a koupelen do obýváku s jídelnou až na terasu do zahrady. Betonový strop vybíhá ven nad jižní prosklenou stěnou, kterou chrání proti přehřívání. Podlaha je z hlazeného betonu. Plné cihly jsou v interiéru doplněny nábytkem a obklady z překližky.
Někdo se diví, že nám je vidět až do talíře. Nám to ale nevadí. Užíváme si výhledu do krajiny, psa povalujícího se na terase, květinové louky, ovocných stromů v sadu, vůně bylinek a šumění rákosí.
Autorská zpráva
Autoři: Pavla Vymetálková, Martin Vymetálek
Zastavěná plocha: 218 m2
Obestavěný prostor: 815 m3
Plocha bytu: 95 m2
Plocha pozemku: 1125 m2
Náklady: 3 mil. Kč při stavbě svépomocí
































Tahle ulice je každý pes jiná ves, takže vůbec nevadí, že v ní přistálo něco, co vypadá, jako by se narodilo někde v zemích okolo Středozemního moře. Tím nechci říct, že to vypadá špatně. Dovedu si představit, jak se v tom žije. Moc se mi líbí okno nad kuchyňskou pracovní plochou, ale asi by mi vadilo, že se jídlo musí nosit z kuchyně ke stolu chodbou a navíc kolem dveří na záchod.
Mimochodem, nikde není vidět, jakou má dům střechu. Sem by se určitě hodila vegetační.