Pozemek pro stavbu se nachází při západní hranici areálu školy, daný prostor určil její tvar jako výrazně podélnou hmotu, okolní stavby určovaly její výšku. Natočení pavilonu rovnoběžně s historickou budovou školy a kolmo ke třem dostavbám přirozeně zapadá do kompozice areálu a ze západní strany vytváří logický ukončující prvek.
Materiálové řešení částečně reflektuje stávající objekty (dřevěný obklad nové tělocvičny). Pro zmírnění dojmu z nové hmoty jsme použili výrazných přesahů horního patra oproti přízemí tak, aby pavilon působil subtilnějším dojmem. Jeho propojení se stávající přístavbou zajišťuje prosklený krček bez podpor působící vzdušným dojmem.
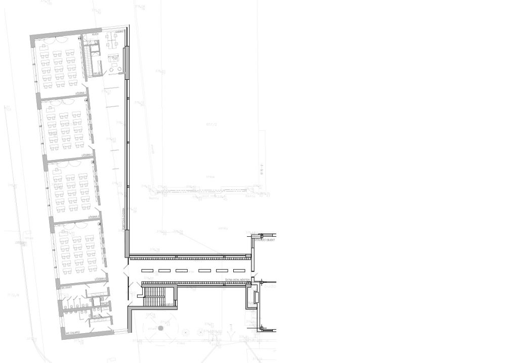
Základní myšlenkou návrhu byla snaha vytvořit pro děti i další uživatele budovy a dvora prostor pro život. Všechny pobytové prostory jsme uzpůsobili pro multifunkční využití, prostor jídelny je bezprostředně propojen s exteriérem krytou terasou. Počítalo se s tím, že jídelna nemusí být odpoledne uzavřena, naopak by měla sloužit dětem v jejich volném čase. V prvním patře je pak v souvislosti s touto koncepcí centrální pobytová hala, která slouží i pro relaxaci během přestávek nebo jako prostor pro samostatnou práci v průběhu vyučování pro žáky s poruchou soustředění. Lichoběžníkový tvar haly mění perspektivu prostoru. To při příchodu zkracuje prostor, při pohledu ke vstupu místnost naopak prodlužuje a akcentuje velké čtvercové okno do ulice jako jakýsi kaleidoskop či dalekohled s výhledem. Kromě toho je v hale také velké pásové okno do dvora navozující dojem otevřeného prostoru. Skleněné zástěny naopak zajišťují částečné soukromí v případě potřeby práce s jednotlivci. Propojovací krček má také dvojí funkci: slouží pro šatny dětí prvního stupně a zároveň jako komunikace.
Objekt je navržen jako kompozice dvou horizontálních hmot položených na sobě s dominantou hlavního schodiště na jižní straně. Přízemí v tmavé barvě má potlačit dojem z hmoty objektu, horní patro je obloženo dřevem a tvoří dominantní prvek. Horizontální dojem podporují výrazná pásová prosklení v patře. Naopak celistvé prosklené plochy jídelny v přízemí na celou výšku podlaží ještě více odlehčují hmotu objektu.
Hlavními materiálovými znaky nového pavilonu je černá barva obkladů přízemí, dřevěný obklad patra, beton na stropech v exteriéru a interiéru, bílá barva stěn interiéru a výrazné barvy podlah místností. Venkovní zpevněné plochy kolem domu jsou z litého betonu s výraznými dilatačními spárami tvořícími grafiku plochy. Prostor dvora doplňují dřevěné lavice.
Pavilon obsahuje čtyři třídy pro první stupeň, kabinet a příslušné sociální zázemí. Tento blok je umístěn v prvním patře s možnou návazností propojovacím krčkem s prvním patrem sousední budovy školy, zadním schodištěm a dalším schodištěm na školní zahradu. Jídelna a kuchyň byly umístěny do přízemí. Kuchyň slouží pro potřeby celé školy, dále také pro mateřskou školu, případně i další strávníky.
Do koncepce multifunkčnosti objektu zapadá i jeho technické vybavení. Systémy neslouží pouze jednomu účelu, ale zastávají většinou více funkcí či slouží pro více prostor. Tak je to například s podlahovým vytápěním, které v teplých měsících ochlazuje konstrukce pro dosažení optimální teploty uvnitř budovy. Obdobným způsobem je využito i centrální větrání, které střídá obsluhu jednotlivých prostor dle jejich aktuálního využití. V provozu to znamená, že během výuky se větrání přepíná na chodby a ostatní prostory a připravuje vzduch na přestávky, mezi vyučovacími hodinami pak provětrává učebny. Samozřejmostí je rekuperace vzduchu a jeho možná úprava v případě potřeby.
Autorská zpráva
Investor: Město Smečno
Autor: Lukáš Čihák, Lukáš Gelnar, Daniel Dvořák
Statika: Ing. M. Škoda
Vytápění, větrání, chlazení: P. Srbljanovič

































Takže ploty z tújí vyšly z módy a místo nich přichází bambus?
Povedený projekt 👍 Takových realizací by mohlo vznikat víc.
Kaskády Hranice jsou skvělým příkladem toho, že i bytová výstavba může mít kvalitní architekturu, promyšlený urbanismus a příjemný prostor pro…
Architektura musí souviset s místem, nikoli místo s architekturou. Proto jakékoli stavby umožňující realizaci na různých místech nejsou ARCHITEKTUROU.
Z mého pohledu je fajn vidět, jak se i u tak „běžné“ věci, jako jsou překlady, řeší systémovost a přesnost!