Kancelář firmy BK sídlí v nejvyšším patře budovy Silocentrála z roku 1902. Do projektu jsme vstoupili v jeho počáteční fázi, kdy interiér reprezentovaly původní historické prvky, jako jsou půlkruhová okna a subtilní kabelové sloupy nesoucí obloukovou střechu. Některé prvky jako zdvojené podlahy, bílé omítky, toalety a snížený sádrokarton byly developerem upraveny.
Během procesu jsme mysleli na design kanceláří a jejich dočasnost. Rozhodli jsme se upgradovat již existující funkce a přidat komponenty, které lze použít v každodenním životě. Zbytečné dekorace jsme vynechali, chtěli jsme minimalizovat materiální, lidské a energetické zdroje. Zaměřili jsme se na každý detail, který bylo třeba doplnit. Jako hlavní body interiéru jsme zvolili okna a kabelové sloupy. Prostor je možno využít multifunkčně: jako byt, galerii či kancelář.
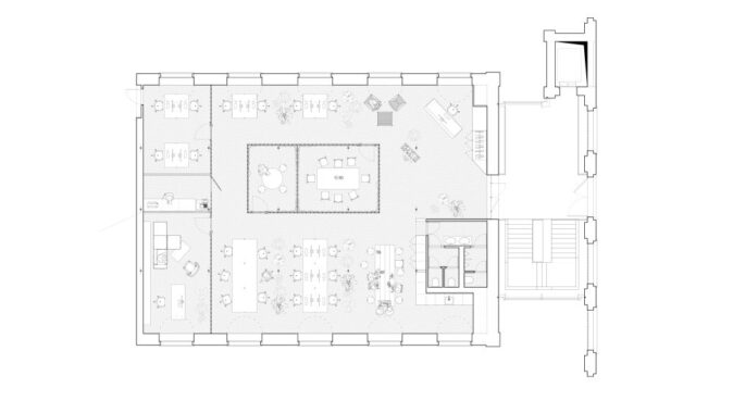
Dispozice je definována centrálním proskleným boxem a prosklenou stěnou. Box sestávající ze zasedacích místností vytváří intimnější pracovní a společenskou část. Samotný prostor je díky své průhlednosti nečleněný. Kolem skleněné krabice pulzuje každodenní život v kanceláři. Pracovní stoly, malý salonek u recepce a kuchyně s piknikovým stolem a vinotékou slouží zaměstnancům k jejich volnočasovým aktivitám.
Každý z materiálů byl vybrán podle jeho funkčnosti – sklo vytváří akustickou bariéru a propouští světlo, kaučuková podlaha odlehčuje prostor a je nenáročná na údržbu, nerez a zinkový kov vyhovuje technickému zaměření firmy. Plexisklo vytváří hloubku prostoru, dřevěné stoly předvádějí jedinečné řemeslné zpracování. Interiér je zdánlivě jednoduchý, ale nabízí mnoho interpretací.
Autorská zpráva
Foto: Matej Hakár
Klient: BK, a.s.
Autoři: Peter Kuklica, Martin Smerek, Juraj Hubinský; spolupráce Katarína Siváková
Podlahová plocha: 265 m2


































Architektura musí souviset s místem, nikoli místo s architekturou. Proto jakékoli stavby umožňující realizaci na různých místech nejsou ARCHITEKTUROU.
Z mého pohledu je fajn vidět, jak se i u tak „běžné“ věci, jako jsou překlady, řeší systémovost a přesnost!
Praktické řešení, hlavně z pohledu rychlosti výstavby a přesnosti👍 U těchto systémových prvků dává smysl, že zjednodušují realizaci a pomáhají…
Zajímavý posun ve stavebnictví, je vidět, že se dnes klade velký důraz hlavně na rychlost výstavby a přesnost provedení. Systémové…
Jako problém vidím hlavně "lavičky" v prostoru sdíleném s cyklisty. Neměly by mít třeba tyče s praporky, jako dětské nákupní…