Koncepce přestavby zachovala půdorysné členění a kompozici hmot, hmota do náměstí byla zvýšena o jedno podlaží. Střecha se tak srovnala do jedné výškové úrovně, vystupuje z ní jen původní hmota provaziště. Vyšší přední část budovy vymezuje prostor náměstí, budova se vyrovnává s výškovou hladinou okolních domů.
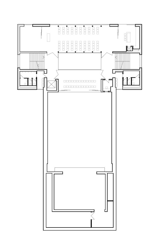
Provozní a dispoziční řešení vycházelo z původního řešení s přehlednou orientací v budově. Hlavním vstupem z náměstí se vchází do třípodlažního foyer, z něj do kavárny, klubu, malého sálu, restaurace, velkého sálu s galerií a obřadní síně. V zadní části domu je umístěno mateřské centrum a zázemí pro účinkující. Suterén se využívá pro zázemí kulturního centra a technické místnosti.
Nosný systém budovy zůstal zachován. Nástavba přední hmoty je zděná se stropy z ocelových I nosníků a trapézových plechů, zastřešení velkého sálu z předpjatých železobetonových panelů. Ve foyer jsou nová železobetonová schodiště, nad přízemím foyer žebrový strop jako kopie původního.
Fasádu přední části objektu tvoří skleněný plášť, ostatní fasády jsou obloženy tepelně izolačními deskami. Nová jsou okna a dveře, podlahy, akustické obklady a interiérové vybavení.
Modernizované jsou technické vybavení a instalace, scénické osvětlení, audio-video technika, vzduchotechnické rozvody a vytápění. Jako zdroj tepla slouží kaskáda tepelných čerpadel.
Autorská zpráva
Foto: Filip Šlapal
Autoři: Milan Rak, Alena Režná
Stavebník: Město Kuřim


































Kaskády Hranice jsou skvělým příkladem toho, že i bytová výstavba může mít kvalitní architekturu, promyšlený urbanismus a příjemný prostor pro…
Architektura musí souviset s místem, nikoli místo s architekturou. Proto jakékoli stavby umožňující realizaci na různých místech nejsou ARCHITEKTUROU.
Z mého pohledu je fajn vidět, jak se i u tak „běžné“ věci, jako jsou překlady, řeší systémovost a přesnost!
Praktické řešení, hlavně z pohledu rychlosti výstavby a přesnosti👍 U těchto systémových prvků dává smysl, že zjednodušují realizaci a pomáhají…
Zajímavý posun ve stavebnictví, je vidět, že se dnes klade velký důraz hlavně na rychlost výstavby a přesnost provedení. Systémové…