Rodinný dům navržený Pavlem Podlipným ze studia 2xpa architektonický ateliér reaguje na klidnou polohu v centru obce a výrazný krajinný kontext Tiských stěn. Stavba pracuje s orientací na jih do zahrady a na sever k pískovcovým skalám.

Pozemek v jádru obce Tisá má nepravidelný tvar a mírný sklon od severu k jihu. Návrh počítá se dvěma objekty – rodinným domem a budoucí garáží. Obě hmoty mají shodné půdorysné rozměry a jsou vůči sobě pootočeny, přičemž garáž je orientována rovnoběžně s přilehlou komunikací.

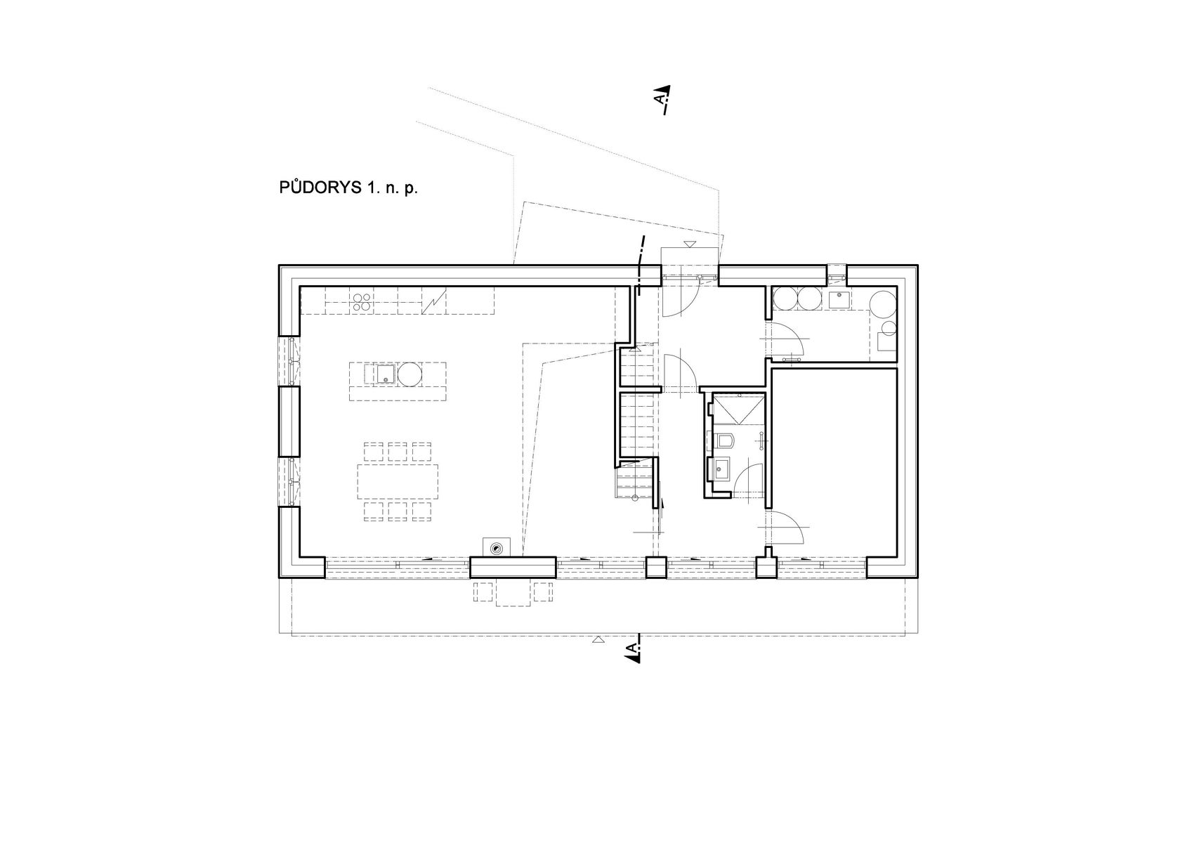
Dvoupodlažní dům je usazen v návaznosti na terén a otevírá se do zahrady. Přízemí tvoří hlavní obytný prostor, částečně převýšený a propojený s patrem, doplněný o pokoj a vstupní zázemí. V horním podlaží se nachází ložnice, dětské pokoje a čítárna orientovaná ke skalám.

Hlavní obytný prostor je výrazně prosklený směrem do zahrady a navazuje na zastřešené zápraží. Z kompaktní hmoty vystupuje arkýř s čítárnou, pootočený k severnímu výhledu. Zároveň formuje krytý vstup do domu.

Konstrukčně je dům řešen z vápenopískových cihel se železobetonovým stropem nad přízemím. Fasáda je omítaná, střecha plechová. Objekt využívá tepelné čerpadlo vzduch–voda a systém rekuperace.
Podle autorské zprávy
Lokalita: Tisá
Autoři: 2xpa architektonický ateliér / Pavel Podlipný
Návrh a projekt: 2022
Realizace: 2023–2024
Zastavěná plocha: 130 m²
Foto: Radek Úlehla


























Akustika je často podceňovaný, ale zásadní aspekt kvality bydlení... Článek dobře ukazuje, že nejde jen o samotný materiál, ale hlavně…
Oceňuji hlavně důraz na kvalitu provedení, nestačí jen dobrý materiál, ale i správná realizace. V praxi právě detaily často rozhodují…
Skvělý článek o akustické kvalitě staveb, která je často opomíjená, ale velmi důležitá. Systémy Heluz nabízejí dobrá řešení pro zvukovou…
Zajímavé téma, díky za sdílení. Tyhle novinky z praxe mají vždycky největší přínos 👍
Zajímavý webinář zaměřený na novinky od společnosti Heluz. Oceňuji hlavně představení cihel Heluz AKU a jejich výsledků v oblasti zvukové…