Areál hasičské stanice v Holešovicích leží na křižovatce Argentinské a Plynární ulice. Nová administrativní budova podle návrhu studia Architektura doplňuje původní provozní objekt a je součástí širšího záměru vytvořit na pozemku centrum Hasičského záchranného sboru. V rámci areálu zůstává prostorová rezerva pro další výstavbu. Odděleně zde funguje i výjezdní stanice Zdravotnické záchranné služby.

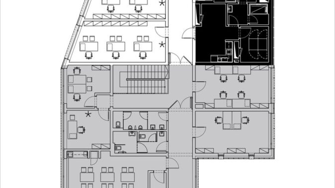
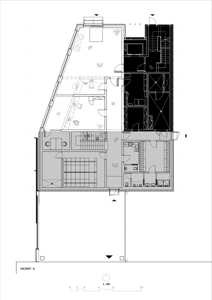
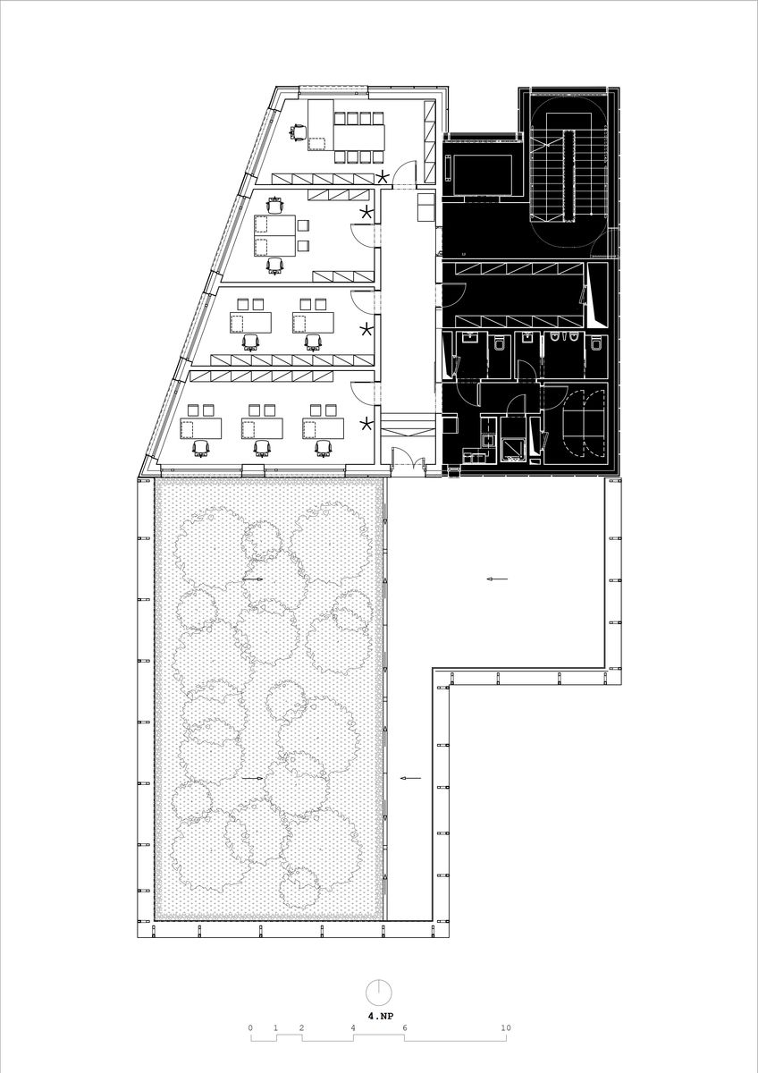
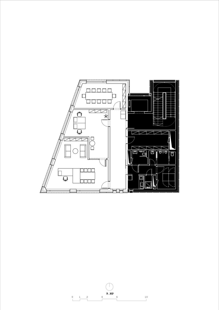
Objekt B jsme umístili přímo na nároží a respektovali uliční čáru. Navrhli jsme vyšší, štíhlý objekt věžové formy, kterým jsme akcentovali nároží a reagovali na měřítko okolní zástavby tvořené převážně bytovými domy a administrativními budovami. Devítipodlažní administrativní věž doplňuje technicko-provozní blok a třípodlažní průjezdnou část. Průjezd vytváří vstup do areálu a propojuje objekt B s budovou stanice. Ve třetím nadzemním podlaží oba objekty spojuje uzavřený železobetonový můstek.

„Věž je zlatým hřebem ve výstavbě hasičského areálu a je v ní soustředěna především administrativa. Ráz budovy je velmi technický, až konstruktivistický, detaily jako poměrně tenké rámy velkoplošného prosklení a oken, kovové zábradlí, členění výtahové šachty pak oproti hmotě budovy působí velmi jemně. Kovová fiála nad výtahovou šachtou a převýšené betonové rámce lemující střechu propůjčují budově velmi jasnou a čistou siluetu.“ Hra s otvory, Eliška Podholová Varyšová, více v časopise STAVBA 1/2026

Stavební program kombinuje administrativní provoz s operačními a technologickými funkcemi. V návrhu jsme kladli důraz na provozní logiku a úspornou logistiku v rámci areálu, včetně obslužnosti zásahovými vozy a dopravního řešení dvora. Součástí zadání byl i požadavek na odpovídající kapacitu parkovacích míst.

Dispoziční princip odděluje kancelářské plochy od zázemí s odlišnými provozními, světelnými a akustickými nároky. Vertikální komunikace jsou soustředěny do samostatných jader a jejich výraz je tematizován s ohledem na kompozici objektu. Administrativní část tvoří kanceláře a zasedací místnosti, doplněné technickým zázemím, archivy a hygienickými prostory.

„David Kraus budovu pojal tak, že nepodléhá módním trendům ani expresivním gestům. Je disciplinovaná, věcná a pevná. Prostě barák, který člověka narovná, jak to učila a soustavně i předváděla Alena Šrámková. V Holešovicích, jež v jednadvacátém století procházejí radikální proměnu k lepšímu, tak nepřináší jen zázemí nepostradatelné bezpečnostní složky, ale stává se městskou dominantou, která vyjadřuje hodnoty jako služba, řád a odpovědnost.“ Barák, který člověka narovná, Petr Volf, více v časopise STAVBA 1/2026

Fasádu věžového objektu tvoří rastr z prefabrikovaných betonových obkladových desek se skelnou výztuží v základním formátu 900 × 3600 mm. Třípodlažní průjezdná část má hliníkový obklad v rastru 450 × 450 mm. Střecha průjezdu tvoří terasu ze dvou částí – zelené střechy a pochozí části s betonovou dlažbou na terčích. Střecha nad 9. NP slouží pro technologie vzduchotechniky a chlazení. Technologie na střeše kryje pokračující fasádní rastr s výplní z tahokovu, čímž se objem vizuálně sjednotil. Na střeše výtahové šachty je ocelový příhradový anténní stožár výšky 18,2 m.

„Elegantní a vysoká stavba v barvě tak typické pro hasiče i požáry obsadila nároží a doslova křičí ‚pozor, hoří!‘. Dům působí jako zhmotněné sebevědomí – autora, ale i toho, kdo v ní sídlí. Zároveň svým pevným architektonickým výrazem přináší útěchu: ‚jsme velcí a silní, ochráníme vás‘. V sousedství dopravní infrastruktury a kancelářských bloků působí stavba jako stabilní vertikální orientační bod i ujištění: zde je solidní veřejná instituce.“ Sebevědomá věž, Mariana Pančíková, více v časopise STAVBA 1/2026

Interiér jsme navrhli s využitím pohledového betonu, neomítnutých betonových tvárnic a přiznaných technických rozvodů. Materiály jsme ponechali v jejich přirozené podobě. Požadovaný standard pohledového betonu odpovídá kategorii PB3. Nosnou konstrukci tvoří monolitický železobetonový stěnový systém s komunikačními jádry; stropní konstrukce jsou hladké železobetonové desky, u větších rozpětí doplněné průvlaky. Objekt je založen na vrtaných velkoprůměrových pilotách.
Podle autorské zprávy
Místo stavby: Argentinská 1630/34a, Praha 7
Autoři: Architektura / David Kraus, Miroslav Styk
Spolupráce: PROJECTICON / Pavel Ježek, Lukáš Kosinka (stavebnětechnické řešení)
Investoři: Generální ředitelství HZS ČR, Hlavní město Praha
Zastavěná plocha: 517 m²
Užitná plocha: 2257 m²
Plocha pozemku: 6504 m²
Obestavěný prostor celkem: 10 837 m3
Kapacita: 36 kanceláří, 78 parkovacích míst
Projekt: 2018–2023
Realizace: 2024–2025
Foto: Filip Šlapal




















































Jako problém vidím hlavně "lavičky" v prostoru sdíleném s cyklisty. Neměly by mít třeba tyče s praporky, jako dětské nákupní…
Zdravím, děkuji za informaci o výstavbě v areálu i zmínku o vile, žel chybí aspoň informace, zda vila stojí a…
Článek působí docela věcně a snaží se jít víc po principu než jen po marketingu, což je za mě plus…
Chybí schody z levého břehu na most, takže s Chuchle přijedeme na Lihovar , musíme přejít Strakonickou a pak teprve…
Dobrý den,žádám o informace o novinkách. J.J.Kubát