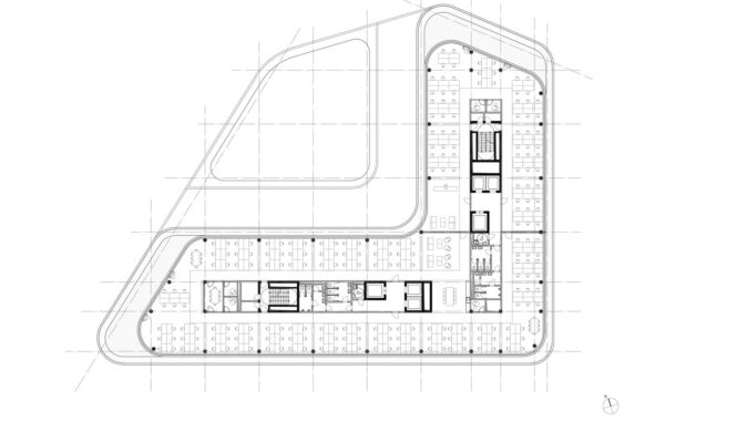
Lokalita Hagibor se nachází na území městské části Praha 10, v části na hranici Žižkova a Strašnic. Na území o tvaru nepravidelného trojúhelníka postupně roste administrativní komplex Hagibor Office Europe Centre od studia Bogle Architects.

Z dopravního hlediska se řešené území nachází v přímé návaznosti na Vinohradskou ulici, která je jednou z hlavních dopravních tepen Prahy. Tato živá městská třída tvoří přirozenou páteř území, která prochází napříč celými Vinohrady a spojuje centrum města a městskou část Strašnice. Urbanistický návrh se zabývá řešením širších souvislostí místa z pohledu důležitých urbanistických vazeb, prostorové kompozice a vzájemných vztahů jednotlivých objektů. V rámci řešení byla navrženy hmoty nové zástavby a základní rysy nových veřejných prostor. Celkově bude masterplan Hagibor realizován v 5 (popř. 6) fázích, tato prezentace navazuje na již odsouhlasené fáze 1, 2 (rezidenční) a 3 (administrativní).

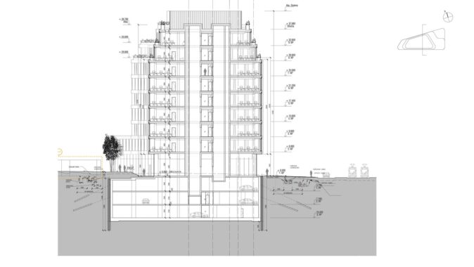
Hlavní centrální část lokality je tvořena souborem 6 administrativních budov, jejichž kompozice se spirálovitě odvíjí kolem centrálního náměstí, které je umístěno v samém srdci řešené lokality. Jedná se o samostatné výškové budovy přibližně trojúhelníkovitého půdorysu s proměnlivou výškou, která postupně od severu graduje směrem ke křížení ulic Vinohradská a Počernická. V této části dosahuje navrhovaná zástavba výšky 11 nadzemních podlaží (objekt 03) a vytváří tak dominantu, která stavebně vyvažuje rušné křížení ulic a prostorově navazuje na stávající výškové dominanty v širším kontextu území.

Na objekt 03 prostorově navážou další, již nižší administrativní budovy, které budou po obvodu sevřeny navrženou páteřní komunikací. Administrativní budovy jsou svými hlavními vstupy orientovány do velkorysého prostoru náměstí (plazza), které tvoří ústřední koncepční prvek návrhu. Toto centrální náměstí je doplněno o moderní vodní prvky a zároveň nabízí atraktivní rozšíření prostoru veřejné kavárny směrem do exteriéru během letních dnů.

Prostor náměstí je zároveň přirozeným vyústěním významné pohledové osy, která začíná v západní části lokality v hlavním nástupním bodě před budovou Rádia Svobodná Evropa (RFE). Tato významná pohledová osa je zároveň významnou pěší osou, která vede návštěvníky od vestibulu metra Želivského směrem do centra lokality. Tato hlavní trasa je navržena jako velkorysá pěší třída lemovaná obchodním parterem a vizuálně zakončená prostorným centrálním náměstím. Ulice zde tvoří základní prvek osnovy veřejných prostranství a významně se podílí na celkovém obrazu místa. Sdílený prostor je určen primárně pro pěší pohyb a pobyt v něm. Automobilová doprava je potlačena a tvoří doprovodný provoz, který neruší pěší pohyb v území.
Autorská zpráva, kráceno
Místo stavby: Vinohradská a Počernická ul., Praha 10 – Strašnice
Autoři: Bogle Architects
Hrubá podlažní plocha: Hagibor 01 16 300 m2, Hagibor 02 20 900 m2
Realizace: 2025
Foto: Bogle Architects






























Výtvarně malebné, ale jak se bude odstraňovat sníh z těch zapuštěných teras?
Zajímavý vhled do problematiky náhrady PSu. Je pravda, že i když je pěnobeton technologicky náročnější na přesné dodržení postupů, jeho…
Úžasný projekt! 🌿🏡 Perfektní propojení moderní architektury, přírodních materiálů a praktického řešení, dům i zahrada působí opravdu harmonicky a inspirativně
Hm, v takovém domě bych si dokázal představit bydlet😎
inspirativní článek, který ukazuje, jak může promyšlená architektura citlivě zapadnout do krajiny a zároveň splnit nároky moderního bydlení i podnikání...spojení…