Soubor budov Domeq II a III od Studia acht představuje efektivní formu bydlení zejména pro mladé lidi v rozvíjejícím se areálu Business parku Ponávka s neopakovatelnými panoramatickými výhledy na centrum Brna.

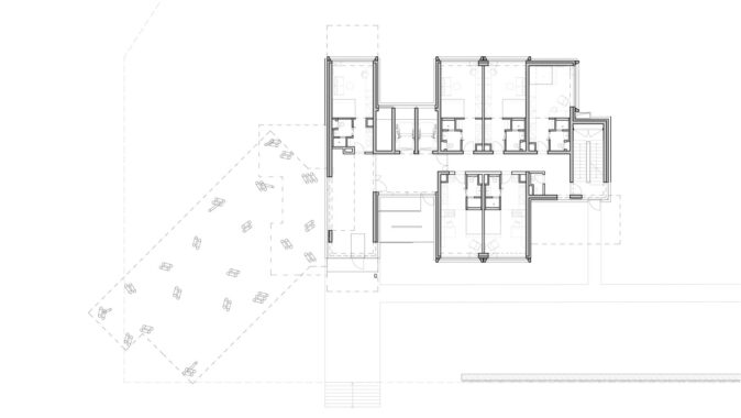
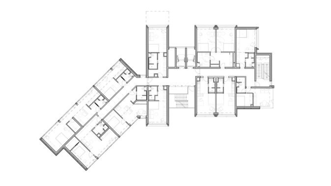
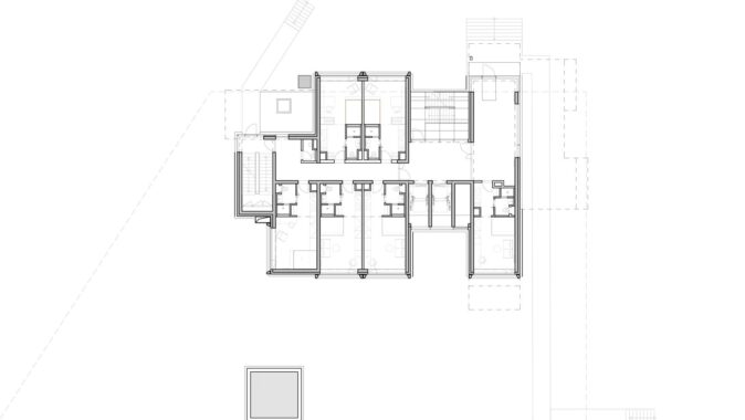
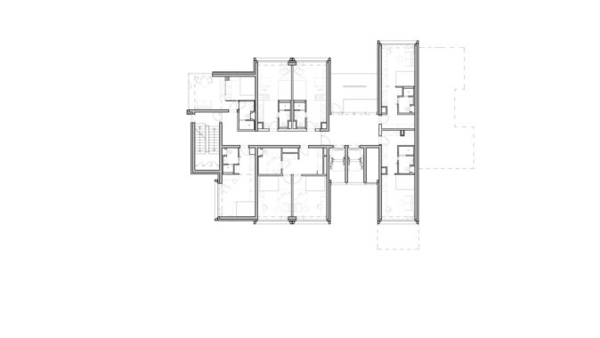
Kapacita obytného areálu je navržena tak, aby stačila pro ubytování až 328 osob, a nabízí rozmanité dispozice od 1 + kk až po 3 + kk rodinných penthousů. Efektivity je dosaženo formou obytné věže, která zároveň vyzdvihuje individuálnost každé obytné buňky. Vertikální kompozice vznikla vlivem nejrůznějších faktorů, a to díky konkrétnímu místu, podmínkám a návaznosti na okolí v rámci lokálního urbanismu. Střídmá architektura se projevuje tím, že se na stejném místě opakuje stejný koncept, který je ale pootočený. Charakteristickým prvkem jsou křídla s keramickým obkladem, která se opticky vznášejí podél řeky Ponávky.

Materiálová kombinace sklo–beton–plech demonstruje jednoduchost a přímočarost konceptu individuálního dočasného bydlení. Celá struktura je hravě doplněna výrazně červenými okenními rámy. Cílem je oživit areál bývalých škrobáren v multifunkční komplex s unikátním geniem loci, znovuobjeveným až v posledních 15 letech.
„Z dálky soubor působí jako šedá metabolistická struktura poskládaná z betonových prefabrikátů, ale při bližším pohledu odhalí řadu hravých prvků, jako vybíhající apendix na štíhlých roztancovaných sloupech. Fasády oživují červené okenní rámy a na několika místech zlato-žlutá keramická mozaika.“ Petr Šmídek, více v časopise STAVBA 3/2025

Domeq II a III jsou o krok napřed v udržitelnosti, co se týče ekologických řešení a důrazu na zdravé a pohodové bydlení. Ke konverzi brownfieldu patří i revitalizace krajiny a cílem bylo rozvinout vztah k území. Na zapuštěné garáže jsme neaplikovali pouze zelenou střechu, ale skutečnou pobytovou zónu, která navazuje na nábřeží revitalizované Ponávky. Vzniká zde větší spojení s okolím a napojení na cyklotrasy, které vedou do centra města.
Autorská zpráva, kráceno
Místo stavby: Dornych 519/47e, Brno
Autoři: Václav Hlaváček, Ivana Valeková / Studio acht
Zastavěná plocha: 3432 m2
Užitná plocha: 7238 m2
Plocha pozemku: 6988 m2
Obestavěný prostor celkem: 40 811 m3
Projekt: 2018–2021
Realizace: 2020–2022
Foto: Tomáš Slavík, Natálie Hájková
































Kaskády Hranice jsou skvělým příkladem toho, že i bytová výstavba může mít kvalitní architekturu, promyšlený urbanismus a příjemný prostor pro…
Architektura musí souviset s místem, nikoli místo s architekturou. Proto jakékoli stavby umožňující realizaci na různých místech nejsou ARCHITEKTUROU.
Z mého pohledu je fajn vidět, jak se i u tak „běžné“ věci, jako jsou překlady, řeší systémovost a přesnost!
Praktické řešení, hlavně z pohledu rychlosti výstavby a přesnosti👍 U těchto systémových prvků dává smysl, že zjednodušují realizaci a pomáhají…
Zajímavý posun ve stavebnictví, je vidět, že se dnes klade velký důraz hlavně na rychlost výstavby a přesnost provedení. Systémové…