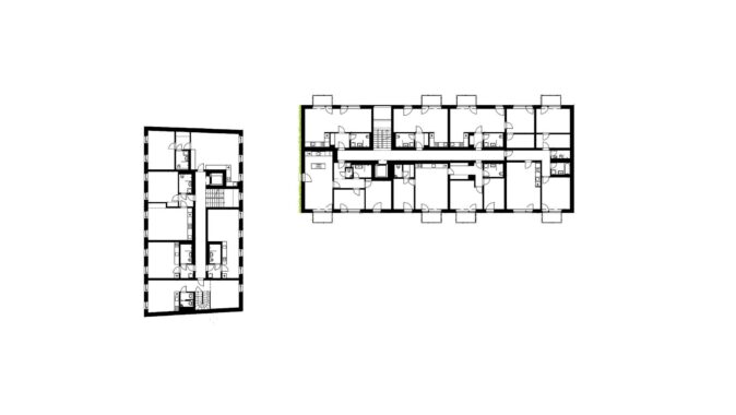
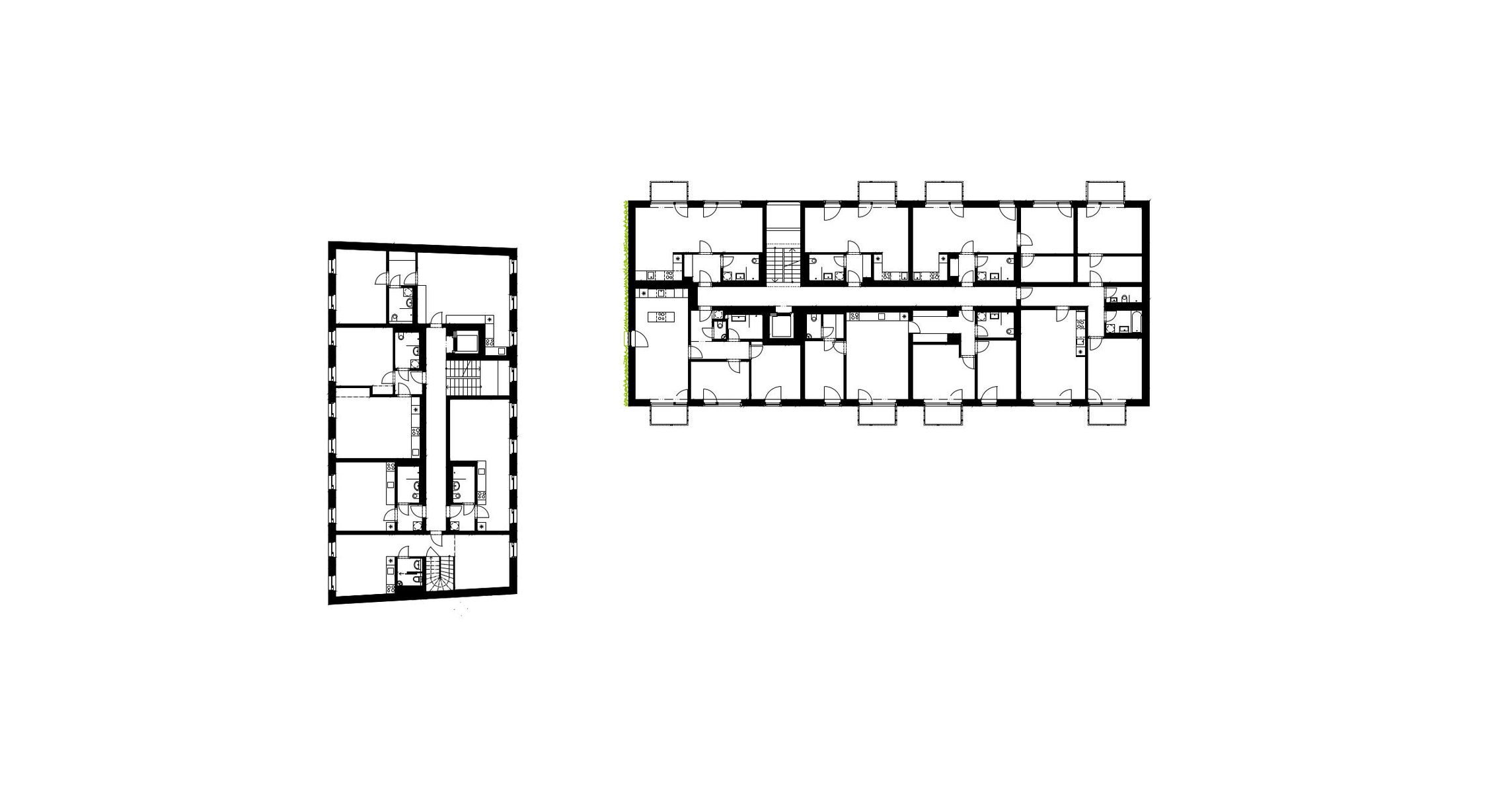
Bytový soubor Wechův dvůr postavený podle návrhu studia Architekti DRNH se nachází v kroměřížské ulici Štěchovice v mírně svažitém terénu areálu bývalého Wechova dvora, jenž je od roku 1958 kulturní památkou. Novostavba sestává ze dvou samostatných křídel propojených v suterénu chodbou.

Uliční polyfunkční křídlo s byty, ubytovacími jednotkami a ordinací vyplňuje proluku; bytové křídlo se nachází ve vnitrobloku na místě zdemolovaného výrobně-skladovacího objektu. Orgány památkové péče stanovily pro novou výstavbu výškový limit a tvar střech. S ohledem na délku proluky a měřítko okolní zástavby je uliční objem kompozičně rozdělen na dva výškově odskočené objemy se sedlovými střechami. Řešení zmenšuje měřítko nové stavby a ponechává dominanci historickému objektu Wechova dvora.
„Nový zásah usiluje o zachování původního charakteru místa. Odstupňované sedlové střechy společně s výškovými limity citlivě reagují na sousedství památkově chráněného pozdně barokního objektu. Hmota doplňuje uliční zástavbu, aby ve vnitrobloku mohla vzniknout klidná oáza třiceti bytů s komunitní zahradou a přírodním biotopem.“ Bydlení v srdci Hanáckých Athén, Petr Šmídek, více v časopise STAVBA 1/2026

Vnitroblokové křídlo má obdélníkový půdorys se třemi nadzemními podlažími a ustoupeným podstřeším s terasami. Před jeho severovýchodním průčelím je parkoviště s podzemními kontejnery, přístupné průjezdem pod uličním křídlem. Zbývající část pozemku tvoří společná zahrada s jezírkem a předzahrádkami přízemních bytů. Architektonické řešení uliční fasády vychází z kompozice historického dvora – pracuje s motivem vertikálních okenních otvorů, transformovaných do střídmé kompozice převýšených oken v pravidelném rytmu. Sedlové střechy jsou kryty falcovaným předzvětralým titanzinkovým plechem.

Dvorní obytné křídlo s plochou extenzivní zelenou střechou je otevřenější, s většími okenními otvory a balkony. Horizontální charakter podtrhuje dřevěný obklad podstřeší. Na vstupním průčelí je vertikální zelená fasáda z vegetačních panelů. Fasády dvorního křídla tvoří ručně tažená minerální omítka v pískově béžovém odstínu, uliční křídlo má tenkovrstvou stěrkovou omítku v lomené bílé. Průjezd a vstupní části jsou obloženy cementovláknitými deskami. Okna jsou hliníková s eloxovanou povrchovou úpravou; v uličním křídle v přírodním stříbrném odstínu, ve dvorním křídle v odstínu bílé mosazi. V exteriéru jsou zvýrazněna hliníkovým ostěním, v interiéru navazují na dřevěné obložení. Do ostění jsou integrovány screenové rolety napojené na systém chlazení.

Každé křídlo je trojtrakt s centrálním schodištěm a výtahem. Konstrukční systém tvoří stěnový nosný systém založený na železobetonové vaně s monolitickými stropy a schodišti. Hlavním zdrojem tepla je tepelné čerpadlo zem–voda napojené na vrtné pole se záložním elektrokotlem. Objekt využívá režimy pasivního i aktivního chlazení a sálavé podlahové vytápění v kombinaci se stropním chlazením. Větrání obytných místností je přirozené.
Podle autorské zprávy
Místo stavby: ul. Štěchovice, Kroměříž
Autoři: Architekti DRNH / Antonín Novák, Petr Valenta, Ondřej Bouček, Radovan Smejkal
Investor: Jistota bydlení
Zastavěná plocha: 830 m²
Užitná plocha: 2 714 m²
Plocha pozemku: 2 760 m²
Obestavěný prostor: 10 477 m³
Projekt: 2019–2021
Realizace: 2022–2024
Foto: Petr Šmídek, David Peška, Michael Rafael Pláteník
































Kaskády Hranice jsou skvělým příkladem toho, že i bytová výstavba může mít kvalitní architekturu, promyšlený urbanismus a příjemný prostor pro…
Architektura musí souviset s místem, nikoli místo s architekturou. Proto jakékoli stavby umožňující realizaci na různých místech nejsou ARCHITEKTUROU.
Z mého pohledu je fajn vidět, jak se i u tak „běžné“ věci, jako jsou překlady, řeší systémovost a přesnost!
Praktické řešení, hlavně z pohledu rychlosti výstavby a přesnosti👍 U těchto systémových prvků dává smysl, že zjednodušují realizaci a pomáhají…
Zajímavý posun ve stavebnictví, je vidět, že se dnes klade velký důraz hlavně na rychlost výstavby a přesnost provedení. Systémové…