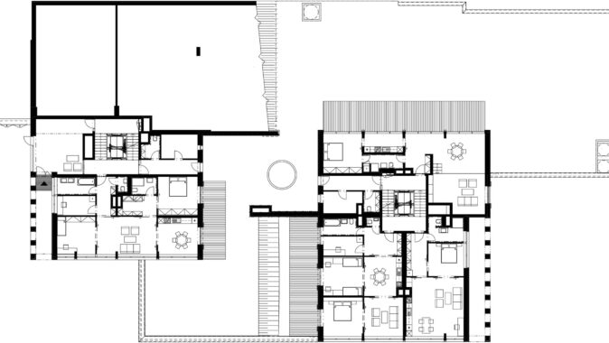
Domy byly postaveny podle návrhu studia Pelčák a partner architekti ve svažitém úseku brněnské ulice Horní, v dlouhé proluce mezi řadovými bytovkami ze 60. let na severu a přibližně o dekádu mladším areálem policejní školy na jihu.

Ulice k policejnímu areálu stoupá a svažitý terén je rovněž západně od hrany vozovky k vrcholu Červeného kopce. V této urbanisticky nestabilizované a morfologií terénu nejednoduché situaci je chybějící uliční fronta navržena jako „otevřená“, tvořená trojicí bodových domů vzájemně posunutých výškově i půdorysně. Kvůli nevypořádanému vlastnictví nefunkční redukční stanice plynu ale nakonec nebyl severní dům realizován.

Čtyřpatrové domy s ustoupeným podlažím vyrůstají ze společného soklu podzemní garáže se střešní zahradou. Západní dům, který bude po dostavbě navazující uliční sítě na nároží, reflektuje posunem uliční čáry budoucí křižovatku i aktuální majetkové vztahy v území a vytváří si komfortní vstupní předprostor, asociující čestný dvůr. Vstup z chodníku k domovním dveřím každého z domů je veden kolonádou jednostranně otevřenou do zahradního patia.

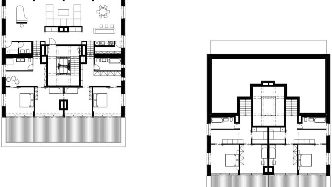
Vzájemný posun objektů neurčuje pouze urbanistickou figuru návrhu. Také plochy podlaží jsou uvnitř objemu každého z domů vertikálně posunuty o půl patra. Z každé podesty i mezipodesty je tedy vstup do dvojice bytů, které tak mají dostatek soukromí. Vrchní byty jsou mezonetové a díky vzájemnému posunu části podlaží mají vysoké, velkorysé obývací pokoje.

Dispozice bytů jsou osobité, složené ze čtvercových, dvoukřídlými otvory na celou jejich výšku propojených místností, kterým mohou obyvatelé dle vlastního gusta dávat různé náplně a funkce. Byty tedy téměř bez chodeb nabízí neobvyklou volnost způsobu bydlení. Obytné pokoje přitom hledí skrze rozměrné obytné balkony/terasy zcela prosklenými průčelími – uličním i zahradním – do krajiny. Obraz města a rovin Jižní Moravy na východě a vegetace svahů Červeného kopce na západě je rámován pouze plochami stěn a stropů. Naopak intimní místnosti, především ložnice a koupelny, jsou obráceny do stran.

Dvojice domů má velkou společnou obytnou zahradu a stejné fasády přírodní materiality, sestávající z hliníkových rámů oken, textilních stínících rolet a markýz a lícových cihelných pásků. Ty odkazují k bývalé největší brněnské cihelně Paula Kohna, která po celé století formovala charakter Červeného Kopce. Stavbou dvojice obytných domů začíná revitalizace jejího brownfieldu, největšího v Brně, a také budoucí otevřená uliční fronta, vhodná ve specifickém prostoru svažité ulice. Výškou přitom domy navazují na nejbližší pětipodlažní domovní blok, který sousední rovinnou část ulice před více než 50 lety vytvořil.
Autorská zpráva
Místo stavby: ul. Horní, Brno
Autoři: Pelčák a partner architekti / Petr Pelčák
Tým: Jan Foltýnek, Světlana Kubánková, Mirka Zadražilová
Investor: LERAM estate
Realizace: 2018–2024
Foto: Bořivoj Čapák, Filip Šlapal


























Do 4/1 jsou Mockerovy domy přístupné v rámci akce Vánoční putování Pražským hradem https://www.hrad.cz/cs/kultura-na-hrade/program/vanocni-putovani-prazskym-hradem-1-13462
Hodně mě překvapilo, že je v areálu Pražského hrad tahle zanedbaný dvorek. Na leteckých snímcích to vypadá líp, jako že…
Díky za odkaz, opravdu zajímavý projekt! Rekonstrukce za plného provozu je vždycky náročná, a je skvělé vidět, jak se to…
Ano, továrna v Pardubicích je velmi zajímavá. Kromě jiného rekonstrukce probíhala za plného provozu. Přikládám odkaz na celou stavbu, je…
V rámci Prahy jde o jednu z nejhlučnějších lokalit, které lze v centru najít. ideální pro drahé kanceláře a bydlení.…