V kopcovitém terénu na okraji Semil vznikl nový dům určený pro osoby se zdravotním znevýhodněním od studia Stempel Tesař architekti. Nabízí menší domácnosti s důrazem na bezbariérovost, přehledné dispoziční řešení a propojení se zahradou.

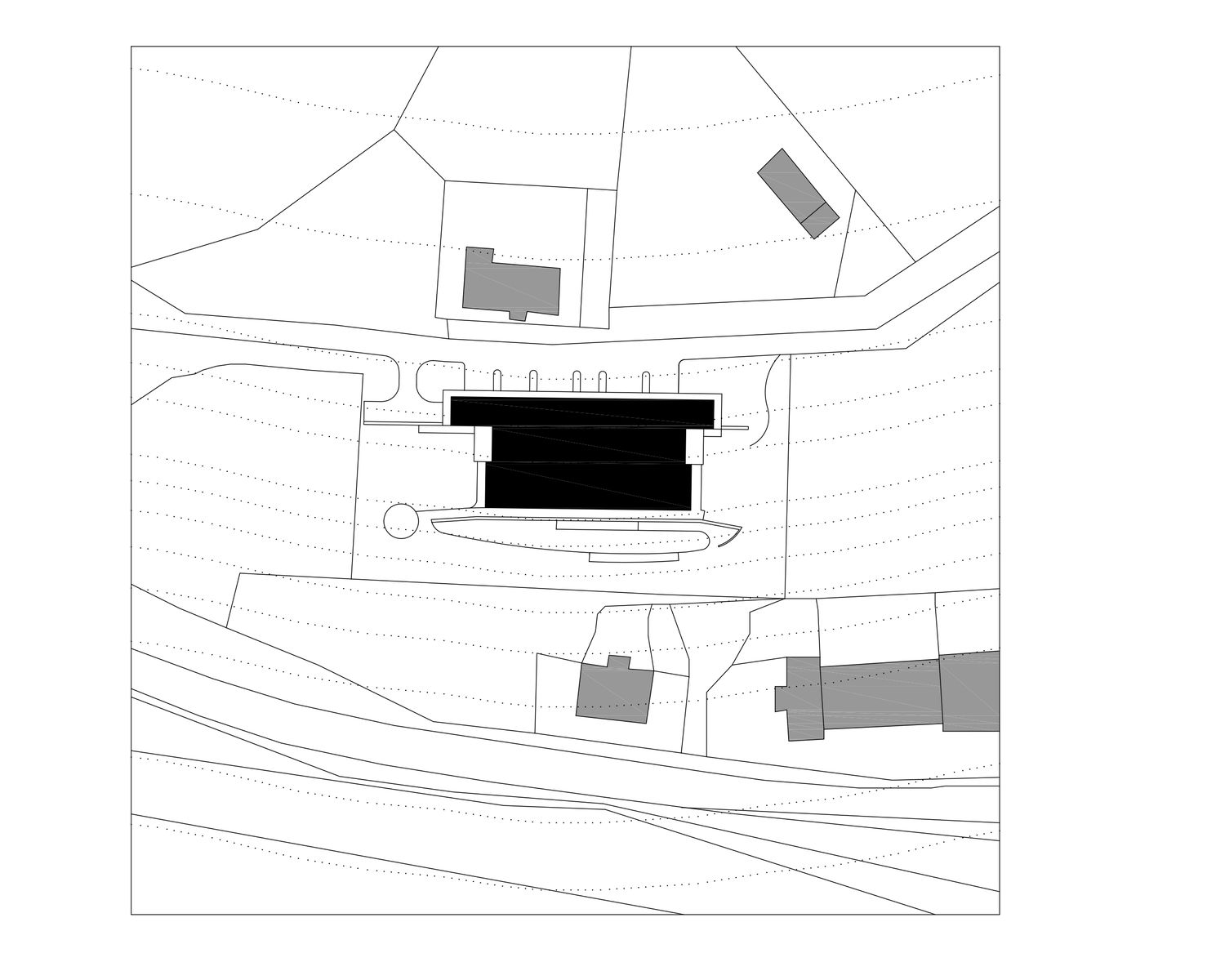
Stavba reaguje na svažitý terén i měřítko okolní zástavby rodinných domů a doplňuje strukturu klidné rezidenční čtvrti. Novostavba se nachází v jihovýchodní části Semil na svažitém pozemku s výhledem na protější zalesněný hřbet. Vstup do objektu je situován v horním podlaží na severní straně parcely v úrovni přilehlé komunikace. Spodní podlaží je částečně zapuštěno do terénu, takže při pohledu z ulice se dům jeví jako jednopodlažní.

Slunnost parcely, vzrostlá zeleň i celkově klidný charakter lokality vytvářejí vhodné podmínky pro začlenění stavby do prostředí solitérní zástavby rodinných domů. Architekti proto zvolili kompaktní dvoupodlažní objem, který respektuje měřítko okolní zástavby i přirozený tvar terénu.

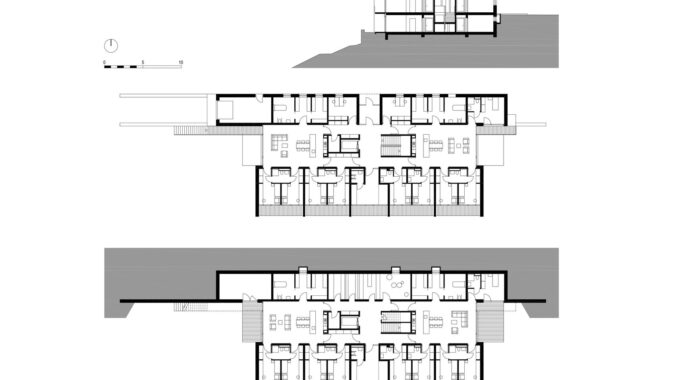
Dům poskytuje chráněné bydlení pro 18 osob. Je rozdělen do čtyř menších domácností s podobným dispozičním řešením. Střed každé jednotky tvoří společný obytný prostor s kuchyní a jídelním koutem, z něhož je přístup do čtyř jednolůžkových pokojů a do technických místností. Vždy dva pokoje sdílejí společné hygienické zázemí. Na každém podlaží je navíc jedna garsoniéra určená pro odlehčovací pobytovou službu. Provoz objektu je rozdělen podélně do tří zón. Severní část tvoří provozně-technické zázemí, střední zóna je vyhrazena společným pobytovým prostorům a jižní část obsahuje pokoje orientované do lodžií s výhledem do krajiny.

V blízkosti hlavního vstupu je umístěn výtah spojující obě podlaží, který zajišťuje plnou bezbariérovost objektu. Administrativní a technické prostory se nacházejí rovněž u vstupu. Parkovací stání jsou navržena jako bezbariérová a komunikace v interiéru i exteriéru splňují požadavky na minimální šířky i sklony pro osoby s omezenou schopností pohybu nebo orientace.

Konstrukční systém je založen na nosných cihelných a železobetonových stěnách s obousměrně pnutými železobetonovými stropními deskami. Objekt je založen na základových pasech a terénní úpravy doplňují opěrné stěny reagující na svažitý charakter pozemku. Obvodový plášť kombinuje minerální izolaci, cihelné lícové pásky a hliníkové výplně otvorů.

Součástí návrhu je také zahrada, která rozšiřuje obytné možnosti domu o venkovní pobytový prostor. Terénní a vegetační úpravy navazují na přirozený charakter svahu a využívají stávající kvality místa. Travnatá plocha v blízkosti domu umožňuje volný pohyb a nenáročné venkovní aktivity, zatímco svažitější části jsou doplněny keřovým patrem. Zahrada nabízí různá zákoutí pro odpočinek i setkávání – od prostoru s ohništěm a altánem až po strom se soustřednou kruhovou lavicí či houpačku pro relaxaci.
Podle autorské zprávy
Lokalita: Semily – Na Vinici
Autoři: Stempel Tesař architekti / Ján Stempel, Jan Jakub Tesař
Projektant: SIAL architekti a inženýři, Liberec / František Bielik
Krajinářská architektura: Markéta Mádrová – Terra Florida
Investor: Liberecký kraj
Návrh a projekt: 2021–2026
Plocha pozemku: 2524 m²
Zastavěná plocha: 784 m²
Užitná plocha: 1160 m²
Obestavěný prostor: 5350 m³
Náklady: 99,2 mil. Kč
Foto: Filip Šlapal
































Akustika je často podceňovaný, ale zásadní aspekt kvality bydlení... Článek dobře ukazuje, že nejde jen o samotný materiál, ale hlavně…
Oceňuji hlavně důraz na kvalitu provedení, nestačí jen dobrý materiál, ale i správná realizace. V praxi právě detaily často rozhodují…
Skvělý článek o akustické kvalitě staveb, která je často opomíjená, ale velmi důležitá. Systémy Heluz nabízejí dobrá řešení pro zvukovou…
Zajímavé téma, díky za sdílení. Tyhle novinky z praxe mají vždycky největší přínos 👍
Zajímavý webinář zaměřený na novinky od společnosti Heluz. Oceňuji hlavně představení cihel Heluz AKU a jejich výsledků v oblasti zvukové…