Novostavba od studia Pelčák a partner architekti je prvním blokem nové brněnské Jižní Čtvrtě a její ambicí je založit městské prostředí v strategickém rozvojovém území brněnského centra. Klade si za cíl podpořit jeho velkoměstský charakter.

Pokračuje v urbanizaci lokality zahájené na počátku 20. století. Dostavuje blok, jehož čelo do ulice Opuštěné bylo zbudováno před první světovou válkou, a navazuje na oba štíty osamoceně stojící budovy základní školy, dnes úřadů. Má multifunkční náplň, která přináší typicky městský mix využití, a hlavně vrací bydlení do centra.

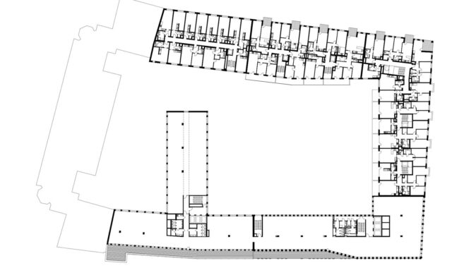
Blok se skládá z administrativní budovy v ulici Trnitá a šesti obytných ve dvou křídlech v nových ulicích Fuchsově a Placzkově, všechny mají obchodní parter. Ve vnitrobloku je pod obytnou zahradou parking. Svojí výškou stavby navazují na sousední objekty – bývalou školu a palác Trinity.

Administrativní budova má uliční fasádu ze světlých prostorových sklocementových prefabrikátů kombinovaných s lesklými černými panely parapetních výplní a sokl obložený výrazně strukturovaným římským travertinem, resp. černou žulou uvnitř kolonády. Fasády bytových domů jsou také vertikálně členěné, avšak namísto seriální modulace kanceláří mají živý rytmus zdánlivě nepravidelně rozmístěných oken a lodžií.

Tato proměnlivost průčelí spolu s jejich materialitou nabízí dostatek motivů a je tak navozena atmosféra tradiční ulice s paletou zážitků, a tedy kvalita městského prostředí. Bytové domy svoji náplň vyjadřují drobnějším antropometrickým měřítkem. Severní fronta včetně nároží je obložena světlými keramickými pásky, parapety oken jsou hladce stěrkované, parter obložený žulou. Domy v Placzkově ulici mají sokl z božanovského pískovce a každý odlišnou barvu omítané fasády, jak bývá v centrech měst obvyklé.
Autorská zpráva, kráceno, vyšlo v časopise Stavba 4/2024 s recenzí Moniky Mitášové
Místo stavby: Trnitá 7, Brno
Autoři: Pelčák a partner architekti / Miroslava Blechová, Pavel Dvořák, Kateřina Eirmannová, Šárka Justová (vedoucí projektu), Jan Kozák, Šárka Králiková Mecnerová, Pavel Mahovský, Martina Mikócziová, Filip Musálek, Jan Rolinc, Petr Pelčák, Petr Uhrín (vedoucí projektu), David Vahala
Zastavěná plocha: 6352 m2
Hrubá podlažní plocha: 40 343 m2
Plocha pozemku: 8055 m2
Obestavěný prostor: 145 886 m3
Projekt: 2013–2023
Realizace: 2023
Foto: Filip Šlapal
































Do 4/1 jsou Mockerovy domy přístupné v rámci akce Vánoční putování Pražským hradem https://www.hrad.cz/cs/kultura-na-hrade/program/vanocni-putovani-prazskym-hradem-1-13462
Hodně mě překvapilo, že je v areálu Pražského hrad tahle zanedbaný dvorek. Na leteckých snímcích to vypadá líp, jako že…
Díky za odkaz, opravdu zajímavý projekt! Rekonstrukce za plného provozu je vždycky náročná, a je skvělé vidět, jak se to…
Ano, továrna v Pardubicích je velmi zajímavá. Kromě jiného rekonstrukce probíhala za plného provozu. Přikládám odkaz na celou stavbu, je…
V rámci Prahy jde o jednu z nejhlučnějších lokalit, které lze v centru najít. ideální pro drahé kanceláře a bydlení.…