Původní proluka „Nové Lauby“ v centrální části města byla obklopena pravidelnou uliční sítí většinou s charakterem pěší zóny navazující na náměstí. Dům Nové Lauby pod návrhu studia znamení čtyř – architekti je kompaktní solitérní strukturou, která místo smysluplně naplnila.

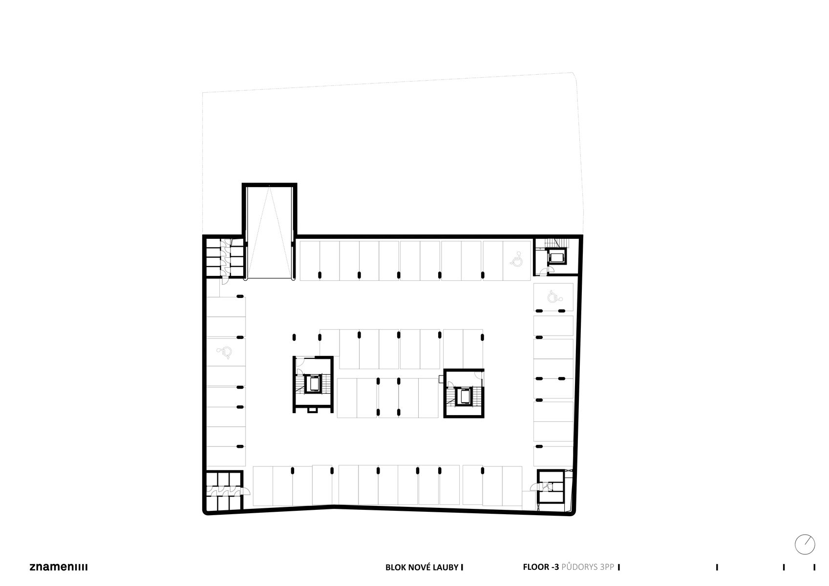
Lokalita byla dříve zastavěna blokovou zástavbou, v okolí se službami, prodejnami, provozovnami. Od roku 1955 byly všechny zde dříve stojící objekty postupně demolovány. Místo vymezené ulicemi Muzejní, Velká, Dlouhá a Pivovarská, dekády využívané jako povrchové parkoviště a položené v těsné blízkosti náměstí TGM a Staré radnice – tzv. Lauby – má zásadní význam pro rehabilitaci struktury města tvořící tzv. první plán domovních bloků při náměstí samotném. Nově navržený asanační blok (primární poškození původní zástavby v důsledku spojeneckého bombardovaní za WWII) je nositelem kvality v kontextu místa, přirozeně rehabilituje jeho paměť. Pravidelný tvar bloku je ekonomický, umožnil racionální uspořádání kapacitního parkovacího suterénu, s vjezdem z ul. Pivovarská.

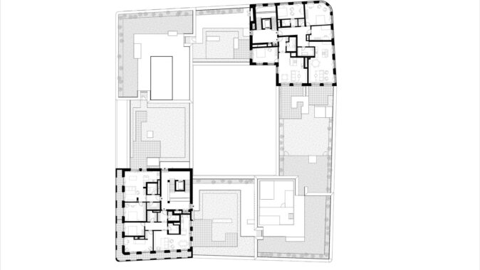
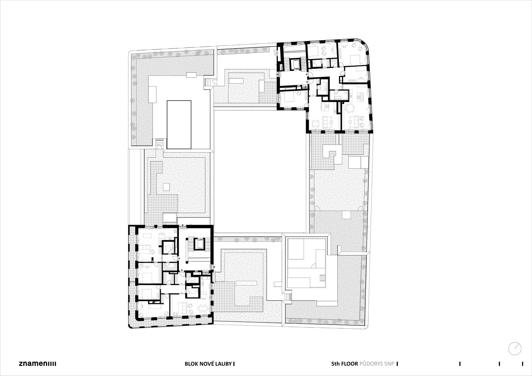
Nové Lauby mají ekonomickou společnou tří podlažní spodní stavbu – kapacitní parkovací podnož. Jsou svou velikostí a konceptem vhodné k záměru koncentrované obecní bytové výstavby (takto byl původně celý projekt navržen), podporující nabídku málo a středně metrážních bytů v městském jádru. Cílem návrhu byl harmonický a kontextuálně aditivní výraz staveb. Ten naznačuje členění bloku do formy tradičních domů prostřednictvím členění, textur, barev atp., ale stále přitom udržuje celek kompaktní. S ohledem na měřítko okolní zástavby má formu 8 hmot, čtyř nárožních a čtyř nárožím mezilehlých. Funkčně je tvořen souborem pěti běžných městských domů (přičemž jeho schodišťové sekce stejně vertikálně propojují 7až 8 podlaží).

Solitérní bytový komplex má klidový vnitroblok v parteru a podzemní parkování. Návrh ctí u všech uličních fasád dodržení konceptu tradiční fasády – stěnové konstrukce s nesdruženými okny převážně vertikálních proporcí. Okna jsou různých velikostí / proporcí – komponovaná vždy individuálně pro každou sekci. Některé sekce, mají v struktuře omítek odlišeny šambrány kolem oken uličních fasád. Objekt má v parteru v rámci fasád sokl proměnné výšky. Půdorysná i výškopisná regulace vycházející z okolních staveb, genia loci místa i historického půdorysu. Návrh má jasné vnitřní zónování vyplývající z charakteru lokality. Střechy jsou ploché, převáženě zelené akumulační, v kombinaci intenzivní i extenzivní skladby s částečně pobytovými terasami pro byty ve vyvýšených nárožních sekcích.

Architektonické členění hmot je v kontextu s místem – členění parteru, výšek/říms a systémů okenního rastru naznačuje členění bloku na jednotlivé domy v místním měřítku. Zároveň ale celá stavba má harmonicky obdobný charakter, proporce, měřítko. Obchodní parter do ul. Velká používá segment oblouku jako odkaz k historii místa – Lauby (tj. loubí). Zároveň zde parter ustupuje a rozšiřuje ulici /pěší zónu Velká. Navazuje na stávajíc loubí Staré radnice. Toto je odraženo i v materiálově formátovém provedení dlažby pěší zóny v části ulice Velká, respektující původní katastr parcel.
Autorská zpráva, upraveno
Místo stavby: Muzejní, Velká, Dlouhá a Pivovarská, Ostrava
Autoři: znamení čtyř – architekti / Richard Sidej, Martin Tycar, Juraj Matula
Spolupráce: Kristýna Kirschner, Lukáš Mejstřík, Daniel Solovev, Ladislava Čížková, Lukáš Rehberger, Tomáš Hanus, Miloš Munzar
Investor: Sdružení BBB Nové Lauby
Náklady: 387 mil. Kč
Kapacita: 83 bytových jednotek, 4 komerční jednotky, podzemní parking 187 stání
Zastavěná plocha: 2664 m2
Užitná plocha: 5457 m2
Obestavěný prostor: 56 334 m3
Projekt: 2017–2021
Realizace: 2021–2024
Foto: Matěj Hošek
































Pánové, děláte mi radost. Světlíky, jako na Vinohradech a split level v garážích, jako pod Dostavbou národního divadla.
Děkuji