Rezidence Gočárova od žďárského studia GRIMM Architekti se nachází na křižovatce vnitřního městského okruhu a královéhradecké městské třídy. Je první realizovanou etapou záměru postavit celkem dvě budovy pro studentské ubytování.

Druhá z budov, Rezidence Letců, by měla vzniknout na protější straně v sousedství vily Anička, kde doplní nárožní proluku ulice Letců. Celý prostor je rozhraním dvou urbanistických struktur. Potkává a kříží se zde zástavba předprvorepublikových vil zahradního města lemujících ulici Střelecká a pozdější bloková zástavba dnešní Gočárovy třídy. Kontakt výškové blokové zástavby s původní drobnější strukturou vil a rodinných domů je typickým prvkem a jednou z charakteristik města Hradce Králové.

Urbanistická koncepce záměru sleduje vývoj myšlenky vytvořit silnou radiálu spojující Pražské Předměstí s centrem města. Ta vychází z regulačních plánů Oldřicha Lisky a Václava Rejchla, na které později navázal Josef Gočár. Budova rezidence zakončuje uliční frontu domů a dotváří tím po téměř 100 letech jižní část Gočárovy radiály.

„Kdo by dokázal odříct příležitost realizace na exponovaném nároží? Zároveň však nikdo nechce předělávat cizí projekt na nové využití. Do této nezáviděníhodné situace se dostal žďárský architekt Rudolf Grimm. Soukromý investor v roce 2019 koupil od pojišťovny Generali projekt i se stavebním povolením a pověřil architekty, aby prosklenou kancelářskou budovu proměnili na bytový dům, ale přitom zachovali stejnou kubaturu.“ Z recenze Petra Šmídka, vyšlo v časopise Stavba 2/2024.

Základní architektonické řešení vychází z kontextu a navazuje na tradiční formy slavného meziválečného a raně poválečného období. Vnější barevné řešení domu je v odstínech bílé barvy. Omítka je ručně horizontálně česaná. Základní obdélníkový formát oken odráží poměry a řešení oken okolních budov. Menší čtvercová okna jsou pro zachování rytmu a základní proporce doplněna plastickými postranními vlysy. Jižní fasáda je dotvářena posuvnými okenicemi. Do bílé a strohé fasády se proskleným vstupem decentně propisuje růžové schodiště.

„Za přínosné považuji, že vnějškově se zdrželi výrazných formálních úprav. Zvolili dům s omítkou s okny, zřejmě s odkazem na Gočára. Důsledně šli za obdélným oknem 2400 × 1600 mm. Při volbě čtverce pak vyšli z rozměru 1600 mm. Použili bílou barvu na omítku i na rámy oken a tím vším dům zklidnili. Dům plynule navazuje na souseda v Gočárově třídě.“ Z recenze Karla Doležela, vyšlo v časopise Stavba 2/2024.

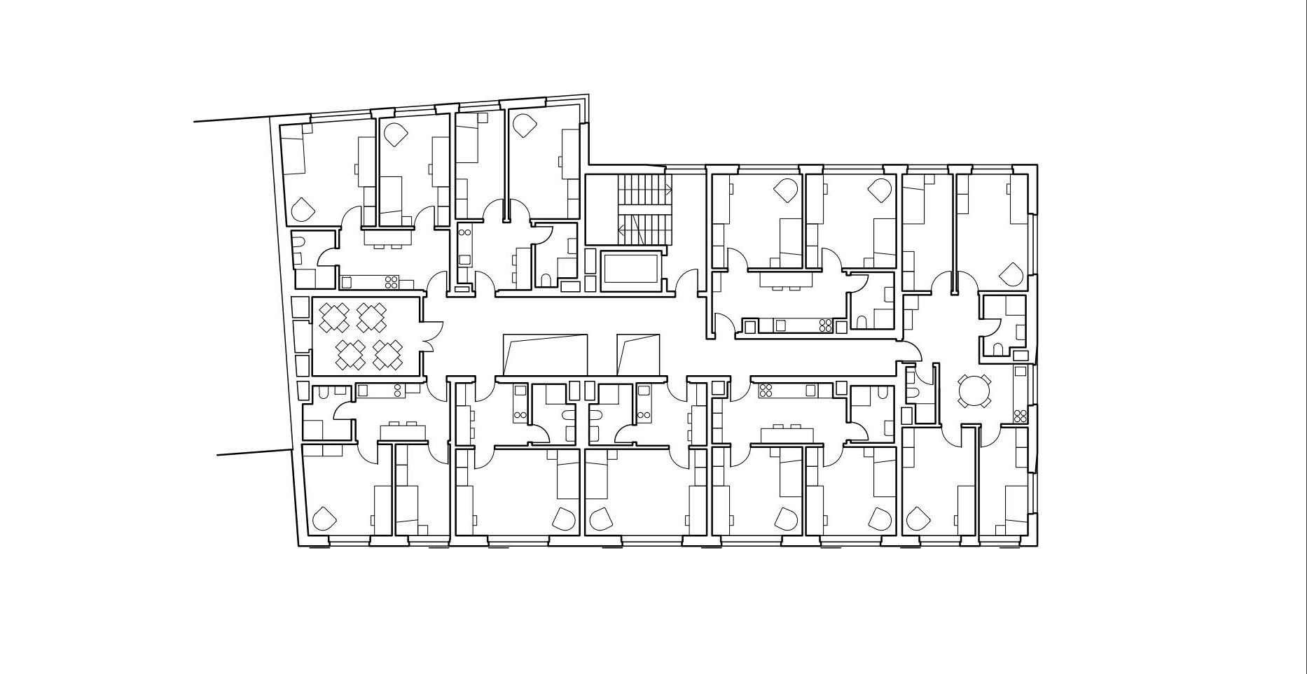
Parter budovy je součástí každodenního života rušné ulice. Přídlažba z žulových kostek usazuje budovu do asfaltového chodníku. Veřejný prostor do Střelecké ulice z česaného betonu je doplněn stojany pro kola, dřevěnou lavicí a katalpou. Společné centrum domu tvoří atrium, lemované ze tří stran pavlačí, procházející budovou na výšku pěti obytných pater a prosvětlené střešním světlíkem. Ústředním motivem atria je velkoplošná malba s tématem ulice. V posledním patře je z atria přístupná společná střešní terasa s výhledem na město.

Stropy v budově jsou z pohledového betonu. V jejich povrchu jsou ponechány stopy zachycující proces stavby. Najdeme zde otisky bednění, výztuže, napadaného listí, ale i skvrny rzi nebo tužkou psané poznámky dělníků. Interiéry pokojů studentského bydlení jsou řešeny s ohledem na snadnou údržbu. Kuchyňské linky jsou z jednoho kusu nerezové oceli, bez skříněk, pouze s regály. Základní barevné řešení pokojů v kombinaci pohledového betonu, bílé a černé je akcentováno barevnými doplňky v červené, žluté nebo modré barvě.
Autorská zpráva
Místo stavby: Gočárova, Hradec Králové
Autoři: GRIMM Architekti / Rudolf Grimm, Martina Grimmová
Spolupráce: Alexandra Krejčí, Jan Špaček
Murál: Malujeme jinak
Zastavěná plocha: 490 m2
Hrubá podlažní plocha: 2620 m2
Plocha pozemku: 1273 m2
Obestavěný prostor: 9 237 m3
Projekt: 2019–2020
Realizace: 2020–2023
Foto: Kamil Saliba, Petr Šmídek














































Kaskády Hranice jsou skvělým příkladem toho, že i bytová výstavba může mít kvalitní architekturu, promyšlený urbanismus a příjemný prostor pro…
Architektura musí souviset s místem, nikoli místo s architekturou. Proto jakékoli stavby umožňující realizaci na různých místech nejsou ARCHITEKTUROU.
Z mého pohledu je fajn vidět, jak se i u tak „běžné“ věci, jako jsou překlady, řeší systémovost a přesnost!
Praktické řešení, hlavně z pohledu rychlosti výstavby a přesnosti👍 U těchto systémových prvků dává smysl, že zjednodušují realizaci a pomáhají…
Zajímavý posun ve stavebnictví, je vidět, že se dnes klade velký důraz hlavně na rychlost výstavby a přesnost provedení. Systémové…