Trojice bytových domů studia Lábus AA v druhém bloku Smíchov City rozvíjí jednotný návrhový princip skrze rozdílné podmínky jednotlivých parcel. Odlišná šířka domů i jejich poloha v rámci bloku se promítají do variací dispozic, prostorové kvality komunikací i celkového objemového řešení.

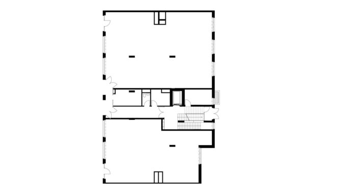
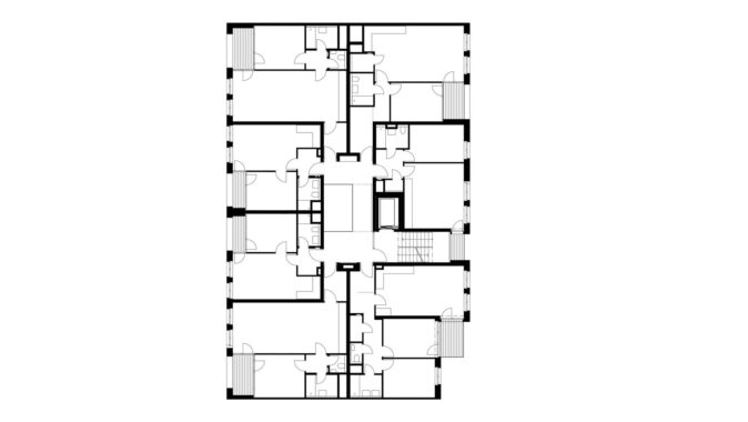
Návrh vychází ze soutěžní koncepce severní části území, která staví na rovnováze mezi integritou celku a přirozenou diverzitou jeho částí. Tato ambice se v realizaci promítá nejen do materiálového sjednocení a práce se siluetou, ale především do způsobu, jakým jednotlivé domy reagují na svou konkrétní situaci v rámci bloku. Rozdílná šířka parcel a pozice domů určují i odlišné principy organizace dispozic. Na úzké parcele vzniká úsporné schéma se schodištěm přímo osvětleným z dvorní fasády, zatímco širší sekce umožňuje velkorysejší řešení vnitřních komunikací. V případě nárožního domu se tento princip dále rozvíjí – schodišťový prostor je prosvětlen nejen z fasády, ale i shora pomocí světlíků nad vnitřními dvoranami, čímž získává vyšší prostorovou kvalitu i orientaci v rámci dispozice.

Odlišnosti mezi domy se tak neodehrávají na úrovni výrazných formálních gest, ale v jemných posunech vycházejících z konkrétních podmínek. Vedle variací v barevnosti cihelného obkladu se promítají i do šířky a rytmu věžovitých nástaveb, které reagují na proporce jednotlivých objektů a zároveň spoluvytvářejí jednotnou siluetu bloku. Projekt tak rozvíjí princip, který je vlastní tradiční městské zástavbě: individualita jednotlivých domů není deklarována autonomně, ale vzniká jako důsledek sdíleného řádu a konkrétní situace. Právě tato schopnost diferencovat v rámci jednoho systému se stává hlavním nástrojem, jak v rozsáhlé nové čtvrti dosáhnout čitelnosti i přirozené míry rozmanitosti.
Podle autorské zprávy, vyšlo v časopise Stavba 3/2024
Místo stavby: mezi ulicemi Nádražní a Albrightové, Praha 5
Investor: Smíchov Station Development (Sekyra Group)
Hlavní architekt celkového řešení bloku: Kuba & Pilař architekti
Plocha pozemku bloku: 3649 m2
Zastavěná plocha bloku: 3619 m2
Projekt: 2015–2021
Realizace: 2021–2023
Foto: archiv Sekyra Group / Tomáš Souček
Autoři bytového domu 9: Lábus AA / Ladislav Lábus, Vít Krušina, Petr Cimbulka, Lukáš Grasse, František Košař, Jan Pačka, Igor Šimon
Hrubá podlažní plocha: 3198 m2 (byty 2644 m2, obchody 554 m2)




















Souhlasím, akustika se často podceňuje, přitom má velký vliv na celkový komfort bydlení!!!
Zajímavé, že HELUZ pořád tlačí nejen produktové novinky, ale i sdílení zkušeností z praxe 👍 Právě tohle mi dává největší…
Akustika je často podceňovaný, ale zásadní aspekt kvality bydlení... Článek dobře ukazuje, že nejde jen o samotný materiál, ale hlavně…
Oceňuji hlavně důraz na kvalitu provedení, nestačí jen dobrý materiál, ale i správná realizace. V praxi právě detaily často rozhodují…
Skvělý článek o akustické kvalitě staveb, která je často opomíjená, ale velmi důležitá. Systémy Heluz nabízejí dobrá řešení pro zvukovou…