Ambicí rekonstrukce půdního prostoru na bydlení podle návrhu studia TOTALBRUTAL + SVOBODOVA BLAHA ARCHITEKTI bylo nejen testovat zažitý postup a metody procesu navrhování, ale také způsoby či návyky v obývání prostoru.

Je správné přizpůsobit existující prostor individuální představě komfortu a pohodlí nebo může být opačný způsob ve výsledku také zábavný a osvěžující? Kuchyni a koupelnu lze standardně hydroizolovat a obložit keramikou, ale stejně tak je možné změnit způsob koupele. Je správné vytvářet úložné prostory a zanášet prostor nábytkem, nebo lze změnit pohled na množství osobních věcí?

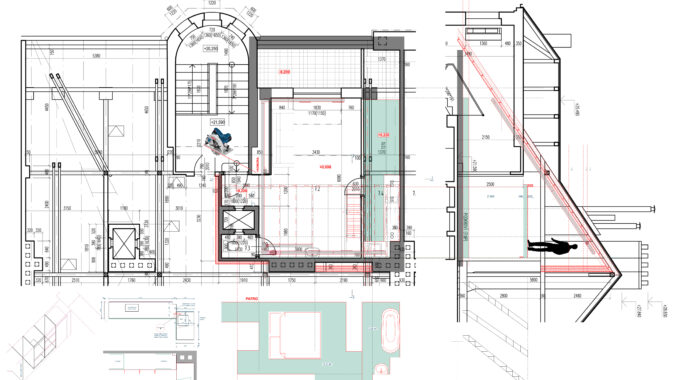
Principy použité v projektu jsou často neslučitelné s typickým procesem klientského návrhu. Nejedná se o případ, kdy se stavba podřizuje velmi konkrétní představě výsledného návrhu, zobrazeného realisticky, včetně konkrétních povrchových úprav a volených materiálů. Návrhově existovalo základní prostorové schéma, ale většina detailů, návazností, uchycení nebo vedení instalací byla řešena a rozhodována analogově přímo na místě.

Soutěž Interiér roku, kterou pořádá Institut bytového designu, každoročně oceňuje výjimečné soukromé i veřejné interiéry navržené českými a slovenskými architekty. Do 11. ročníku soutěže mohou designéři a architekti přihlašovat své nově realizované interiéry do 28.2.2026, více se dozvíte na interierroku.cz. Časopis STAVBA a stavbaweb.cz je mediálním partnerem soutěže.

Každý zásah do jisté míry ovlivnil ten navazující. To umožňovalo vždy volit pragmatická řešení mimo jiné s cílem minimalizace nákladů. Výraz „líbí se mi“ dostal komplexnější rozměr než ten čistě vizuální. Hledali jsme správnost či pravdivost jednotlivých kroků, spočívajících mimo jiné v jednoduchosti, redukci na podstatné minimum, ale také v tom, zda zvolené řešení usnadní výnos materiálu do 6. patra bez výtahu. Považujeme tento postup ve výsledku za hospodárný, šetrný k existujícím konstrukcím a celkově udržitelný.

Prezentovaný ateliérový byt vzniknul přestavbou nevyužitého prostoru bývalé prádelny na půdě družstevního domu. Protože bytové družstvo nedisponovalo finančními prostředky a energií potřebnými k jeho rekonstrukci, nabídli jsme rekonstrukci na vlastní náklady a následné užívání prostoru formou odbydlení. Se stejným postupem rekonstrukce máme zkušenost z přestavby vlastního ateliéru ve vnitrobloku jiného činžovního domu a považujeme to za zajímavý způsob, jak oživit nevyužité prostory. Rekonstrukci jsme řešili svépomocí, což je pro nás v obdobném měřítku stavby zvládnutelná a zábavná kompenzace práce na počítači.

Díky tomu, že jde v těchto případech podnět k rekonstrukci od nás a nikoliv od klienta, máme obecně mnohem volnější ruce v navrhování. Jsme v podstatě sami sobě klienty, a to nám dává obrovskou možnost a svobodu napříč celým procesem – od řešení dispozice, konstrukčního řešení nebo finální povrchové úpravy, které by ve vztahu architekt/klient nebylo možné prosadit.
Autorská zpráva
Autoři: TOTALBRUTAL + SVOBODOVA BLAHA ARCHITEKTI
Foto: Radek Úlehla



































Kaskády Hranice jsou skvělým příkladem toho, že i bytová výstavba může mít kvalitní architekturu, promyšlený urbanismus a příjemný prostor pro…
Architektura musí souviset s místem, nikoli místo s architekturou. Proto jakékoli stavby umožňující realizaci na různých místech nejsou ARCHITEKTUROU.
Z mého pohledu je fajn vidět, jak se i u tak „běžné“ věci, jako jsou překlady, řeší systémovost a přesnost!
Praktické řešení, hlavně z pohledu rychlosti výstavby a přesnosti👍 U těchto systémových prvků dává smysl, že zjednodušují realizaci a pomáhají…
Zajímavý posun ve stavebnictví, je vidět, že se dnes klade velký důraz hlavně na rychlost výstavby a přesnost provedení. Systémové…