Zadání pro studio Lenka Míková architekti znělo: přetvořit opotřebený byt na pražské Letné pro život mladé rodiny. Funkcionalisticky byt po předcích se zachoval téměř v původním stavu, ale značně zchátralý, navíc jeho dispozice 3+1 byla plná tmavých chodeb.

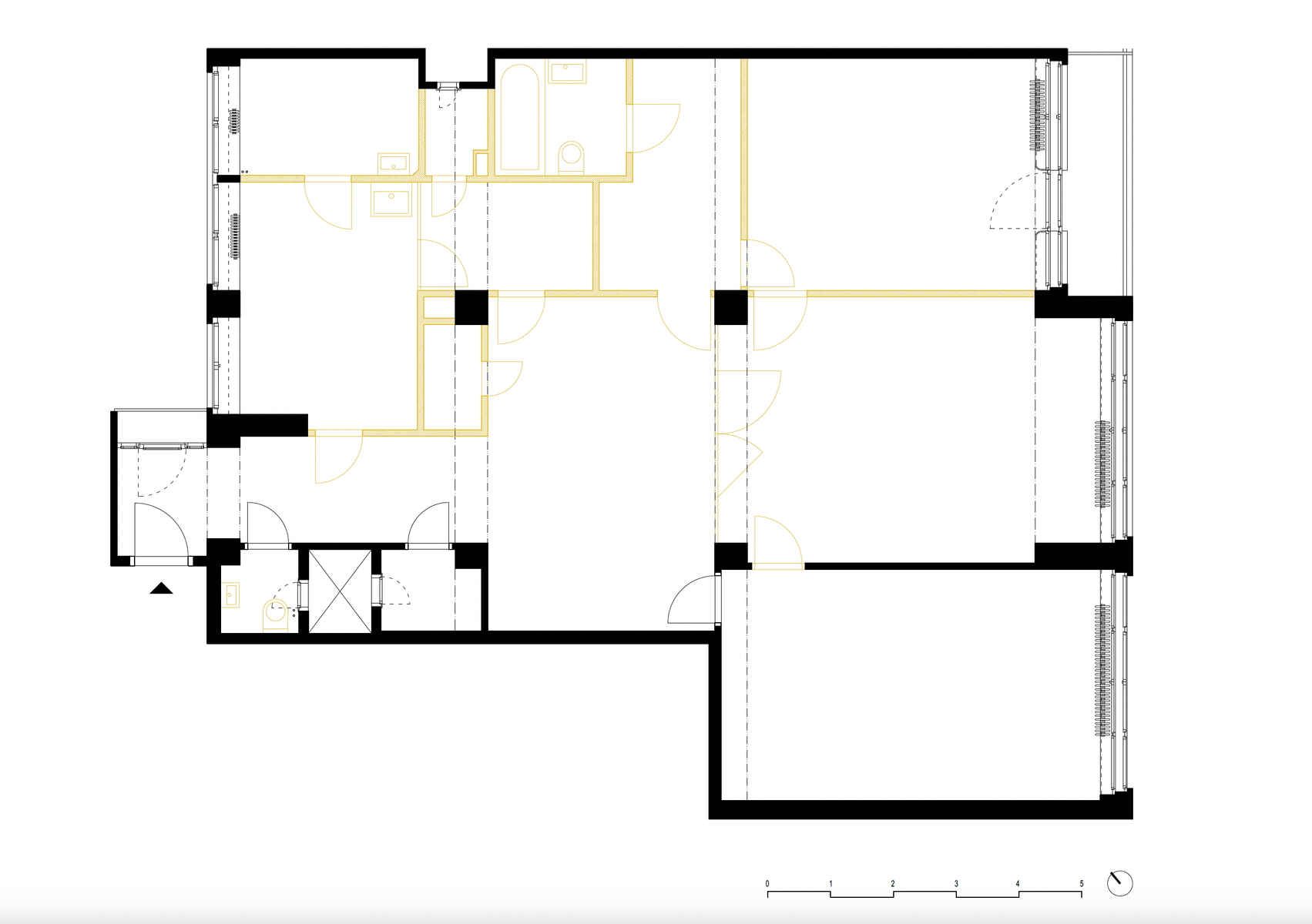
Od začátku tedy bylo jasné, že půjde o kompletní rekonstrukci včetně dispozičních úprav a výměny všech povrchů. Vedle poměrně hluboké dispozice s okny do ulice s výhledem na jedné straně a okny do dvora u vchodu na druhé je specifikem domu skeletová nosná konstrukce, která nám umožnila volnější zacházení s dispozicí bytu. To jsme využili pro zásadní proměnu dispozičního řešení na 3+kk s cílem co nejvíc prostor otevřít a prosvětlit.

Prvním krokem bylo odstranění velké části příček a odhalení sloupů a průvlaků nosného systému. Mezi ně je přiznaně vložené nové členění a prvky, tvořící s původní betonovou konstrukcí prostorový dialog. Záměrně jsme nechali otevřený průhled už od vstupu až k protější fasádě pro vnímání celé hloubky bytu. Zachovali jsme jeden oddělený pokoj u uliční fasády, zbytek bytu je možné procházet dokola jako tzv obíhačku. Hlavní ložnice se nově přesunula k oknům do dvora a průchozí koupelnou je propojená i s obytným prostorem. Před ložnicí je pracovní koutek, který se dá oddělit posuvnou stěnou, ta zároveň může vymezit zádveří v předsíni anebo nechat oba průchody otevřené a tvořit jen pohledovou příčku. Do střední části dispozice jsme vložili nové jádro zahrnující kuchyni a dvě koupelny v návaznosti na původní stoupačky. V prostorné hale je přidaná i vestavná šatna. Obytnému prostoru dominuje dlouhý ostrůvek obložený kamenem, který tvoří středobod domácnosti.

Materiálové řešení navazuje částečně na charakter celého domu. Středová vestavba s kuchyní je zcelena krémovou barevností, která odpovídá odstínu původních rámů oken a dveří a drží světlý dojem z prostoru. Vedle odhalených betonů pak materiálovou kombinaci oživuje zesvětlená kořenová dýha použitá na vestavnou šatnu a posuvnou stěnu. V koupelnách a předsíni se objevují další barevné akcenty, naopak na podlaze se opakuje dlažba z drceného kamene. Zbytek bytu propojuje parketová podlaha s tmavší barevností, která světlý prostor pocitově uzemňuje. Snaha byla zachovat aspoň část původních parket s typicky štíhlým formátem, v obytném prostoru se v nich přiznaně propisuje doplnění po zrušené příčce. Z původních charakteristických prvků se podařilo udržet a repasovat i některé původní dveře a kliky.

V rámci nového dispozičního řešení došlo k přesunu některých stoupaček. Původní betonové průvlaky a sloupy s kresbou prkenného bednění byly oklepáním omítky odhaleny. Na některých místech došlo k jejich retuši. Vzhledem ke svému špatnému stavu byl původní podhled nahrazen novým sádrokartonovým podhledem s izolací – minerální vata. Nové hygienické jádro je tvořeno Ytongovými příčkami. Ložnice a pokoj byly doplněny o zvukově izolační předstěny. Na původních stěnách byl zachován stávající štuk. Stávající článkové radiátory byly repasovány. V některých případech byly nahrazeny radiátory novými. Původní masivní parkety u uliční fasády byly zachovány a repasovány. V zadním traktu bytu byly doplněny recyklované masivní parkety z jiného bouraného bytu.
Autorská zpráva
Místo: Praha 7
Autoři: Lenka Míková architekti
Tým: Lenka Míková, David Poloch, Magdaléna Buza, Jan Plašil
Užitná plocha: 135 m2
Foto: Honza Zima







































Architektura musí souviset s místem, nikoli místo s architekturou. Proto jakékoli stavby umožňující realizaci na různých místech nejsou ARCHITEKTUROU.
Z mého pohledu je fajn vidět, jak se i u tak „běžné“ věci, jako jsou překlady, řeší systémovost a přesnost!
Praktické řešení, hlavně z pohledu rychlosti výstavby a přesnosti👍 U těchto systémových prvků dává smysl, že zjednodušují realizaci a pomáhají…
Zajímavý posun ve stavebnictví, je vidět, že se dnes klade velký důraz hlavně na rychlost výstavby a přesnost provedení. Systémové…
Jako problém vidím hlavně "lavičky" v prostoru sdíleném s cyklisty. Neměly by mít třeba tyče s praporky, jako dětské nákupní…