Interiér bytu, kterému jeho autorka Taťána Kandratovičová přiřkla poetický název „Domov pod křídly Ještědu“, vznikl v roce 2024 v Libereckém kraji. Po dokončení hrubé stavby ji investor oslovil, aby navrhla byt něj a jeho rodinu.

Když jsem začínala pracovat na tomto projektu, věděla jsem, že chci vytvořit interiér, který nebude jen krásný, ale bude mít i hlubší propojení s místem, kde se nachází. Hora Ještěd se stala nejen inspirací, ale i symbolickým prvkem, který se promítá do celého prostoru. Mezonetový byt je součástí moderní roubenky a jeho koncepce spočívá v harmonii tradičních materiálů a moderního designu.

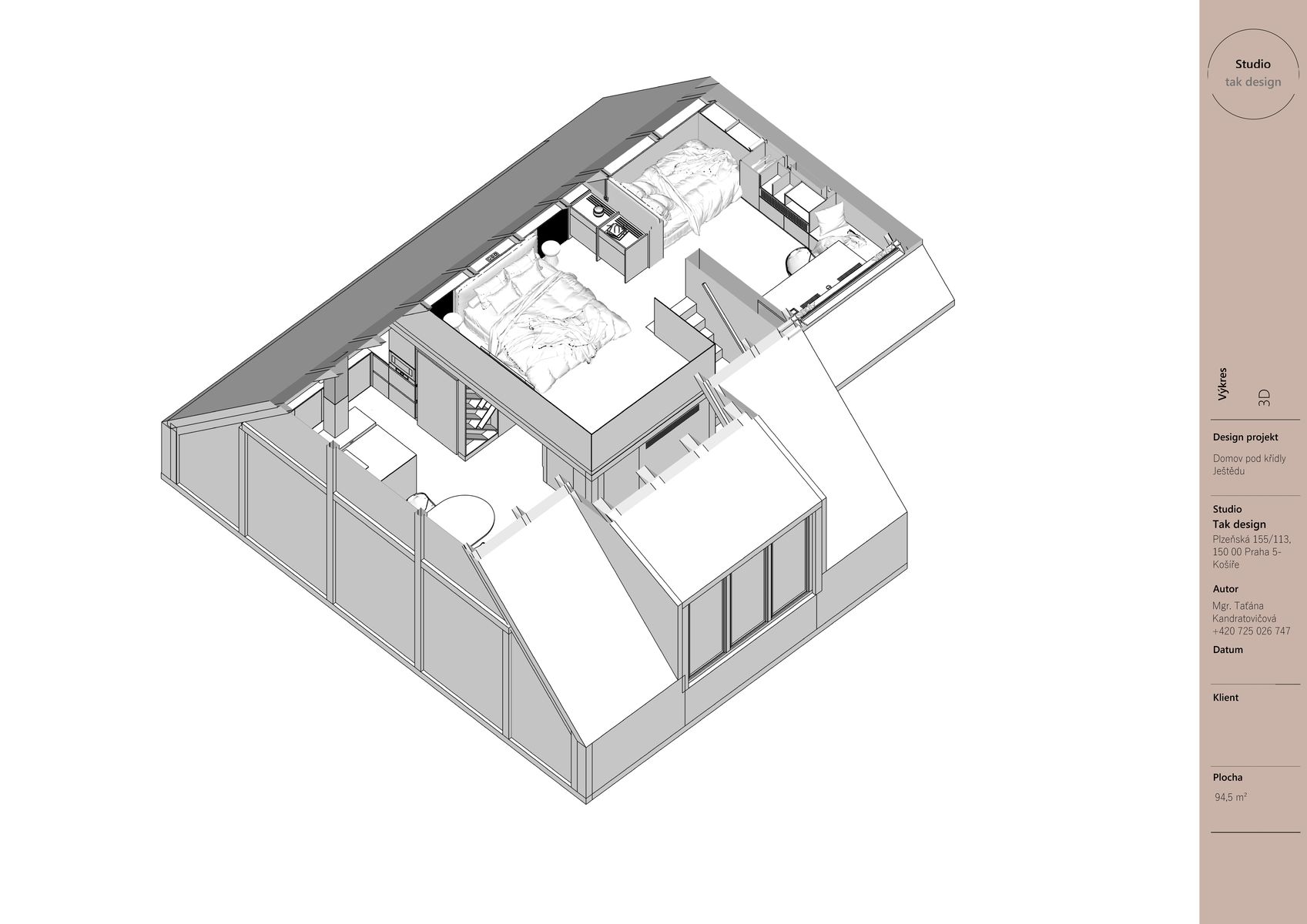
Už při vstupu do bytu upoutá pozornost podsvícená silueta Ještědu, která je součástí centrální multifunkční šatní kostky. Tento prvek nejen prakticky rozděluje prostor, ale zároveň vytváří vizuální dominantu bytu. Zrcadlová plocha v obývací části vizuálně zvětšuje prostor a odráží okolní krajinu, čímž umocňuje propojení interiéru s exteriérem. Kuchyň jsem navrhla tak, aby byla funkční, ale zároveň esteticky nadčasová. Kombinace přírodního dubu a mramoru Calacatta dodává prostoru noblesu, zatímco kuchyňský ostrůvek funguje jako přirozené centrum dění – místo pro přípravu jídla i neformální setkávání.

Schodiště, které vede do podkrovní ložnice, jsem koncipovala tak, aby bylo nejen elegantní, ale i praktické. Pod ním jsem vytvořila pracovní kout a knihovnu, což byl jeden z momentů, kdy se estetika musela propojit s maximální funkčností. Ložnice je navržena jako otevřený prostor, který podtrhuje vzdušnost celého bytu. V dětském pokoji jsem se snažila propojit funkčnost s hravostí. Nábytek na míru vychází z tradičního řemeslného zpracování, ale přináší moderní variabilitu, aby mohl růst společně s dítětem.

Při návrhu tohoto interiéru pro mě bylo zásadní vytvořit prostor, který není pouze vizuálně atraktivní, ale především pohodlný a smysluplný. Chytrá domácnost, vinotéka ve tvaru stromu a další prvky přispívají k tomu, aby byl život v tomto bytě nejen praktický, ale i inspirativní. Projekt je pro mě výjimečný nejen svou lokalitou, ale i příběhem, který v sobě nese. Je to domov, kde se design setkává s krajinou a kde se každý detail podílí na atmosféře klidu a harmonie.
Autorská zpráva
Místo stavby: Liberecký kraj
Autorka: Tak Design / Taťána Kandratovičová
Realizace: 2024
Hrubá podlažní plocha: 95 m2
Foto: Jiří Alexander Bednář



























Z mého pohledu je fajn vidět, jak se i u tak „běžné“ věci, jako jsou překlady, řeší systémovost a přesnost!
Praktické řešení, hlavně z pohledu rychlosti výstavby a přesnosti👍 U těchto systémových prvků dává smysl, že zjednodušují realizaci a pomáhají…
Zajímavý posun ve stavebnictví, je vidět, že se dnes klade velký důraz hlavně na rychlost výstavby a přesnost provedení. Systémové…
Jako problém vidím hlavně "lavičky" v prostoru sdíleném s cyklisty. Neměly by mít třeba tyče s praporky, jako dětské nákupní…
Zdravím, děkuji za informaci o výstavbě v areálu i zmínku o vile, žel chybí aspoň informace, zda vila stojí a…