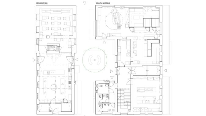
Interiér slovenské restaurace v areálu holešovické tržnice vzniknul rekonstrukcí dvou historicky odlišných objektů. Návrh Josefa Pleskota pracuje s jejich očištěním na původní podstatu a doplněním o nový provozní koncept. Interiér je založen na otevřené kuchyni, výrazné barevnosti a přiznání konstrukčních i technologických prvků.

Rekonstrukce dvou historicky odlišných domů odstranila pozdější přístavby a vrátila objekty k jejich základní stavební struktuře. Mezi nimi vznikl dvůr, který slouží jako sdílený exteriérový prostor pro více gastronomických provozů.
Soutěž Interiér roku, kterou pořádá Institut bytového designu, každoročně oceňuje výjimečné soukromé i veřejné interiéry navržené českými a slovenskými architekty. Hlasování veřejnosti bude probíhat od 20. dubna do 5. května na www.interierroku.cz. Vítězové jedenáctého ročníku soutěže pak budou vyhlášeni na mezinárodním kongresu o bydlení Living forum, který proběhne 19 5. 2026 v pražském Doxu. Více se dozvíte na webu.

Interiér restaurace je koncipován jako otevřený provoz, ve kterém je většina gastronomického zázemí přiznána hostům. Kuchyně je orientována do vstupního prostoru a umožňuje přímý kontakt s přípravou jídel. Výrazným prvkem je gril umístěný přímo v interiéru, který posiluje vazbu mezi kuchyní a hosty.

Provoz je rozložen do několika podlaží včetně suterénu, přízemí a patra. Interiér pracuje s výraznou barevností inspirovanou lidovými motivy a středoevropskou tradicí, která se promítá do výmalby i nábytku. Masivní dřevěné stoly a lavice jsou doplněny barevnými povrchy, dominantním prvkem hlavního prostoru je velkoformátová kredenc.

Architektonický koncept stojí na přiznání konstrukčních a provozních prvků a na snaze o zachování autenticity bez stylizace. Interiér tak podporuje gastronomický koncept a vytváří prostředí odpovídající současné interpretaci tradiční kuchyně. Materiálové řešení kombinuje přírodní prvky, zejména dřevo a kámen, s barevnými laminovanými deskami. Kontrast mezi robustní materiálovou základnou a výraznou barevností určuje charakter prostoru.
Podle autorské zprávy
Lokalita: Holešovická tržnice, Praha 7
Autoři: AP ATELIER / Josef Pleskot
Realizace: 2025
Foto: Jakub Dohnálek
























Kaskády Hranice jsou skvělým příkladem toho, že i bytová výstavba může mít kvalitní architekturu, promyšlený urbanismus a příjemný prostor pro…
Architektura musí souviset s místem, nikoli místo s architekturou. Proto jakékoli stavby umožňující realizaci na různých místech nejsou ARCHITEKTUROU.
Z mého pohledu je fajn vidět, jak se i u tak „běžné“ věci, jako jsou překlady, řeší systémovost a přesnost!
Praktické řešení, hlavně z pohledu rychlosti výstavby a přesnosti👍 U těchto systémových prvků dává smysl, že zjednodušují realizaci a pomáhají…
Zajímavý posun ve stavebnictví, je vidět, že se dnes klade velký důraz hlavně na rychlost výstavby a přesnost provedení. Systémové…