Interiér bytu v centru Prahy je projektem studia TurnKey, který spojuje minulost s moderním designem. Díky odhalení původního štukového stropu, který byl zakrytý sádrokartonem, došlo k zachování historického charakteru prostoru.

Po výmalbě štuků se barva bohužel oloupala, i proto bylo nakonec rozhodnuto ponechat strop ve velmi surovém stavu a ukázat všechny vrstvy historie. Tento přístup vytváří v prostoru jedinečnou atmosféru.
Soutěž Interiér roku, kterou pořádá Institut bytového designu, každoročně oceňuje výjimečné soukromé i veřejné interiéry navržené českými a slovenskými architekty. Do 11. ročníku soutěže mohou designéři a architekti přihlašovat své nově realizované interiéry do 28.2.2026, více se dozvíte na interierroku.cz. Časopis STAVBA a stavbaweb.cz je mediálním partnerem soutěže.

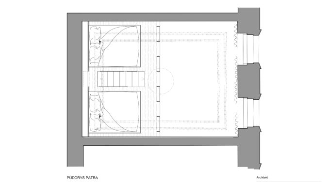
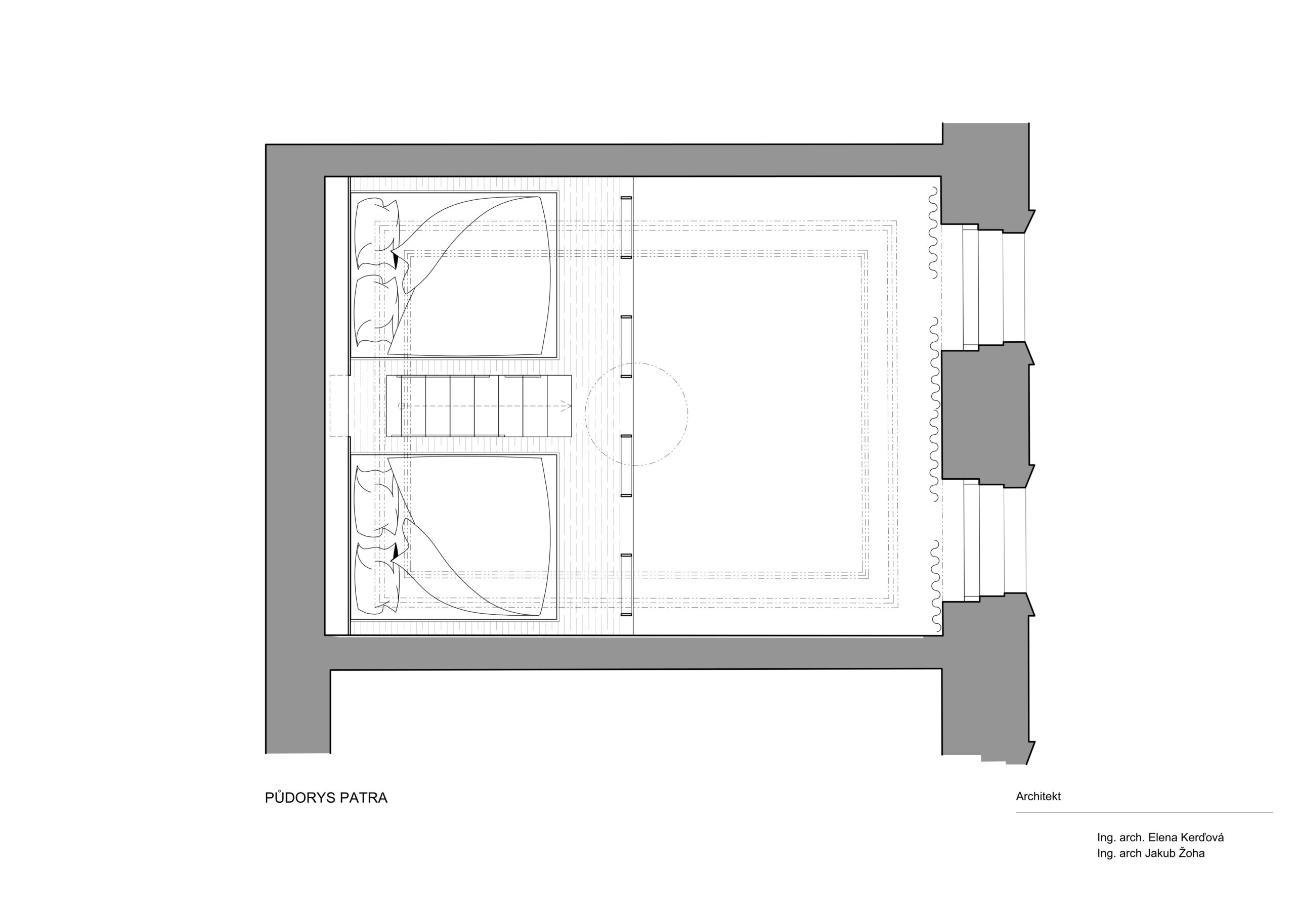
Hlavní místnost o velikosti 28 m² je rozdělena do dvou části, přičemž určující prvek představuje výška stropu 3,75 metru. Prostor pod tímto vysokým stropem je rozdělen na dvě zóny. V první části, pod vloženým patrem, se nachází kuchyně a TV kout s pohodlným gaučem, což vytváří útulné místo pro relaxaci. Tato část je koncipována tak, aby byla funkční a praktická – schodiště, které vede do patra, zároveň plní funkci nábytkové stěny a ukrývá spotřebiče, jako je lednice, a tak šetří místo a přispívá k celkové organizaci prostoru.

Druhá část místnosti, která není rozdělena patrem, nabízí pocit vzdušnosti a otevřenosti. Je to místo pro jídelní stůl a nyní i pro postel. Zadavatel klade důraz na to, aby garsonka nabízela kapacitu pro spaní, a zároveň byla koncipována tak, že lze prostor přetvořit pro plnohodnotné bydlení. Po přemístění postele by spodní část mohla sloužit jako obytný prostor s kuchyní, zatímco v patře by byl vytvořen prostor pro spaní a třeba pracovnu.

Důmyslné využití prostoru a neotřelý design sází na eleganci a funkčnost. Nábytek byl navržen a vyroben na míru, aby co nejlépe vyhovoval specifickým potřebám prostoru. K tomu byly použity materiály v dřevo-dekoru s akcenty výrazných barev, jako je modrá a chilli červená, které přinášejí do interiéru energii a živost. Tento design nejenže splňuje požadavky na praktické využití, ale zároveň dokáže nabídnout moderní a příjemné prostředí pro každodenní život.
Autorská zpráva
Místo: Praha
Autoři: TurnKey / Elena Kerďová, Zdeněk Tretiak, Jakub Žoha
Projekt: 2024
Realizace: 2024
Plocha: 41 m2
Foto: Iveta Kulhavá
































Interier snad za trest
Ne, spíš pro peníze – Airbnb?