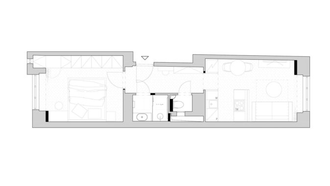
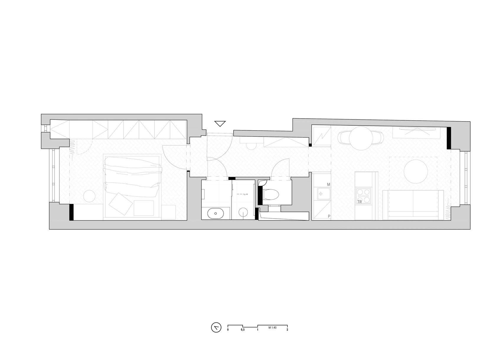
Díky promyšlené změně dispozice podle návrhu studia se z malého karlínského bytu stalo místo, které funguje. Obývací část se přesunula ke světlu do ulice, ložnice naopak do ticha vnitrobloku.

Byt o dispozici 2+kk se nachází v klasickém činžovním domě. Klienti na základě předchozí pozitivní zkušenosti oslovili architektonický ateliér BekArch s jasným zadáním – vytvořit na ploše 38 m2 moderní, plnohodnotné, a přitom ekonomicky realizovatelné bydlení pro dva s minimem zásahů do stávajících stěn a konstrukčního systému.

Nejvýraznějším krokem celé rekonstrukce bylo rozhodnutí změnit dispozici bytu – a to bez bourání příček. Změna, která výrazně přispěla ke zlepšení kvality denního života v bytě, si vyžádala kompletní úpravy elektroinstalace i rozvodů vody a odpadů. Skromné prostorové možnosti vedly k důsledné práci s barevností i materiály. Zásadním přístupem architektů bylo byt prosvětlit a opticky zvětšit, a proto je celý interiér laděný do světlých, přírodních tónů.

Kuchyni je navrženou na míru doplňují další úložné prostory v horní části a ostrůvek. Nové umístění ložnice do vnitrobloku zajišťuje nerušený spánek. Atmosféru posiluje řešení vestavného úložného systému na míru po celé délce stěny. V koupelně byla původní vana nahrazena sprchovým koutem. Interiér koupelny pracuje s čistými liniemi a kvalitními materiály, jako zdobný prvek jsou zde využity mosazné baterie a úchytky zásuvek.
Tisková zpráva, kráceno
Místo: Praha, Karlín
Autoři: BekArch / Jan Bek, Linda Polomová, Martin Kříž
Realizace: 2024
Užitná plocha: 38 m2
Foto: Markéta Vlasatá




















Povedený projekt 👍 Takových realizací by mohlo vznikat víc.
Kaskády Hranice jsou skvělým příkladem toho, že i bytová výstavba může mít kvalitní architekturu, promyšlený urbanismus a příjemný prostor pro…
Architektura musí souviset s místem, nikoli místo s architekturou. Proto jakékoli stavby umožňující realizaci na různých místech nejsou ARCHITEKTUROU.
Z mého pohledu je fajn vidět, jak se i u tak „běžné“ věci, jako jsou překlady, řeší systémovost a přesnost!
Praktické řešení, hlavně z pohledu rychlosti výstavby a přesnosti👍 U těchto systémových prvků dává smysl, že zjednodušují realizaci a pomáhají…