Byt v panelovém domě z 50. let v pražských Holešovicích prošel kompletní rekonstrukcí podle návrhu studia B² Architecture. Původně stísněná dispozice se proměnila v otevřený a vzdušný prostor pro mladou rodinu.

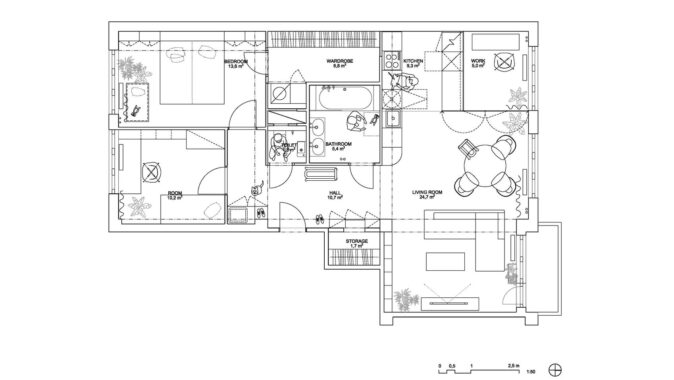
Velkorysá podlahová plocha a skeletová konstrukce umožnily výrazné změny – většina příček byla odstraněna a odhalený nosný systém se sloupy a průvlaky se stal přirozenou součástí interiéru.

Do středu bytu byla vložena zelená vestavba se šatnou a hygienickým zázemím, která určuje rytmus života v bytě. Kolem ní se odvíjí hlavní obytný prostor orientovaný k náměstí s výhledem na město, zatímco ložnice a dětský pokoj zůstávají v klidném vnitrobloku.

Barevné akcenty – zelené jádro a modré vestavěné prvky pracovny a knihovny – zónují interiér a dodávají mu svěží charakter. Transparentní příčky zároveň vytvářejí pracovní kout, zatímco bílé vestavné skříně poskytují dostatek úložného prostoru a ukrývají i druhou šatnu.

Materiálové řešení odkazuje k charakteru domu: beton doplňují cementové stěrky, dubové podlahy a výrazné barevné plochy. Barevné schéma interiéru stojí na trojici odstínů – zelené, modré a růžové – které se navzájem doplňují a v kombinaci s měděnými detaily vytvářejí harmonický celek. Ty se objevují na armaturách, klikách i zakázkových svítidlech.

Původní betonové trámy, které neodpovídaly představám klientů, byly sjednoceny cementovou stěrkou a působí subtilněji, čímž opticky odlehčují nízké stropy.
Autorská zpráva
Místo: Praha-Holešovice
Autorky: B² Architecture / Barbara Bencova, Zuzana Bartasová
Projekt: 2024
Realizace:2025
Užitná plocha: 85 m²
Foto: Alexander Dobrovodský























Vyjádření je dokladem toho, že jsou různé názory na barevné kombinace,
i když se mnohým / jako mně/ líbí úžasně.
Názor na kombinaci barev je subjektivní a když se to majitelům líbí, je to jejich volba. Ale pro mě tato trojice rozhodně není harmonická a růžovou vedle zelené přímo nesnáším.
Vyjádření je dokladem toho, že jsou různé názory na barevné kombinace,
i když se mnohým / jako mně/ líbí úžasně.
Jasně, o tom to bylo.