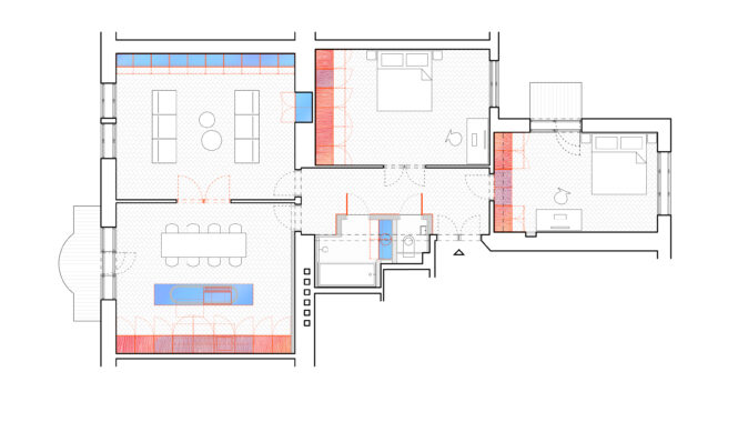
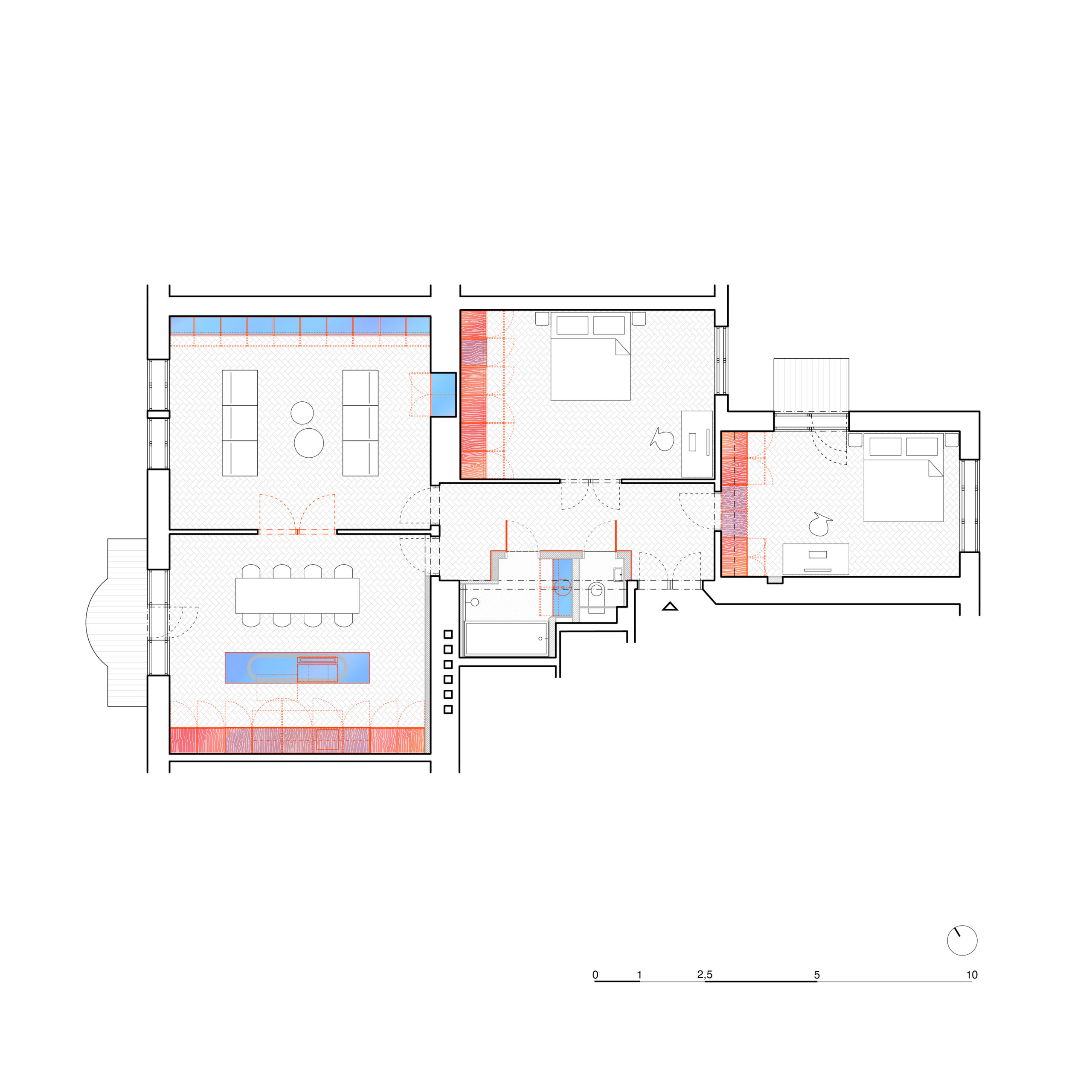
Rekonstrukce bytu obnovuje původní atmosféru s důrazem na historické detaily a kvalitní materiály. Nová dispozice nabízí velkorysý obytný prostor, vestavěné vybavení inspirované japonskou estetikou zajišťuje variabilitu a nadčasovost.

Bytový dům, ve kterém se byt nachází, pochází z 20. let 20. století. Charakter bytu je definován velkorysými místnostmi s vysokou světlou výškou i spoustou detailů z kvalitních materiálů. Ne všechny se však dochovaly vlivem nevhodných rekonstrukcí. Důležitým aspektem návrhu je obnovení původní atmosféry s moderními prvky. Obnovení spočívá ve výměně plastových oken za dřevěná kastlová, repasování zdobených zárubní otvorů a navrácení dřevěných parket, které prostupují celým bytem bez prahů.

Velkým tématem a největším zásahem je přehodnocení dispozičního rozložení, kde největší místnosti směřovaly na západ do ulice, zatímco kuchyně a menší pokoj na východ do klidného vnitrobloku. Přeorganizování kuchyně na opačnou stranu bytu spolu s vybouráním otvoru, který propojuje druhou velkou místnost, vytváří velký obytný prostor se západním odpoledním sluncem. V druhé části bytu jsou využity dva menší pokoje intimněji díky orientaci do klidného vnitrobloku s ranním sluncem.

Cílem návrhu bylo vytvořit prostor, který je modifikovatelný v čase. Veškeré vestavěné prvky jsou proto navrženy v maximální míře neutrálně, tak aby umožnily vybavení místností jakkoliv výrazným mobiliářem, který se může měnit a stále bude ladit ke svému okolí. Vestavěný nábytek je dřevěný ve stejném odstínu vlysové podlahy a je doplněn vestavěnými plechovými prvky z broušeného nerezu, který nenápadně odráží své okolí.
Inspiraci vestavěných prvků architekti hledali v japonské estetice, kde má pravidelnost, rastr a opakování prvků duchovní rozměr. Vycházejí z představy o řádu, rovnováze a cykličnosti přírody. Rytmus opakujících se polí a segmentů symbolizuje harmonii mezi člověkem a okolím, klid mysli a přijetí neustálého plynutí času. Výrazným lineárním prvkem v chodbě je barevné neonové světlo, které zase odráží charakter nočních ulic Tokia.

Původní koupelna se záchodem v původním rozvržení neodpovídaly požadovanému rozměru, proto je architekti navrhli rozšířit do poměrně velkého prostoru chodby. Zrcadlová stěna opět odráží své okolí, neutralizuje využití prostoru chodby a iluzivně skrývá vložený objem koupelny. V koupelně a na soklu barového pultu je použitý plastický obloukový obklad navazující na reliéf původních kanelovaných zárubní. Zelená barva obkladu kuchyňského ostrůvku je doplněna komplementární červenou barvou lineárního osvětlení jako jediného dominantního prvku v bytě.
Autorská zpráva
Místo: Brno
Autoři: AOSI
Tým: Ivo Stejskal, Vít Šarišský, Natálie Laníková, Suzanne Pietroszová
Technické konzultace: Zdeněk Šuchma (Babka&Šuchma)
Realizace: 2025
Foto: Alex Shoots Buildings
























Kaskády Hranice jsou skvělým příkladem toho, že i bytová výstavba může mít kvalitní architekturu, promyšlený urbanismus a příjemný prostor pro…
Architektura musí souviset s místem, nikoli místo s architekturou. Proto jakékoli stavby umožňující realizaci na různých místech nejsou ARCHITEKTUROU.
Z mého pohledu je fajn vidět, jak se i u tak „běžné“ věci, jako jsou překlady, řeší systémovost a přesnost!
Praktické řešení, hlavně z pohledu rychlosti výstavby a přesnosti👍 U těchto systémových prvků dává smysl, že zjednodušují realizaci a pomáhají…
Zajímavý posun ve stavebnictví, je vidět, že se dnes klade velký důraz hlavně na rychlost výstavby a přesnost provedení. Systémové…