Návrh interiéru bytu od Michaely Záhorovské balancuje mezi surovostí a sofistikovaností, přičemž každý detail slouží funkčnosti i estetice. Loft se nese v duchu neutrálního industriálního stylu, který tvoří základní charakter bytu.

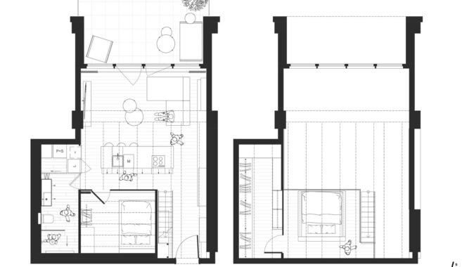
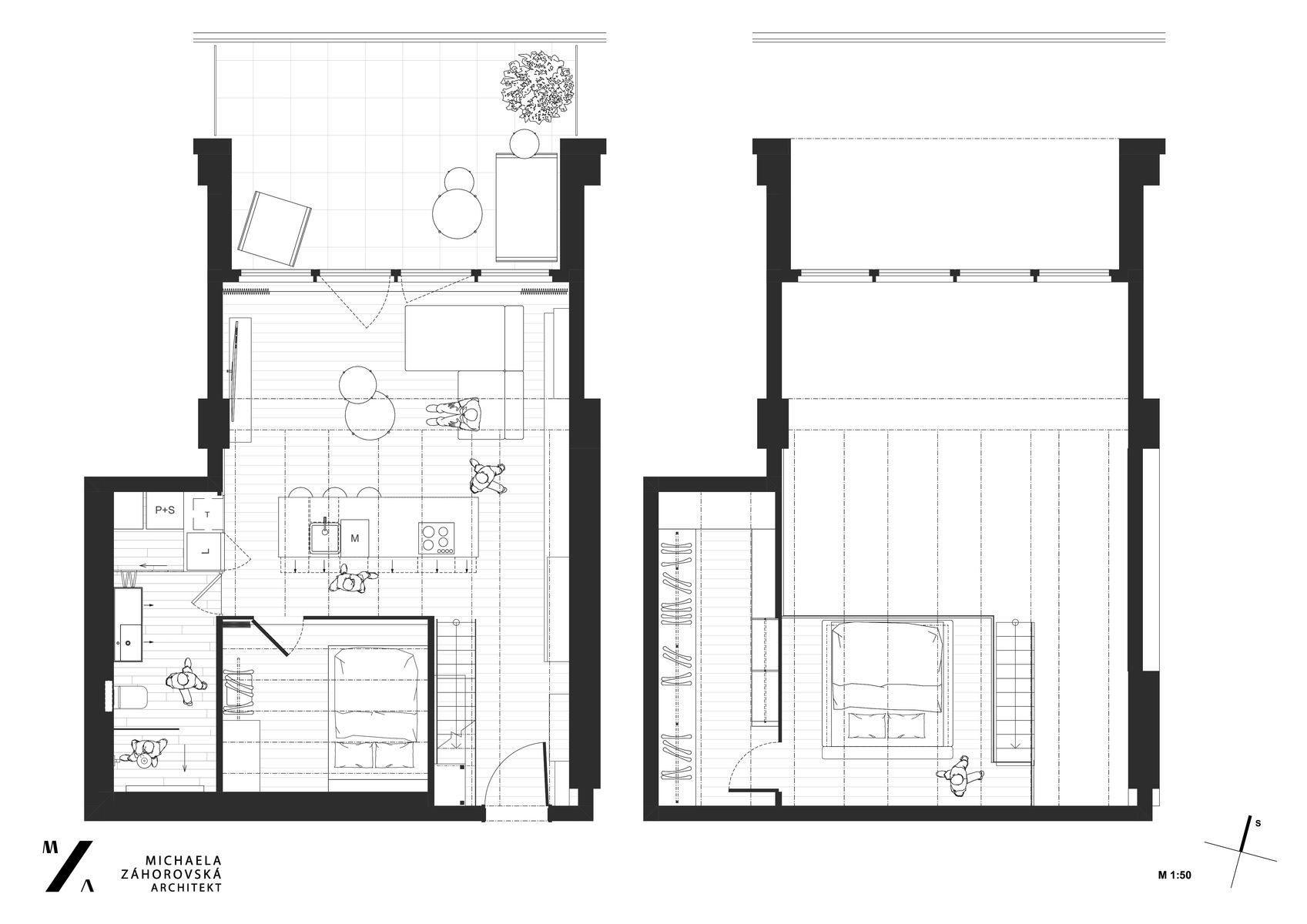
Klient, zvyklý na život v loftových bytech v zahraniční, preferoval otevřenou dispozici, která maximálně využívá prostor a výhledy. Klíčovým prvkem návrhu se proto stal výhled na Prahu – ten je promyšleně zohledněn z různých zón bytu: z pohodlí sedací soupravy, od kuchyňského ostrůvku, z postele na galerii, ale i z pokoje pro hosty.

Soutěž Interiér roku, kterou pořádá Institut bytového designu, každoročně oceňuje výjimečné soukromé i veřejné interiéry navržené českými a slovenskými architekty. Do 11. ročníku soutěže mohou designéři a architekti přihlašovat své nově realizované interiéry do 28.2.2026, více se dozvíte na www.interierroku.cz. Časopis STAVBA a stavbaweb.cz je mediálním partnerem soutěže.

Dispozice bytu je přizpůsobena životnímu stylu mladého muže, přičemž důraz byl kladen na prostornost a funkčnost. Dominantním prvkem ložnice na galerii je volně stojící postel a na ni navazující velkorysá šatna, která je oddělena prosklenou příčkou se zrcadlovým efektem. Tento prvek umožňuje přirozenému dennímu světlu pronikat do šatny. Při rozsvícení v šatně zajišťuje průhlednost do prostoru. Pokud je naopak zhasnuto, příčka funguje jako plnohodnotné zrcadlo, čímž se opticky zvětšuje celý prostor.

V interiéru byla zachována původní železobetonová stěna, která vytváří kontrast s jemnými jádrovými omítkami, jež dodávají prostoru potřebnou eleganci a vizuální lehkost. Nedokonalosti železobetonových trámových stropů byly elegantně potlačeny aplikací jemně šedé barvy, která stropy opticky sjednocuje. Podlahová krytina v nejvyšší kvalitě dodává bytu teplo a útulnost, aniž by narušovala industriální charakter prostoru. Výrazným prvkem je i prosklená industriální ocelová příčka, která umožňuje dennímu světlu pronikat do pokoje pro hosty, a zároveň zachovává vizuální kontinuitu interiéru.

Ocelová konstrukce patra i nábytkové prvky, jako je technologická skříň, byly ponechány v surové podobě a ošetřeny matným transparentním lakem. Sváry na konstrukci byly decentně přebroušeny, aby si interiér zachoval autentický industriální výraz.

Kuchyňský ostrůvek se stal jedním z klíčových prvků bytu. Klient si přál pracovní desku z Technistonu, nakonec byl ostrůvek z tohoto materiálu zhotoven celý. Světlý žíhaný dekor byl zvolen nejen pro estetický kontrast s ostatními prvky, ale také pro svou nenáročnost na údržbu.

Vedle vestavné lednice se za skrytými dveřmi nachází koupelna. Tato ryze pánská místnost je laděna do tmavších tónů, kombinujících černou betonovou stěrku s netradičním formátem keramických obkladů. Kovové umyvadlo a kouřové baterie jen podtrhují celkový vizuál koupelny. Na koupelnu navazuje praktická místnost pro pračku, sušičku a domácí práce, která je oddělena harmonikovými dveřmi, aby byl prostor maximálně efektivní a zároveň diskrétní v případě návštěvy.
Autorská zpráva
Místo: Praha
Autorka: Michaela Záhorovská
Foto: Robert Žákovič































Do 4/1 jsou Mockerovy domy přístupné v rámci akce Vánoční putování Pražským hradem https://www.hrad.cz/cs/kultura-na-hrade/program/vanocni-putovani-prazskym-hradem-1-13462
Hodně mě překvapilo, že je v areálu Pražského hrad tahle zanedbaný dvorek. Na leteckých snímcích to vypadá líp, jako že…
Díky za odkaz, opravdu zajímavý projekt! Rekonstrukce za plného provozu je vždycky náročná, a je skvělé vidět, jak se to…
Ano, továrna v Pardubicích je velmi zajímavá. Kromě jiného rekonstrukce probíhala za plného provozu. Přikládám odkaz na celou stavbu, je…
V rámci Prahy jde o jednu z nejhlučnějších lokalit, které lze v centru najít. ideální pro drahé kanceláře a bydlení.…